Appartement 66m² à le marin

— Le Marin 97290 —
380 000 €
66 m²
3 pièces
balcon/terrasseascenseuraccès handicapé

Appartement T3 avec grande terrasse aux Terrasses du Marin

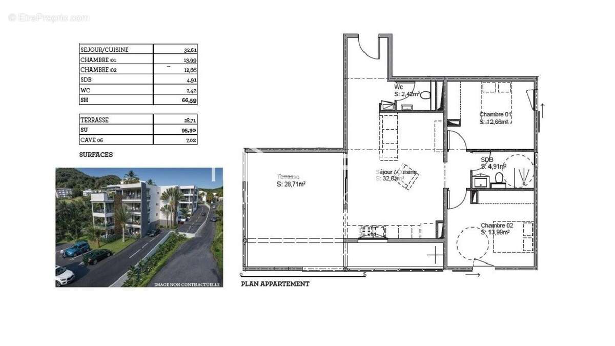
Situé dans une résidence sécurisée et récente, découvrez ce superbe T3 lumineux offrant une surface utile totale de 95.30 m² avec des prestations de qualité, en rez de chaussée.

Description du bien :

Pièce de vie spacieuse de 32 m², ouverte sur une cuisine conviviale aménagée

Deux chambres confortables :

1 chambre de 13 m² avec dressing

1 chambre d'environ 14 m² avec dressing

Salle de bain moderne et WC indépendant accès PMR

Grande terrasse de 28,71 m², idéale pour profiter de l'extérieur

Cave privative de 7,02 m²

Deux places de parking incluses

Les plus du bien :

Résidence sécurisée et agréable

Appartement fonctionnel et bien agencé

Surface généreuse adaptée aussi bien à une résidence principale qu'à un investissement locatif

Fiscalité et financement :

Éligible au Prêt à Taux Zéro (PTZ) pour un premier achat

Possibilité de bénéficier de dispositifs fiscaux avantageux tels que le LMNP (Location Meublée Non Professionnelle)

Les informations sur les risques auxquels ce bien est exposé sont disponibles sur le site Géorisques : www.georisques.gouv.fr
Prix de vente : 380 000 ¤
Honoraires charge vendeur

Contactez votre conseiller SAFTI : Fabienne GOUGEON, Tél. : [Coordonnées masquées], E-mail : [Coordonnées masquées] - EI - Agent commercial immatriculé au RSAC de FORT-DE-FRANCE sous le numéro 433946183.
Informations LOI ALUR :
Honoraires charge vendeur. (gedeon_26118_31932208)
Voir plus

Référence: 1536223
Honoraires à la charge du vendeur.
Barème des honoraires

Prêt immobilier

Vous souhaitez connaître votre capacité d’emprunt et trouver le meilleur crédit immobilier ?
Réaliser une simulation gratuite

Photo 1 - Appartement à LE MARIN
Photo 1
Photo 2 - Appartement à LE MARIN
Photo 2
Photo 3 - Appartement à LE MARIN
Photo 3
Ce site est protégé par reCAPTCHA la Politique de confidentialité et les Conditions d’utilisation de Google s’appliquent.
Obtenir un prêt immobilier au meilleur taux ?

En poursuivant votre navigation sans modifier vos paramètres, vous acceptez l'utilisation de cookies susceptibles de réaliser des statistiques de visite. Cliquez ici pour plus d'informations