Bénéficiez des services de nos partenaires locaux soigneusement sélectionnés
pour vous accompagner dans votre parcours d'achat immobilier

Coup de coeur - appartement lumineux de 58.29m2 avec balcon

— Paris-17e 75017 —
770 000 €
58 m²
2 pièces

Nos partenaires locaux
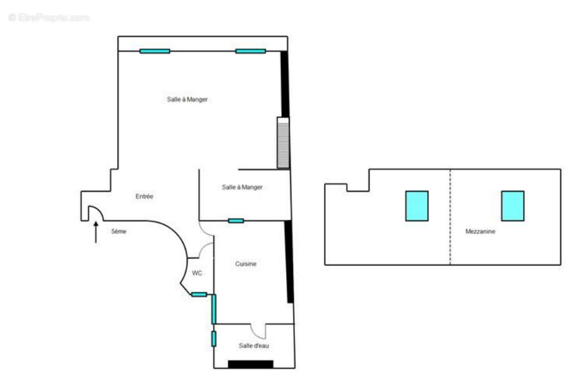
COUP DE COEUR, Idéalement situé en face du Square des Batignolles, à proximité immédiate des commerces et du métro Pont Cardinet (ligne 14), dans une copropriété bien tenue, un appartement de 51,84m2 loi Carrez +15.74m2 en mezzanine. Situé au dernier étage par ascenseur, Il se compose comme suit : une entrée avec rangements, un séjour baigné de lumière avec une hauteur cathédrale, donnant sur un balcon et vue dégagée et arborée, une salle à manger, une cuisine indépendante et aménagée de 9.46m2 carrez (pouvant devenir une chambre), une salle d'eau et des WC séparés. L'espace mezzanine très lumineux (chambre actuelle) est accessible par un bel escalier. Un bien rare qui allie convivialité de quartier et qualité de vie parisienne. Le ravalement de la façade et la réfection de la toiture ont été votés et payés. Une cave complète le bien. ETAGE ELEVE - LUMINEUX - BALCON - HAUTEUR CATHEDRALE (4.76 % honoraires TTC à la charge de l'acquéreur.) Copropriété de 14 lots - dont 14 lots habitation.(Pas de procédure en cours).
Voir plus

Référence: 2850
Bien en copropriété. Nombre de lots : 14.
Honoraires d'agence de 4.76% à la charge de l'acquéreur
Barème des honoraires
DPE
A
B
C
D
E
F
G
GES
A
B
C
D
E
F
G

Prêt immobilier

Vous souhaitez connaître votre capacité d’emprunt et trouver le meilleur crédit immobilier ?
Réaliser une simulation gratuite

Appartement à PARIS-17E
Appartement à PARIS-17E
Appartement à PARIS-17E
Appartement à PARIS-17E
Appartement à PARIS-17E
Appartement à PARIS-17E
Appartement à PARIS-17E
Appartement à PARIS-17E
Appartement à PARIS-17E
Ce site est protégé par reCAPTCHA la Politique de confidentialité et les Conditions d’utilisation de Google s’appliquent.
Obtenir un prêt immobilier au meilleur taux ?

En poursuivant votre navigation sans modifier vos paramètres, vous acceptez l'utilisation de cookies susceptibles de réaliser des statistiques de visite. Cliquez ici pour plus d'informations