Maison 173m² à pont-croix

— Pont-Croix 29790 —
215 000 €
173 m² / 1 784 m²
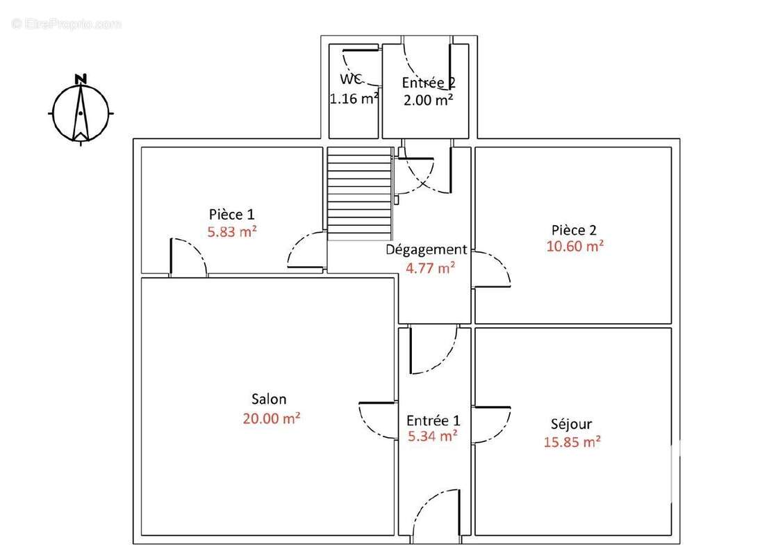
11 pièces
parkingjardin

Iad France - Nathalie Segalen vous propose : EN EXCLUSIVITE - En plein cOEur de Pont-Croix, découvrez cette authentique maison de caractère bâtie en 1926, qui n'attend qu'un nouveau souffle pour révéler toute sa beauté. Édifiée en pierre de taille sur un terrain arboré de 1 784 m² avec arbres fruitiers, elle conjugue charme de l'ancien et beaux volumes.
Vous serez séduits par ses pièces lumineuses, ses parquets en bois, son escalier majestueux et sa cheminée qui apportent une âme unique à cette demeure. Elle offre aujourd'hui 3 chambres mais peut facilement en accueillir davantage, selon vos besoins.
Côté pratique, vous bénéficierez d'une cave de 68 m², de deux garages de 41 m² et 19 m², ainsi que d'un carport. La maison est équipée de fenêtres PVC (certaines oscillo-battantes) et d'une chaudière gaz à condensation installée en 2022, le tout raccordé au tout-à-l'égout.
Autre atout : son emplacement privilégié, en hypercentre de Pont-Croix, à deux pas des commerces et commodités, son agréable jardin aux différentes ambiances.
Anciennement aménagée en bureaux au rez-de-chaussée et en habitation à l'étage, cette demeure offre une formidable liberté d'aménagement. Elle ne demande qu'à retrouver une nouvelle jeunesse pour devenir une maison familiale chaleureuse, pleine de vie et de caractère.
Une opportunité rare pour les amoureux de l'authenticité et de l'espace !



Honoraires d'agence à la charge de l'acquéreur. Prix honoraires inclus : 215000 euros. Prix hors honoraires : 205000 euros. Honoraires TTC à la charge de l'acquéreur (4,88% du prix du bien hors honoraires) : 10000 euros.
Information d'affichage énergétique sur ce bien : classe ENERGIE D indice 217 et classe CLIMAT D indice 41. Les informations sur les risques auxquels ce bien est exposé, y compris l'obligation légale de débroussaillement, sont disponibles sur le site Géorisques : http://www.georisques.gouv.fr.
La présente annonce immobilière a été rédigée sous la responsabilité éditoriale de Mme Nathalie Segalen mandataire indépendant en immobilier (sans détention de fonds), agent commercial de la SAS I@D France immatriculé au RSAC de QUIMPER sous le numéro 514 240 977, titulaire de la carte de démarchage immobilier pour le compte de la société I@D France SAS.
Informations LOI ALUR :
Honoraires charge vendeur. (gedeon_6727_31937217)
Voir plus

Référence: 1853251
Honoraires à la charge du vendeur.
DPE
A
B
C
D
E
F
G
GES
A
B
C
D
E
F
G

Prêt immobilier

Vous souhaitez connaître votre capacité d’emprunt et trouver le meilleur crédit immobilier ?
Réaliser une simulation gratuite

Photo 1 - Maison à PONT-CROIX
Photo 1
Photo 2 - Maison à PONT-CROIX
Photo 2
Photo 3 - Maison à PONT-CROIX
Photo 3
Photo 4 - Maison à PONT-CROIX
Photo 4
Photo 5 - Maison à PONT-CROIX
Photo 5
Photo 6 - Maison à PONT-CROIX
Photo 6
Photo 7 - Maison à PONT-CROIX
Photo 7
Photo 8 - Maison à PONT-CROIX
Photo 8
Photo 9 - Maison à PONT-CROIX
Photo 9
Ce site est protégé par reCAPTCHA la Politique de confidentialité et les Conditions d’utilisation de Google s’appliquent.
Obtenir un prêt immobilier au meilleur taux ?

En poursuivant votre navigation sans modifier vos paramètres, vous acceptez l'utilisation de cookies susceptibles de réaliser des statistiques de visite. Cliquez ici pour plus d'informations