Appartement 69m² à le marin

— Le Marin 97290 —
396 000 €
69 m²
3 pièces
parkingbalcon/terrasseascenseuraccès handicapé

T3 spacieux de 97 m² avec grande terrasse et parking – Résidence sécurisée Les Terrasses du Marin

Description :
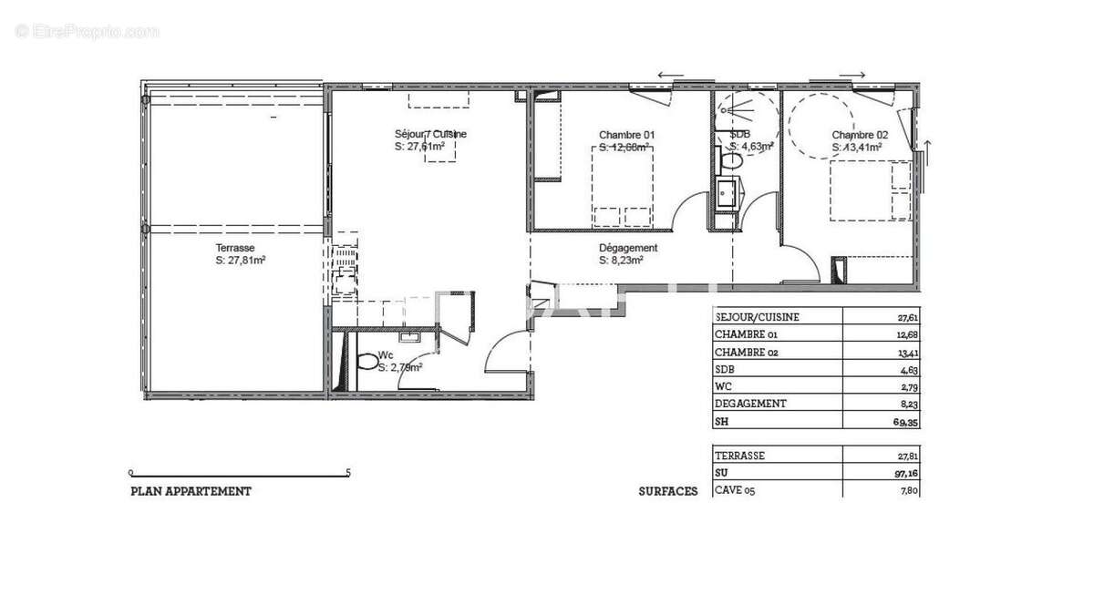
À vendre, superbe appartement T3 de 97 m² de surface utile situé au 2 ? étage de la résidence sécurisée Les Terrasses du Marin. Idéalement pensé pour le confort et l'accessibilité, il dispose d'une terrasse de 27 m² offrant une agréable vue extérieure.

Points forts de l'appartement :

Grande pièce de vie lumineuse avec cuisine ouverte et aménagée

2 chambres spacieuses avec dressing

Salle de bain généreuse

Toilettes accessibles PMR

Accès facilité via ascenseur ou escalier

Prestations supplémentaires :

2 places de parking à l'intérieur de la résidence

Cave de 7,80 m²

Résidence sécurisée avec accès facile à pied à tous les commerces et services du Marin

Usage :

Idéal pour résidence principale, avec possibilité d'accès au PTZ sous conditions

Ou investissement locatif, avec opportunité de défiscalisation en LMNP ou défiscalisation DOM

Cet appartement combine espace, confort et praticité, parfait pour un projet de vie ou un investissement rentable.

Les informations sur les risques auxquels ce bien est exposé sont disponibles sur le site Géorisques : www.georisques.gouv.fr
Prix de vente : 396 000 ¤
Honoraires charge vendeur

Contactez votre conseiller SAFTI : Fabienne GOUGEON, Tél. : [Coordonnées masquées], E-mail : [Coordonnées masquées] - EI - Agent commercial immatriculé au RSAC de FORT-DE-FRANCE sous le numéro 433946183.
Informations LOI ALUR :
Honoraires charge vendeur. (gedeon_26118_31938648)
Voir plus

Référence: 1536211
Honoraires à la charge du vendeur.
Barème des honoraires

Prêt immobilier

Vous souhaitez connaître votre capacité d’emprunt et trouver le meilleur crédit immobilier ?
Réaliser une simulation gratuite

Photo 1 - Appartement à LE MARIN
Photo 1
Photo 2 - Appartement à LE MARIN
Photo 2
Photo 3 - Appartement à LE MARIN
Photo 3
Ce site est protégé par reCAPTCHA la Politique de confidentialité et les Conditions d’utilisation de Google s’appliquent.
Obtenir un prêt immobilier au meilleur taux ?

En poursuivant votre navigation sans modifier vos paramètres, vous acceptez l'utilisation de cookies susceptibles de réaliser des statistiques de visite. Cliquez ici pour plus d'informations