Bénéficiez des services de nos partenaires locaux soigneusement sélectionnés
pour vous accompagner dans votre parcours d'achat immobilier

La garenne colombes : appartement de 3 pièces avec balcon

— La Garenne-Colombes 92250 —
516 000 €
82 m²
3 pièces
ascenseur

Nos partenaires locaux
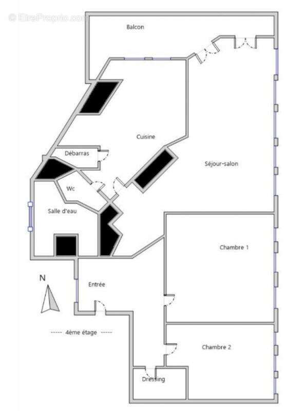
A VENDRE – Lumineux et spacieux appartement de 3 pièces avec balcon à LA GARENNE-COLOMBES

Idéalement situé à 2 minutes à pied de la Mairie de la Garenne-Colombes, venez découvrir ce superbe appartement lumineux et spacieux, d'une surface de 82 m², situé au 4e étage avec ascenseur d'une résidence bien entretenue.

Un intérieur baigné de lumière :
Ce 3 pièces traversant offre des volumes agréables et une belle luminosité naturelle tout au long de la journée. Il se compose d'une entrée avec rangements, un grand séjour lumineux ouvrant sur un balcon, une cuisine séparée, entièrement aménagée et équipée, deux chambres confortables, une salle de bains et des WC indépendants.

Un cadre de vie recherché :
Implanté dans un quartier vivant et familial, l'appartement bénéficie d'un accès rapide à toutes les commodités :
- Transports : Gare SNCF (ligne L), tramway T2 (station Charlebourg), 8 lignes de bus,
- Établissements scolaires à moins de 10 minutes à pied (crèches, écoles, collège, lycée),
- Vie de quartier dynamique : marché Centre-Ville, supermarchés, commerces, boulangeries, restaurants, équipements sportifs (piscine, tennis), bibliothèque…

Bien soumis au statut de la copropriété 1 / 40 lots.
Quote-part du budget prévisionnel annuel de 4 392 €/an

Les informations sur les risques auxquels ce bien est exposé sont disponibles sur le site Géorisques : www.georisques.gouv.fr.
Voir plus

Référence: 3750_MA
Bien en copropriété. Nombre de lots : 40. Charges de copropriété : 366 €.
Honoraires à la charge du vendeur.
DPE
A
B
C
D
E
F
G
GES
A
B
C
D
E
F
G

Prêt immobilier

Vous souhaitez connaître votre capacité d’emprunt et trouver le meilleur crédit immobilier ?
Réaliser une simulation gratuite

Appartement à LA GARENNE-COLOMBES
Appartement à LA GARENNE-COLOMBES
Appartement à LA GARENNE-COLOMBES
Appartement à LA GARENNE-COLOMBES
Appartement à LA GARENNE-COLOMBES
Appartement à LA GARENNE-COLOMBES
Appartement à LA GARENNE-COLOMBES
Appartement à LA GARENNE-COLOMBES
Ce site est protégé par reCAPTCHA la Politique de confidentialité et les Conditions d’utilisation de Google s’appliquent.
Obtenir un prêt immobilier au meilleur taux ?

En poursuivant votre navigation sans modifier vos paramètres, vous acceptez l'utilisation de cookies susceptibles de réaliser des statistiques de visite. Cliquez ici pour plus d'informations