Bénéficiez des services de nos partenaires locaux soigneusement sélectionnés
pour vous accompagner dans votre parcours d'achat immobilier

Maison rénovée avec étang et prairie .

— Baguer-Morvan 35120 —
325 000 €
240 m² / 2 000 m²
10 pièces
parkingbalcon/terrassejardin

Nos partenaires locaux
Pierre Chaudet pour LEKYP immobilier vous propose à la vente une maison située à 10mn de l'axe Rennes St malo sortie Miniac morvan, à 10mn de Dol de Bretagne dans un cadre bucolique et champêtre.
Posée sur un terrain de plus de 2000m2 de prairie avec étang et grand saule cette vaste maison d'habitation en pierre et parpaing sous ardoises est idéale pour ceux qui aime la campagne tout en étant proche des axes routiers.
Cette grande maison de 260m2 est une ancienne maison en pierre plus une rénovation moderne fabriquée avec des matériaux de bonne facture ( pompe a chaleur thermodynamique industrielle,charpente neuve avec poutres en lamellé collé industrielles,escalier sur mesure,plancher pont de bateau ...) , elle est composée comme suit:
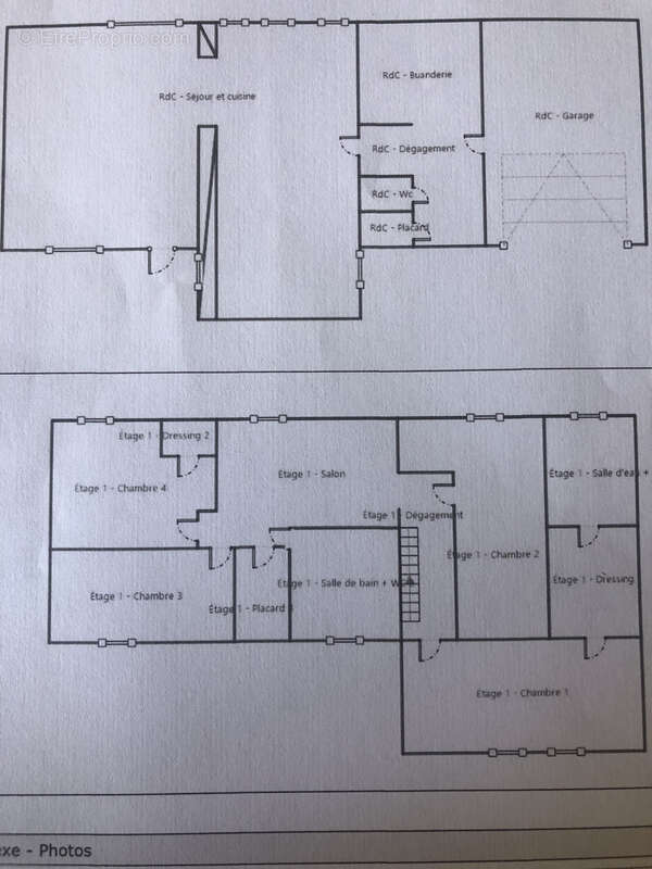
Au RDC un grand salon (78m2) donnant sur une cuisine ouverte ( 60m2) , un dégagement donnant sur une buanderie, un WC, un placard et sur le garage de 40m2 .
A l'étage 4 chambres dont une parentale de 40m2 avec dressing et salle d'eau+WC à terminer, un salon et une salle de bain avec WC .
Prix au m2 peu élévé au vu de la qualité de la maison .
Annonce écrite er rédigée par un agent commercial no752880351 rsac St Malo. mandat No2900 . Prix 325 000€ honoraires à la charge acquéreur.montant net vendeur 310 000€ honoraires agence 15 000€ - Annonce rédigée et publiée par un Agent Mandataire -
Voir plus

Barème des honoraires
DPE
A
B
C
D
E
F
G
GES
A
B
C
D
E
F
G

Prêt immobilier

Vous souhaitez connaître votre capacité d’emprunt et trouver le meilleur crédit immobilier ?
Réaliser une simulation gratuite

Maison à BAGUER-MORVAN
Maison à BAGUER-MORVAN
Maison à BAGUER-MORVAN
Maison à BAGUER-MORVAN
Maison à BAGUER-MORVAN
Maison à BAGUER-MORVAN
Maison à BAGUER-MORVAN
Maison à BAGUER-MORVAN
Maison à BAGUER-MORVAN
Ce site est protégé par reCAPTCHA la Politique de confidentialité et les Conditions d’utilisation de Google s’appliquent.
Obtenir un prêt immobilier au meilleur taux ?

En poursuivant votre navigation sans modifier vos paramètres, vous acceptez l'utilisation de cookies susceptibles de réaliser des statistiques de visite. Cliquez ici pour plus d'informations