Bénéficiez des services de nos partenaires locaux soigneusement sélectionnés
pour vous accompagner dans votre parcours d'achat immobilier

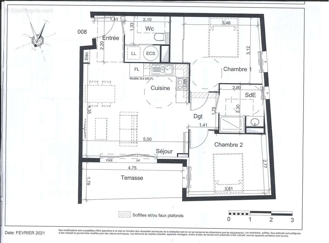
Appartement f3 + terrasse argeles sur mer

— Argeles-Sur-Mer 66700 —
256 000 €
60 m²
3 pièces
balcon/terrasse

Nos partenaires locaux
Appartement neuf de Type F3 avec Terrasse et 2 emplacements de parking en livraison fin 2023
Dans une résidence nichée dans un environnement résidentiel de qualité à mi-chemin entre le centre-ville et la plage du centre. Bordée de voies cyclables et piétonnes desservie par le bus au pied de la résidence l’adresse propose un accès rapide aux premiers commerces ainsi qu’au cœur de ville à la Gare SNCF ou encore de nombreux équipements sportifs et culturels. Profitez en toute saison des grandes plages de sable fin proche de votre nouveau cocon
Voir plus

Prêt immobilier

Vous souhaitez connaître votre capacité d’emprunt et trouver le meilleur crédit immobilier ?
Réaliser une simulation gratuite

Appartement à ARGELES-SUR-MER
Appartement à ARGELES-SUR-MER
Ce site est protégé par reCAPTCHA la Politique de confidentialité et les Conditions d’utilisation de Google s’appliquent.
Obtenir un prêt immobilier au meilleur taux ?

En poursuivant votre navigation sans modifier vos paramètres, vous acceptez l'utilisation de cookies susceptibles de réaliser des statistiques de visite. Cliquez ici pour plus d'informations