Maison 4 pièces avec jardin - quartier flers-breucq

— Villeneuve-D'ascq 59491 —
199 000 €
89 m² / 99 m²
4 pièces
balcon/terrassejardin

Liberkeys vous propose en exclusivité à Villeneuve d'Ascq dans le quartier Flers-Breucq, cette maison à fort potentiel de 4 pièces et d'environ 89 m² (surface de référence DPE à 67 m2 + combles partiellement aménagés, 1 chambre de 15 m² et une petite pièce de 6 m² ) située dans un environnement calme, tout en restant à proximité de tout ce qui est nécessaire au quotidien.

Ce bien constitue une belle opportunité pour un premier achat en résidence principale ou même un investissement locatif étant donné les travaux à réaliser pouvant constituer des charges déductibles (combles à aménager, enduits et peinture murs et plafonds, sol du rez de chaussée, cuisine, salle de bains). A noter que toutes les fenêtres sont en double vitrage PVC.

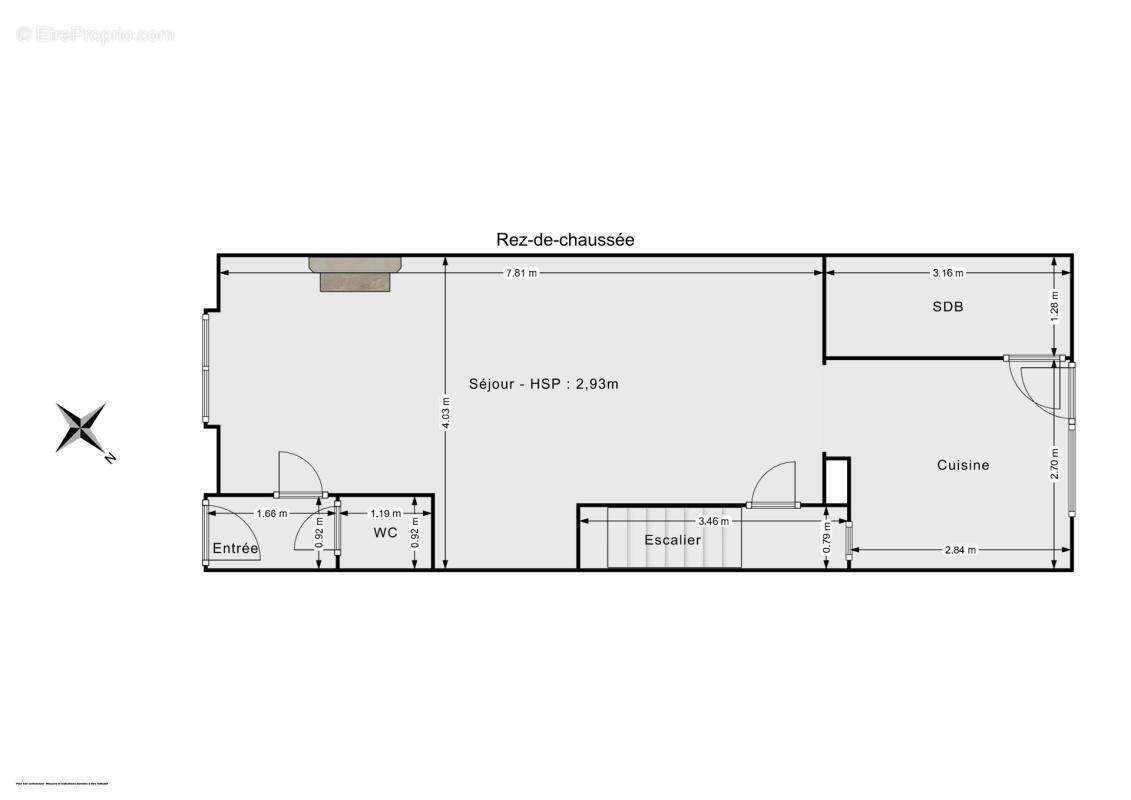
La distribution des pièces est optimale avec au rez de chaussée, une pièce de vie lumineuse d'environ 26 m², une cuisine séparée et équipée de 8 m², une salle d'eau, un WC, une petite véranda donnant accès au jardin et sa dépendance.

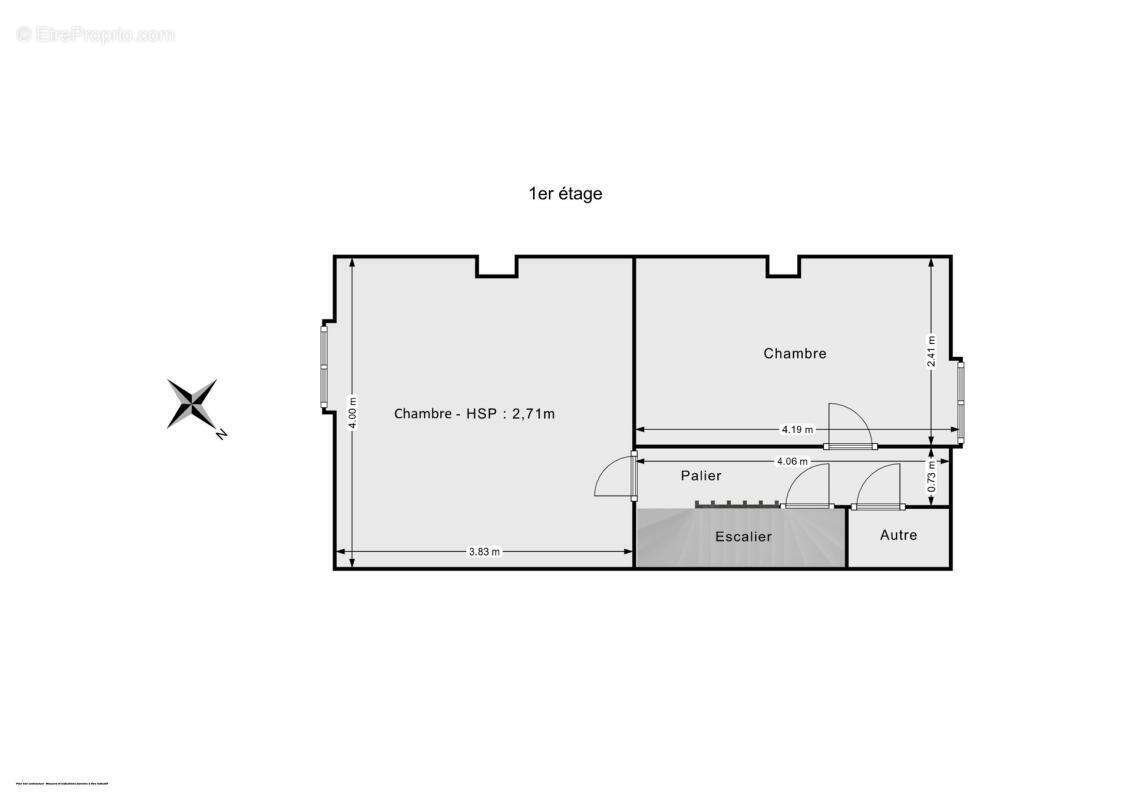
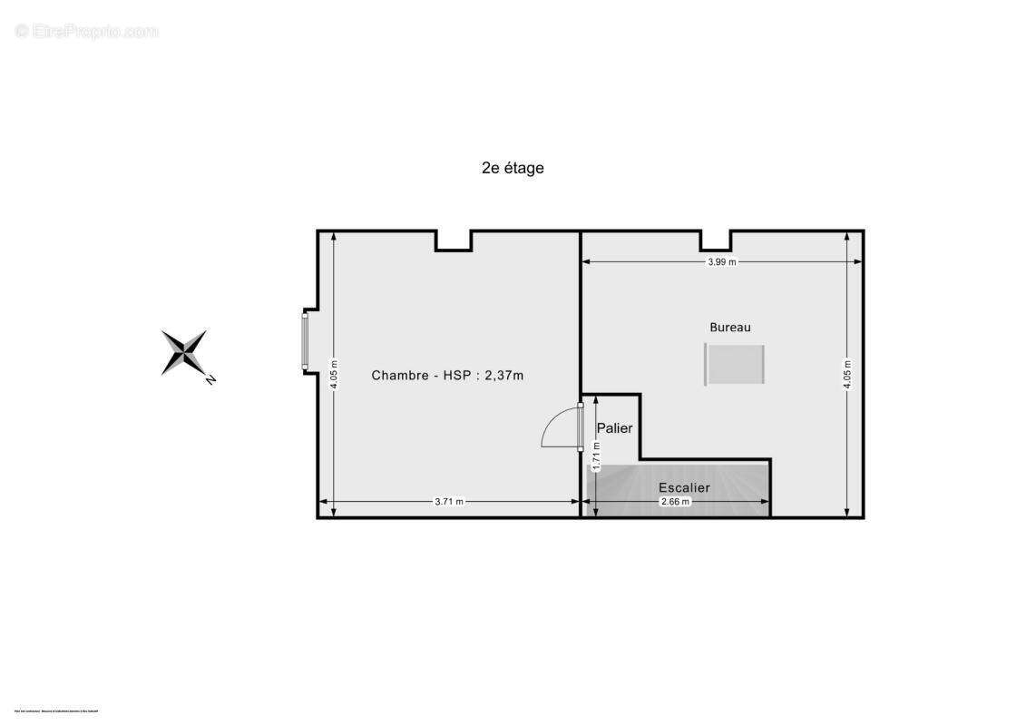
Au premier étage: deux chambres de plus de 9 et 15 m², un palier avec une zone de rangement. Au second étage: une chambre de 15 m², une zone non aménagée pouvant aisément devenir un bureau d'environ 6 m²

Côté environnement et vie de quartier, la maison est à quelques pas des arrêt de Tram "Le Sart " et " Planche Epinoy ", et tous les commerces sont accessibles à pieds ! (supermarché Match, Picard, petits commerces de la rue Jean Jaurès, boulangerie, bureau de poste, Aldi etc...).

Infos complémentaires:
- Taxe foncière de 936 €
- La maison a été entretenue régulièrement, factures à l'appui (réparations de chaudière, travaux de toiture, réfection complète de l'installation électrique, raccordement au tout à l'égout etc...)
- Fenêtres en PVC double vitrage partout

Ce bien vous plaît ? pensez à consulter la visite virtuelle et contactez moi directement. Lo Certo Sébastien, agent commercial immatriculé au RSAC de Lille sous le numéro 837791896. Référence annonce : DOM14220. Les honoraires sont à la charge du vendeur.
Voir plus

Référence: DOM14220
Honoraires à la charge du vendeur.
DPE
A
B
C
D
E
F
G
GES
A
B
C
D
E
F
G

Prêt immobilier

Vous souhaitez connaître votre capacité d’emprunt et trouver le meilleur crédit immobilier ?
Réaliser une simulation gratuite

Maison à VILLENEUVE-D'ASCQ
Maison à VILLENEUVE-D'ASCQ
Maison à VILLENEUVE-D'ASCQ
Maison à VILLENEUVE-D'ASCQ
Maison à VILLENEUVE-D'ASCQ
Maison à VILLENEUVE-D'ASCQ
Maison à VILLENEUVE-D'ASCQ
Maison à VILLENEUVE-D'ASCQ
Maison à VILLENEUVE-D'ASCQ
Maison à VILLENEUVE-D'ASCQ
Maison à VILLENEUVE-D'ASCQ
Maison à VILLENEUVE-D'ASCQ
Ce site est protégé par reCAPTCHA la Politique de confidentialité et les Conditions d’utilisation de Google s’appliquent.
Obtenir un prêt immobilier au meilleur taux ?

En poursuivant votre navigation sans modifier vos paramètres, vous acceptez l'utilisation de cookies susceptibles de réaliser des statistiques de visite. Cliquez ici pour plus d'informations