Bénéficiez des services de nos partenaires locaux soigneusement sélectionnés
pour vous accompagner dans votre parcours d'achat immobilier

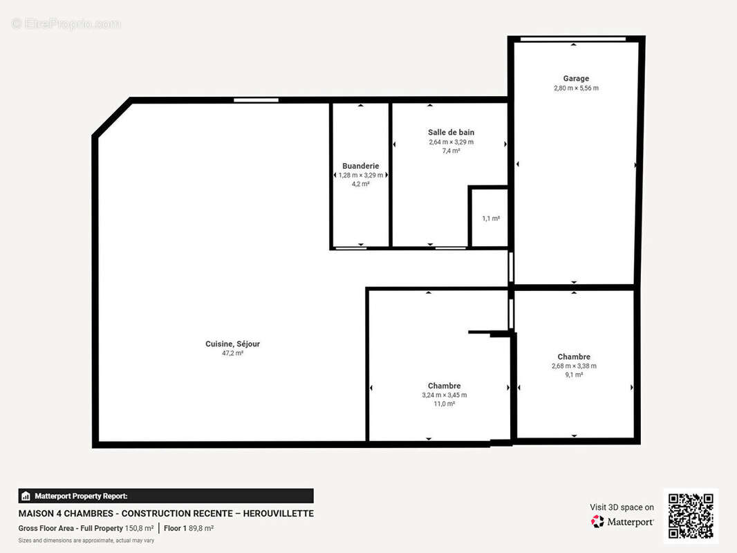
Maison 4 chambres - construction recente - 15min caen nord est

— Herouvillette 14850 —
406 000 €
138 m² / 644 m²
6 pièces
jardin

Nos partenaires locaux
Rue du Particulier vous propose à la vente cette maison de 138m² habitables, construite en 2017 et édifiée sur une parcelle de 644m² au cadastre. Il est possible d'acquérir 450m² de terrain non constructible en plus accolé à la parcelle. A voir en visite ! Cette maison vous offre une GRANDE PIECE DE VIE LUMINEUSE avec cuisine ouverte AMENAGEE et EQUIPEE donnant accès à une grande terrasse avec jacuzzi, deux chambres, une salle de bains, un WC séparé, une buanderie / chaufferie et un GARAGE. Le premier étage se compose d'une grande SUITE PARENTALE avec sa salle d'eau spacieuse disposant d'une double vasque, une chambre et un WC séparé Chauffage par POMPE A CHALEUR AIR/EAU et poêle ! Fenêtres en PVC double vitrage avec volets roulants éléctriques ! Adoucisseur d'eau. Assainissement : Tout-à-l'égout. DPE effectué en 2025 : Montant estimé des dépenses annuelles d'énergie pour un usage standard : entre 1030 euros et 1460 euros. Prix moyens des énergies indexés sur les années 2021, 2022 et 2023 (abonnements compris). DPE : B / GES : A. Consommation énergie primaire : 98 kWh/m²/an Les informations sur les risques auxquels ce bien est exposé sont disponible sur le site Géorisques : https://www.georisques.gouv.fr/ Honoraires à la charge du vendeur.
Voir plus

Référence: C570
DPE
A
B
C
D
E
F
G
GES
A
B
C
D
E
F
G

Prêt immobilier

Vous souhaitez connaître votre capacité d’emprunt et trouver le meilleur crédit immobilier ?
Réaliser une simulation gratuite

Maison à HEROUVILLETTE
Maison à HEROUVILLETTE
Maison à HEROUVILLETTE
Maison à HEROUVILLETTE
Maison à HEROUVILLETTE
Maison à HEROUVILLETTE
Maison à HEROUVILLETTE
Maison à HEROUVILLETTE
Maison à HEROUVILLETTE
Maison à HEROUVILLETTE
Maison à HEROUVILLETTE
Maison à HEROUVILLETTE
Ce site est protégé par reCAPTCHA la Politique de confidentialité et les Conditions d’utilisation de Google s’appliquent.
Obtenir un prêt immobilier au meilleur taux ?

En poursuivant votre navigation sans modifier vos paramètres, vous acceptez l'utilisation de cookies susceptibles de réaliser des statistiques de visite. Cliquez ici pour plus d'informations