Cannes petit juas exceptionnel 5p terrasse renove parking

— Cannes 06150 —
1 699 000 €
182 m² / 70 m²
5 pièces
parkingbalcon/terrasse

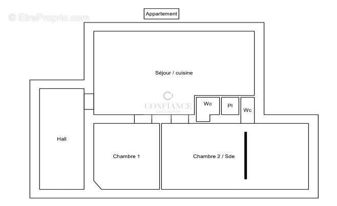
Prestigieux 5 pièces dans villa Belle époque –Petit juas (Secteur Stanislas) Villa Stanislas 1880 copropriété Bourgeoise intimiste de 4 lots, découvrez cet appartement d'exception de 181 m², L'alliance subtile de l'authenticité et du contemporain, sublimé par un confort moderne haut de gamme. Véritable rareté sur le marché, ce bien se vit comme une villa indépendante (car entrée privative au sein de la copropriété), alliant élégance, raffinement. L'entrée lumineuse se compose d'un très bel escalier en marbre et annonce le ton pour vous conduire vers un vaste salon-séjour baigné de lumière, où chaque détail a été pensé pour offrir une atmosphère chaleureuse et raffinée. La cuisine, signée SNAIDERO dessiné par Pinin Farina, se distingue par son design unique et fonctionnalité : plan de travail en quartz noir et crème, électroménager Miele, et finitions haut de gamme pour vos moments culinaires. L'espace nuit séduit par son confort absolu : une suite parentale majestueuse avec salle de bains privative (baignoire, douche à l'italienne et WC), à laquelle s'ajoute une seconde chambre élégante, idéale pour recevoir. À l'extérieur, une belle terrasse privative complètement intimiste à proximité du jardin offrant un extérieur de 100m² environ, véritable havre de paix en plein cœur de ville, propice à la détente ou aux repas en plein air. Depuis ladite terrasse, un second appartement en duplex s'offre à vous : lumineux et spacieux, il comprend une grande pièce de vie, un WC invité, et une spectaculaire chambre de plus de 45 m² en mezzanine, modulable à souhait (suite, bureau, atelier ou espace de loisirs ou permettant aussi la création de deux chambres confortables). Ce bien unique, pensé comme un loft familial au charme bourgeois, conjugue volumes généreux, indépendance et polyvalence. Rare opportunité d'acquérir un cadre de vie d'exception, mariant art de vivre citadin et sérénité absolue. Prestations de qualité : double vitrage, climatisation réversible, fibre optique, deux ballons d'eau chaude. En complément, un stationnement privatif à 250 mètres, une vaste cave et un placard extérieur viennent parfaire ce bien rare. (Belle hauteur sous plafond de 3.15 mètres sur le 1er appartement et sur le duplex 3.55 sur le bas et 4.74 à 2.55 mètres sur le niveau du haut) Les informations sur les risques auxquels ce bien est exposé sont disponibles sur le site Géorisques http://www.georisques.gouv.fr Toute l'équipe Confiance Immobilière vous remercie. Plaquette de présentation complète Visite virtuelle commentée sur demande. 4 lots de copropriété - Taxe F 1000 € - Charges 66.€ /mois - Surface CARREZ : 181.52 m² / Hab 181.52. m² - Dpe B / A Honoraires à la charge du vendeur. Aucune connaissance de procédures en cours dans la copropriété.
Voir plus

Référence: 3332
Honoraires à la charge du vendeur.
Barème des honoraires
DPE
A
B
C
D
E
F
G
GES
A
B
C
D
E
F
G

Prêt immobilier

Vous souhaitez connaître votre capacité d’emprunt et trouver le meilleur crédit immobilier ?
Réaliser une simulation gratuite

Appartement à CANNES
Appartement à CANNES
Appartement à CANNES
Appartement à CANNES
Appartement à CANNES
Appartement à CANNES
Appartement à CANNES
Appartement à CANNES
Appartement à CANNES
Appartement à CANNES
Appartement à CANNES
Appartement à CANNES
Appartement à CANNES
Appartement à CANNES
Appartement à CANNES
Appartement à CANNES
Appartement à CANNES
Appartement à CANNES
Appartement à CANNES
Appartement à CANNES
Appartement à CANNES
Appartement à CANNES
Appartement à CANNES
Appartement à CANNES
Appartement à CANNES
Ce site est protégé par reCAPTCHA la Politique de confidentialité et les Conditions d’utilisation de Google s’appliquent.
Obtenir un prêt immobilier au meilleur taux ?

En poursuivant votre navigation sans modifier vos paramètres, vous acceptez l'utilisation de cookies susceptibles de réaliser des statistiques de visite. Cliquez ici pour plus d'informations