Maison 200m² à vaureal

— Vaureal 95490 —
599 000 €
200 m² / 3 224 m²
7 pièces
parkingbalcon/terrassejardin

95490 - VAUREAL VILLAGE- EN EXCLUSIVITE , MAISON SPACIEUSE DE 200 m² TOUT JUSTE RENOVEE, EN LISIERE DE FORET - 6 Chambres,- SANS VIS-A-VIS - MAISON FAMILIALE AVEC TRES BEAU PARC DE 3224m²
Efficity, l'agence immobilière qui estime votre bien en ligne, vous propose cette très belle propriété familiale, idéalement située : nichée au fond d'une impasse et en lisière de forêt

Ambiance campagne à 40 minutes de la Défense et à 35 km de Paris, vous pourrez vous promener aux bords de l'Oise, ou dans la forêt, et profiter de l'ile de loisirs de Cergy, tout en étant à 10 mn à pied de toutes les commodités.

Au RDC vous trouverez une cuisine équipée ouverte sur un grand séjour/salle à manger CATHEDRALE avec CHEMINEE de 50m², 2 chambres, une salle d'eau, et des WC séparés.

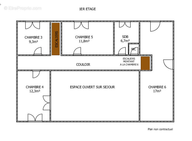
Au premier étage vous découvrirez 3 chambres dont une donnant accès à une salle de bain, et des WC séparés.

Un escalier vous mènera à une 6ème chambre mansardée, puis aux GRENIERS AMENAGES en deux grandes pièces à utiliser en fonction de ses besoins et de ses envies (chambre, bureau, salle de jeux, salle de cinéma…etc)

Au sous-sol : buanderie et cave.

RENOVEE en aout 2025, vous bénéficierez d'une :
-TOITURE TOUTE NEUVE
-POMPE A CHALEUR
-DE FENETRES NEUVES

Le parc SANS VIS-A-VIS de plus de 3200m² est composé d'une partie prairie et d'une partie boisée. Ainsi, vous pourrez profiter d'un cadre naturel exceptionnel…

… Et tout cela à proximité à pied des écoles, collège, lycée, Commerces, restaurants, cinéma, piscine, salle de spectacles, bus.

10 minutes RER A vers PARIS/LA DEFENSE, Ligne L vers PAIS SAINT LAZAR

Vous recherchez une maison coup de cœur, idéalement située ? Alors, n'hésitez plus, contactez Catherine BLOUIN au [Coordonnées masquées]
Les informations sur les risques auxquels ce bien est exposé sont disponibles sur le site Georisque : georisques. gouv. fr
Ghislaine Desenfant - EI - est Agent Commercial mandataire en immobilier, immatriculé au Registre Spécial des Agents Commerciaux du Tribunal de Commerce de Nanterre sous le n°828200204.
Siège social du mandant : effiCity, 48 avenue de Villiers - 75017 PARIS - Société par Actions Simplifiée, société au capital de 132 373,05 euros, immatriculée au RCS Paris 497 617 746 et titulaire de la Carte professionnelle CPI 75[Coordonnées masquées]02 025 - CCI Paris IDF - Caisse de Garantie : GALIAN Assurances 89 rue de la Boétie 75008 Paris
Voir plus

Référence: 195154
Honoraires d'agence de 3.28% à la charge de l'acquéreur
Barème des honoraires
DPE
A
B
C
D
E
F
G
GES
A
B
C
D
E
F
G

Prêt immobilier

Vous souhaitez connaître votre capacité d’emprunt et trouver le meilleur crédit immobilier ?
Réaliser une simulation gratuite

Maison à VAUREAL
Maison à VAUREAL
Maison à VAUREAL
Maison à VAUREAL
Maison à VAUREAL
Maison à VAUREAL
Maison à VAUREAL
Maison à VAUREAL
Maison à VAUREAL
Maison à VAUREAL
Maison à VAUREAL
Maison à VAUREAL
Maison à VAUREAL
Maison à VAUREAL
Maison à VAUREAL
Maison à VAUREAL
Maison à VAUREAL
Ce site est protégé par reCAPTCHA la Politique de confidentialité et les Conditions d’utilisation de Google s’appliquent.
Obtenir un prêt immobilier au meilleur taux ?

En poursuivant votre navigation sans modifier vos paramètres, vous acceptez l'utilisation de cookies susceptibles de réaliser des statistiques de visite. Cliquez ici pour plus d'informations