Bénéficiez des services de nos partenaires locaux soigneusement sélectionnés
pour vous accompagner dans votre parcours d'achat immobilier

Elne maison de caractère 155 m2 avec 2 logements

— Elne 66200 —
277 000 €
155 m² / 106 m²
5 pièces
parkingbalcon/terrassejardin

Nos partenaires locaux
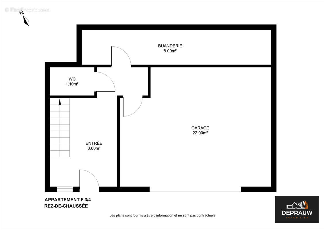
ELNE centre, proche de nombreuses commodités, ancienne grange réhabilitée en une très belle maison de ville comprenant deux logements indépendants.
L'habitation principale est un T3 duplex d'environ 111 m2 bénéficiant d'une belle hauteur sous plafond ! Au rez-de-chaussée vous découvrirez une entrée spacieuse, un garage de 25 m2, une buanderie et un wc. Puis vous accéderez à l'étage par un bel escalier de style industriel et découvrirez une pièce à vivre très lumineuse de 43 m2 agrémentée de la climatisation réversible, d'un poêle à bois et de pierres apparentes; l'espace nuit comporte deux chambres parentales spacieuses avec salles d'eau attenantes, deux wc supplémentaires et un dégagement. Au dernier niveau, une terrasse tropézienne de 16 m2 vous offrira un joli point de vue sur la vieille ville.
Le second logement de type T2 (env.44 m2) est accessible au rez-de-chaussée par une porte indépendante. Il se compose comme suit : un séjour avec cuisine équipée ouverte, une chambre de 12 m2 avec rangements et une salle d'eau fonctionnelle avec wc.
Les deux logements communiquent par une porte située entre l'entrée principale et la chambre de l'appartement du bas. Vous pouvez donc envisager d'habiter l'ensemble ou d'occuper un des deux logement et louer l'autre (valeur locative mensuelle environ 450 € et 950 €) car il y a deux compteurs d'eau et d'électricité !
Pour l'appartement T3 duplex : le montant des dépenses annuelles d'énergie estimé pour un usage standard est compris entre 738 € et 998 € abonnements compris (prix moyens des énergies indexés sur l'année 2021).
Pour l'appartement T2 : le montant des dépenses annuelles d'énergie estimé pour un usage standard est compris entre 477 € et 645 € abonnements compris (prix moyens des énergies indexés sur l'année 2021).
Les informations sur les risques auxquels ce bien est exposé sont disponibles sur le site Géorisques : www.georisques.gouv.fr.
N'hésitez pas à nous contacter au [Coordonnées masquées] pour de plus amples informations ou organiser une visite.
Voir plus

Référence: 626
Barème des honoraires
DPE
A
B
C
D
E
F
G
GES
A
B
C
D
E
F
G

Prêt immobilier

Vous souhaitez connaître votre capacité d’emprunt et trouver le meilleur crédit immobilier ?
Réaliser une simulation gratuite

Maison à ELNE
Maison à ELNE
Maison à ELNE
Maison à ELNE
Maison à ELNE
Maison à ELNE
Maison à ELNE
Maison à ELNE
Maison à ELNE
Maison à ELNE
Maison à ELNE
Maison à ELNE
Maison à ELNE
Maison à ELNE
Maison à ELNE
Maison à ELNE
Maison à ELNE
Maison à ELNE
Maison à ELNE
Maison à ELNE
Ce site est protégé par reCAPTCHA la Politique de confidentialité et les Conditions d’utilisation de Google s’appliquent.
Obtenir un prêt immobilier au meilleur taux ?

En poursuivant votre navigation sans modifier vos paramètres, vous acceptez l'utilisation de cookies susceptibles de réaliser des statistiques de visite. Cliquez ici pour plus d'informations