Bénéficiez des services de nos partenaires locaux soigneusement sélectionnés
pour vous accompagner dans votre parcours d'achat immobilier

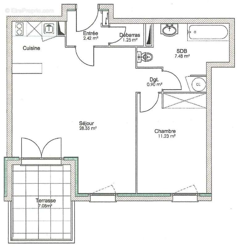
Appartement t2 dans residence avec piscine

— Illzach 68110 —
95 000 €
50 m²
2 pièces
parkingbalcon/terrasseascenseur

Nos partenaires locaux
A VENDRE Nous vous proposons à la vente ce joli T2 d'environ 50m² situé dans une résidence sécurisée de 2009 avec piscine extérieure ! Le bien est situé au 2ème étage avec ascenseur. Il se compose d'une entrée avec débarras, un séjour avec cuisine aménagée, une chambre avec placard mural, une salle de bains, une terrasse. Une place de parking en sous-sol est comprise avec le logement.

Référence: 45
Bien en copropriété. Nombre de lots : 72. Charges de copropriété : 1308 €.
Honoraires d'agence de 5.55% à la charge de l'acquéreur
Barème des honoraires
DPE
A
B
C
D
E
F
G
GES
A
B
C
D
E
F
G

Prêt immobilier

Vous souhaitez connaître votre capacité d’emprunt et trouver le meilleur crédit immobilier ?
Réaliser une simulation gratuite

Appartement à ILLZACH
Appartement à ILLZACH
Appartement à ILLZACH
Appartement à ILLZACH
Appartement à ILLZACH
Appartement à ILLZACH
Appartement à ILLZACH
Ce site est protégé par reCAPTCHA la Politique de confidentialité et les Conditions d’utilisation de Google s’appliquent.
Obtenir un prêt immobilier au meilleur taux ?

En poursuivant votre navigation sans modifier vos paramètres, vous acceptez l'utilisation de cookies susceptibles de réaliser des statistiques de visite. Cliquez ici pour plus d'informations