Appartement 3 pièces, cambo les bains

— Cambo-Les-Bains 64250 —
260 000 €
61 m²
3 pièces
parkingbalcon/terrassepiscine

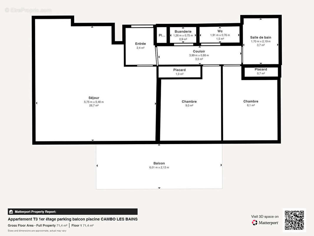
Appartement T3 avec parking couvert, terrasse, piscine et fronton. A Cambo-les-Bains, ville thermale en plein développement et idéalement située entre Bayonne, Biarritz et Saint-Jean-Pied-de-Port, découvrez cet appartement de 61m² environ au sein d'une résidence de standing arborée avec piscine, construite en 2007. Situé au premier et dernier étage, il offre une entrée avec placard, une pièce de vie lumineuse de près de 30 m² avec cuisine ouverte, prolongée par une terrasse de 12 m² exposée Ouest et sans vis-à-vis, parfaite pour profiter des fins de journée. Le coin nuit comprend deux chambres avec placards, une salle de bains et un WC indépendant. Un grand placard supplémentaire, aménagé en espace buanderie, complète le couloir. Un stationnement couvert privatif vient parfaire ce bien. Et pour garder la forme sans abonnement en salle de sport : l'escalier extérieur abrité pour accéder à l'appartement, la piscine de la résidence et même le fronton privé seront vos meilleurs alliés ! Pour vous projeter dès maintenant, profitez de nos outils innovants : Visite virtuelle immersive Prises de vue drone Projection 3D de votre futur chez vous Idéal pour une jeune famille, une belle retraite ou un investisseur (hors loi d'encadrement des loyers et sans obligation de compensation). Copropriété de 262 lots - dont 99 lots habitation. (Pas de procédure en cours). Charges annuelles : 1155 euros. Pascale Nadaud (EI) Agent Commercial - Numéro RSAC : 944919760 - Bayonne.
Voir plus

Référence: 176
Bien en copropriété. Nombre de lots : 262. Charges de copropriété : 1155 €.
Honoraires à la charge du vendeur.
Barème des honoraires
DPE
A
B
C
D
E
F
G
GES
A
B
C
D
E
F
G

Prêt immobilier

Vous souhaitez connaître votre capacité d’emprunt et trouver le meilleur crédit immobilier ?
Réaliser une simulation gratuite

Appartement à CAMBO-LES-BAINS
Appartement à CAMBO-LES-BAINS
Appartement à CAMBO-LES-BAINS
Appartement à CAMBO-LES-BAINS
Appartement à CAMBO-LES-BAINS
Appartement à CAMBO-LES-BAINS
Appartement à CAMBO-LES-BAINS
Appartement à CAMBO-LES-BAINS
Appartement à CAMBO-LES-BAINS
Appartement à CAMBO-LES-BAINS
Appartement à CAMBO-LES-BAINS
Appartement à CAMBO-LES-BAINS
Appartement à CAMBO-LES-BAINS
Appartement à CAMBO-LES-BAINS
Appartement à CAMBO-LES-BAINS
Appartement à CAMBO-LES-BAINS
Ce site est protégé par reCAPTCHA la Politique de confidentialité et les Conditions d’utilisation de Google s’appliquent.
Obtenir un prêt immobilier au meilleur taux ?

En poursuivant votre navigation sans modifier vos paramètres, vous acceptez l'utilisation de cookies susceptibles de réaliser des statistiques de visite. Cliquez ici pour plus d'informations