90800 bavilliers – maison 10 pièces – plain-pied – 7/8 chambres - terrasse - garage 53 m²

— Bavilliers 90800 —
230 000 €
210 m² / 1 152 m²
10 pièces
parking

Optimhome vous présente cette grande maison de plain-pied avec 260 m² de surface utile dont 210 m² surface habitable.
Idéale pour grande famille ou multigénérationnelle, activité professionnelle avec parking dédié, grand terrain de 12 ares

************************************************************************************************
VENTE INTERACTIVE : Le prix de première offre possible est fixé à 150 000 € (honoraires inclus). Aucuns frais supplémentaires ne sont à prévoir.
La participation à la vente interactive est soumise à une visite du bien et à la constitution d'un dossier de financement validé.
Toutes les offres seront transmises au vendeur qui restera libre dans la sélection de celle à laquelle il entend donner suite.
************************************************************************************************

À seulement 4 minutes de Belfort et de l'A36, découvrez une maison rare sur le marché :
- Confort du plain-pied
- Grands volumes
- Multiples possibilités d'aménagement (jusqu'à 3 logements indépendants)

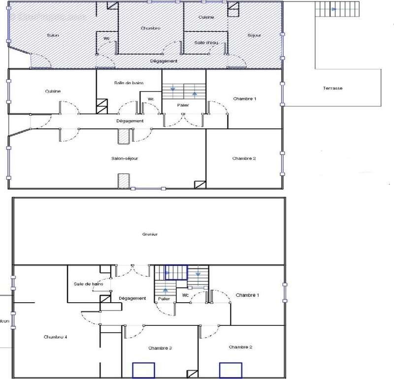
Organisation des espaces :

Rez-de-chaussée (70 m² habitables)
- Salon/séjour lumineux de 27 m²
- Cuisine de 11 m²
- 2 chambres (14 m² chacune)
- Salle d'eau + WC séparés

Étage (86 m² habitables – modulable en logement indépendant)
- 4 chambres (jusqu'à 26 m²)
- Possibilité suite parentale ou création cuisine/séjour indépendant
- Salle d'eau + WC
- Balcon + terrasse
- Comble de 27 m²

Dépendance (51 m² + terrasse 30 m²)
- Entrée séparée, idéal location saisonnière, étudiant ou activité professionnelle
- Séjour/cuisine 16 m²
- 1 chambre + salle d'eau + WC
- Grande pièce de 18 m² avec accès terrasse

Sous-sol semi-enterré (100 m²)
- Garage 3 voitures de 53 m² (porte motorisée 2,5m x 2,5 m + fosse mécanique)
- Atelier, cave, cellier, nombreux espaces de rangement

Points forts :
- Maison évolutive : famille, activité pro, location
- Possibilité de crée une véranda
- Isolation extérieure complète
- Toiture pouvoir être équipée de panneaux solaires
- Commerces, écoles, transports et services à pied

Un bien polyvalent et stratégique, idéal pour une grande famille, un projet multigénérationnel ou un mix habitation/professionnel.

Un emplacement stratégique :

Écoles & enseignement :
• École maternelle Jacques Pignot à Bavilliers
• École élémentaire Maurice Henry
• Lycée professionnel Denis Diderot à Bavilliers

Commerces & vie quotidienne :
• Boulangerie, pharmacie, salon de coiffure, bureau de tabac, café et restaurant dans le centre de Bavilliers, accessibles à pied en quelques minutes (détails déjà fournis)
• Supermarchés à proximité de Bavilliers/Belfort (quelques minutes en voiture)

Transports :
• Lignes de bus du réseau Optymo desservant Bavilliers : lignes 1, 2, 4… dont certaines desservent Argiésans.
• Proximité d'arrêts de bus (ex : arrêt « La Belle », « Rue de Buc ») à quelques minutes à pied.
• Accès rapide à l'autoroute A36 (quelques minutes en voiture)

Santé :
• Centre hospitalier Nord Franche-Comté (HNFC), situé entre Belfort et Montbéliard, avec antenne (site Pierre-Engel) à Bavilliers.
• Centre d'imagerie médicale avec IRM à Bavilliers.

Loisirs & culture :
• Parc communal / espaces verts autour de Bavilliers (promenades, sentiers)
• Associations sportives locales (dans et autour de la commune)
• Proximité de Belfort pour plus grands loisirs : cinéma, culture, grands restaurants
Les honoraires sont à la charge du vendeur.
Les informations sur les risques auxquels ce bien est exposé sont disponibles sur le site Géorisques : www. georisques. gouv. fr.

Contactez Philippe LAPIERRE Entrepreneur Individuel, Agent commercial OptimHome (RSAC N°853 018 711 Greffe de BELFORT) [Coordonnées masquées] (réf. 592776 )
Voir plus

Référence: 830034360222
Honoraires à la charge du vendeur.
DPE
A
B
C
D
E
F
G
GES
A
B
C
D
E
F
G

Prêt immobilier

Vous souhaitez connaître votre capacité d’emprunt et trouver le meilleur crédit immobilier ?
Réaliser une simulation gratuite

Maison à BAVILLIERS
Maison à BAVILLIERS
Maison à BAVILLIERS
Maison à BAVILLIERS
Maison à BAVILLIERS
Maison à BAVILLIERS
Maison à BAVILLIERS
Maison à BAVILLIERS
Maison à BAVILLIERS
Maison à BAVILLIERS
Maison à BAVILLIERS
Maison à BAVILLIERS
Maison à BAVILLIERS
Maison à BAVILLIERS
Maison à BAVILLIERS
Maison à BAVILLIERS
Maison à BAVILLIERS
Maison à BAVILLIERS
Maison à BAVILLIERS
Ce site est protégé par reCAPTCHA la Politique de confidentialité et les Conditions d’utilisation de Google s’appliquent.
Obtenir un prêt immobilier au meilleur taux ?

En poursuivant votre navigation sans modifier vos paramètres, vous acceptez l'utilisation de cookies susceptibles de réaliser des statistiques de visite. Cliquez ici pour plus d'informations