Bénéficiez des services de nos partenaires locaux soigneusement sélectionnés
pour vous accompagner dans votre parcours d'achat immobilier

Maison à vendre 4 pièces villeneuve d'ascq (59)

— Villeneuve-D'ascq 59650 —
209 500 €
73 m² / 167 m²
4 pièces
parkingjardin

Nos partenaires locaux
EXCLUSIVITÉ – MAISON BEL-ÉTAGE À RÉNOVER – VILLENEUVE-D'ASCQ QUARTIER RÉSIDENCE
Maison 3 chambres – Jardin – Terrasse – Double garage – 73 m² habitables + 52 m² de surface annexe
Marge de négociation raisonnable possible

À vendre en exclusivité, maison bel-étage à fort potentiel située dans le quartier résidentiel très recherché de La Résidence à Villeneuve-d'Ascq.

Cette maison de type bel-étage développe environ 73 m² habitables complétés par 52 m² d'annexes (buanderie et grand double garage au rez de chaussée). Le tout implanté sur une belle parcelle avec jardin arboré et terrasse avec pergola.

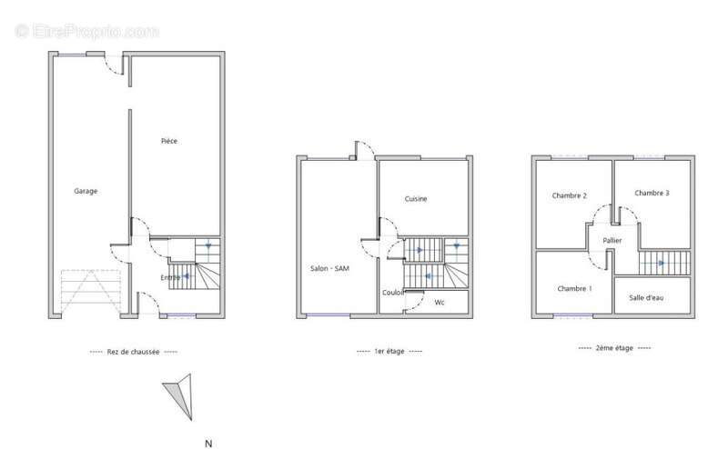
REZ-DE-CHAUSSÉE (52 m²)

Entrée spacieuse

Grande buanderie

Double garage traversant

Accès direct au jardin clos et arboré
=> Possibilité d'aménagement en pièce de vie, bureau, salle de sport ou studio indépendant.

1ER ÉTAGE (33 m²)

Cuisine indépendante

Séjour lumineux (séparation avec la cuisine simple par étagères, facilement décloisonnable)

WC séparés

Accès à une grande terrasse de 24 m² avec pergola haut de gamme
=> Possibilité de créer une belle pièce de vie ouverte avec extension sur la terrasse.

2E ÉTAGE (environ 33 m² au sol)

3 chambres lumineuses (9,4 m², 9 m², 7,22 m²)

Salle d'eau

LES ATOUTS :

Maison saine, construction solide

Double garage + stationnement

Beau jardin sans vis-à-vis

Terrasse en bois avec pergola

Fort potentiel d'agrandissement, notamment au rez-de-chaussée

Quartier calme et très bien desservi : métro, écoles, commerces, lacs, axes routiers

Travaux à prévoir :

Rénovation complète

Système de chauffage à créer (actuellement radiateurs électriques mobiles)

Rafraîchissement global à envisager

Idéal pour famille, projet de rénovation ou investisseur recherchant un bien avec fort potentiel à Villeneuve-d'Ascq dans un quartier recherché.

Philippe-Henry Pierson Fauqueur
[Coordonnées masquées]
Conseiller immobilier indépendant OPTIMHOME
Annonce en EXCLUSIVITÉ – Bien rare à visiter sans tarder !

Les honoraires sont à la charge du vendeur.
Logement à consommation énergétique excessive : classe G
Les informations sur les risques auxquels ce bien est exposé sont disponibles sur le site Géorisques : www. georisques. gouv. fr.

Contactez Philippe-Henry PIERSON-FAUQUEUR Entrepreneur Individuel, Agent commercial OptimHome (RSAC N°535 241 491 Greffe de TOURCOING) [Coordonnées masquées] (réf. 593564 )
Voir plus

Référence: 830030699815
Honoraires à la charge du vendeur.
DPE
A
B
C
D
E
F
G
GES
A
B
C
D
E
F
G

Prêt immobilier

Vous souhaitez connaître votre capacité d’emprunt et trouver le meilleur crédit immobilier ?
Réaliser une simulation gratuite

Maison à VILLENEUVE-D'ASCQ
Maison à VILLENEUVE-D'ASCQ
Maison à VILLENEUVE-D'ASCQ
Maison à VILLENEUVE-D'ASCQ
Maison à VILLENEUVE-D'ASCQ
Maison à VILLENEUVE-D'ASCQ
Maison à VILLENEUVE-D'ASCQ
Maison à VILLENEUVE-D'ASCQ
Maison à VILLENEUVE-D'ASCQ
Maison à VILLENEUVE-D'ASCQ
Maison à VILLENEUVE-D'ASCQ
Maison à VILLENEUVE-D'ASCQ
Maison à VILLENEUVE-D'ASCQ
Ce site est protégé par reCAPTCHA la Politique de confidentialité et les Conditions d’utilisation de Google s’appliquent.
Obtenir un prêt immobilier au meilleur taux ?

En poursuivant votre navigation sans modifier vos paramètres, vous acceptez l'utilisation de cookies susceptibles de réaliser des statistiques de visite. Cliquez ici pour plus d'informations