Bénéficiez des services de nos partenaires locaux soigneusement sélectionnés
pour vous accompagner dans votre parcours d'achat immobilier

Maison 154m² à bordeaux

— Bordeaux 33300 —
499 000 €
154 m² / 204 m²
9 pièces
balcon/terrassejardin

Nos partenaires locaux
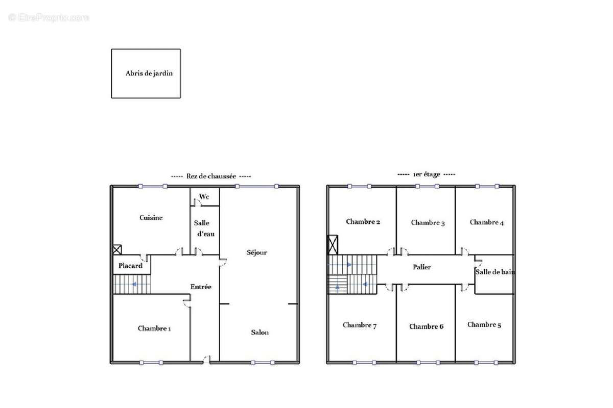
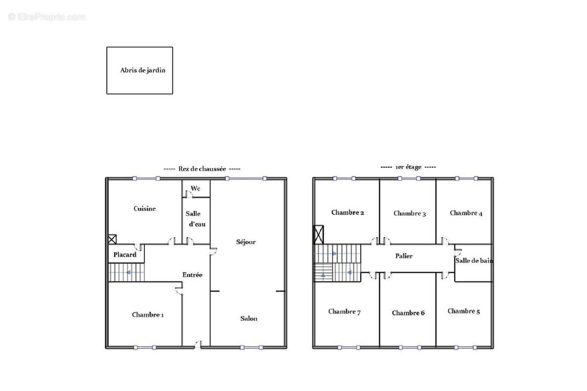
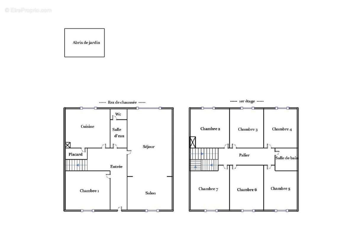
Dr House Immobilier vous propose, en exclusivité, cette belle maison familiale de 154 m² située aux Chartrons.

Passé le seuil, vous découvrirez une entrée desservant un lumineux séjour et une cuisine donnant tous deux sur le jardin ainsi qu’une chambre, une salle d’eau et des toilettes.

À l’étage, un dégagement dessert six chambres supplémentaires ainsi qu’une salle de bains.

À l’extérieur, un jardin spacieux, arboré et sans vis-à-vis saura séduire les amateurs de tranquillité et d’intimité.

On aime

• Un emplacement privilégié
• Un jardin intimiste de belles dimensions
• De beaux volumes offrant un fort potentiel

Commodités à proximité

• Tram B à 500 m
• Crèche à 60 m
• Bus Lignes 5 / 7 / 27 / 53
• Commerces : pharmacie, boulangerie, alimentation, coiffeur...

Vous recherchez une maison familiale à rénover, dans un environnement qualitatif pour créer votre futur « chez vous » ? Ce bien est fait pour vous !

Contactez-nous pour obtenir davantage d’informations.

Visites possibles du lundi au dimanche.

Stephan Herzig - EI - Agent commercial immatriculé au RSAC de BORDEAUX sous le numéro 887 885 606. Ce bien vous est présenté par Stephan Herzig, votre conseiller indépendant Dr House Immo.
Voir plus

Référence: 107138DHI2698
Honoraires d'agence de 4.61% à la charge de l'acquéreur
Barème des honoraires
DPE
A
B
C
D
E
F
G
GES
A
B
C
D
E
F
G

Prêt immobilier

Vous souhaitez connaître votre capacité d’emprunt et trouver le meilleur crédit immobilier ?
Réaliser une simulation gratuite

Maison à BORDEAUX
Maison à BORDEAUX
Maison à BORDEAUX
Maison à BORDEAUX
Maison à BORDEAUX
Maison à BORDEAUX
Maison à BORDEAUX
Maison à BORDEAUX
Maison à BORDEAUX
Maison à BORDEAUX
Maison à BORDEAUX
Maison à BORDEAUX
Maison à BORDEAUX
Maison à BORDEAUX
Maison à BORDEAUX
Maison à BORDEAUX
Maison à BORDEAUX
Maison à BORDEAUX
Maison à BORDEAUX
Maison à BORDEAUX
Maison à BORDEAUX
Maison à BORDEAUX
Maison à BORDEAUX
Maison à BORDEAUX
Maison à BORDEAUX
Maison à BORDEAUX
Maison à BORDEAUX
Ce site est protégé par reCAPTCHA la Politique de confidentialité et les Conditions d’utilisation de Google s’appliquent.
Obtenir un prêt immobilier au meilleur taux ?

En poursuivant votre navigation sans modifier vos paramètres, vous acceptez l'utilisation de cookies susceptibles de réaliser des statistiques de visite. Cliquez ici pour plus d'informations