29520 châteauneuf du faou ensemble de deux maisons dont 1 gîte , au calme sans vis à vis

— Chateauneuf-Du-Faou 29520 —
320 000 €
172 m² / 1 400 m²
8 pièces

Ensemble composé de deux maisons.
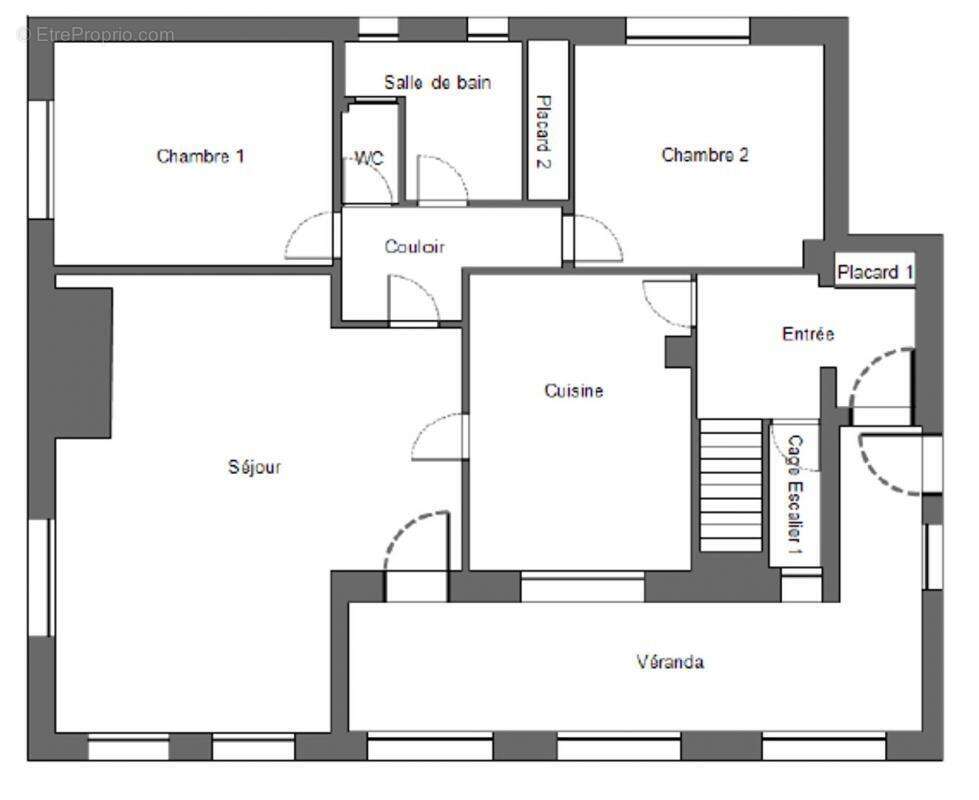
La première fait 172 m², sous-sol complet .
En étage une entrée une véranda une cuisine un séjour 2 chambres, salle de bain, wc
En étage : une cuisine, 3 chambres un wc indépendant une salle d'eau
La deuxième fait 41 m², maison exploitée en gîte.
De plain-pied : cuisine sur séjour avec salle d'eau.
En étage et en mezzanine une chambre.
L'ensemble sur 1400 m².
Au calme pas de vis-à-vis
Tout à l'égout, pompe à chaleur dans la grande maison.

Budget : 320 000 euros honoraires inclus.

Cette présente annonce a été rédigée sous la responsabilité éditoriale de Philippe BALAC agissant sous le statut d'agent commercial immatriculé au RSAC QUIMPER 753373794 auprès de la SAS PROPRIETES PRIVEES, Réseau national immobilier, au capital de 40000 euros, 44 ALLÉE DES CINQ CONTINENTS - ZAC LE CHÊNE FERRÉ, 44120 VERTOU, RCS Nantes n° 487 624 777 00040, Carte professionnelle T et G n° CPI 44[Coordonnées masquées]10 388 CCI Nantes-Saint Nazaire. Garantie GALIAN - 89 rue de la Boétie, 75008 Paris
Mandat réf : 420868 - Le professionnel garantit et sécurise votre projet immobilier.
Honoraires 6.5 % à la charge du vendeur.
Consommation énergie primaire C 163 kWh/m2 par an
Gaz Effet de Serre A 5 CO2/m2/an
Les informations sur les risques auxquels ce bien est exposé sont disponibles sur le site Géorisques : www. georisques. gouv. fr
Voir plus

Référence: 420868BCP
Honoraires à la charge du vendeur.
DPE
A
B
C
D
E
F
G
GES
A
B
C
D
E
F
G

Prêt immobilier

Vous souhaitez connaître votre capacité d’emprunt et trouver le meilleur crédit immobilier ?
Réaliser une simulation gratuite

Maison à CHATEAUNEUF-DU-FAOU
Maison à CHATEAUNEUF-DU-FAOU
Maison à CHATEAUNEUF-DU-FAOU
Maison à CHATEAUNEUF-DU-FAOU
Maison à CHATEAUNEUF-DU-FAOU
Maison à CHATEAUNEUF-DU-FAOU
Maison à CHATEAUNEUF-DU-FAOU
Maison à CHATEAUNEUF-DU-FAOU
Maison à CHATEAUNEUF-DU-FAOU
Ce site est protégé par reCAPTCHA la Politique de confidentialité et les Conditions d’utilisation de Google s’appliquent.
Obtenir un prêt immobilier au meilleur taux ?

En poursuivant votre navigation sans modifier vos paramètres, vous acceptez l'utilisation de cookies susceptibles de réaliser des statistiques de visite. Cliquez ici pour plus d'informations