Bénéficiez des services de nos partenaires locaux soigneusement sélectionnés
pour vous accompagner dans votre parcours d'achat immobilier

Appartement 2 pièces à bois-colombes

— Bois-Colombes 92270 —
199 900 €
36 m²
2 pièces

Nos partenaires locaux
À vendre – Charmant 2 pièces au cœur de Bois-Colombes

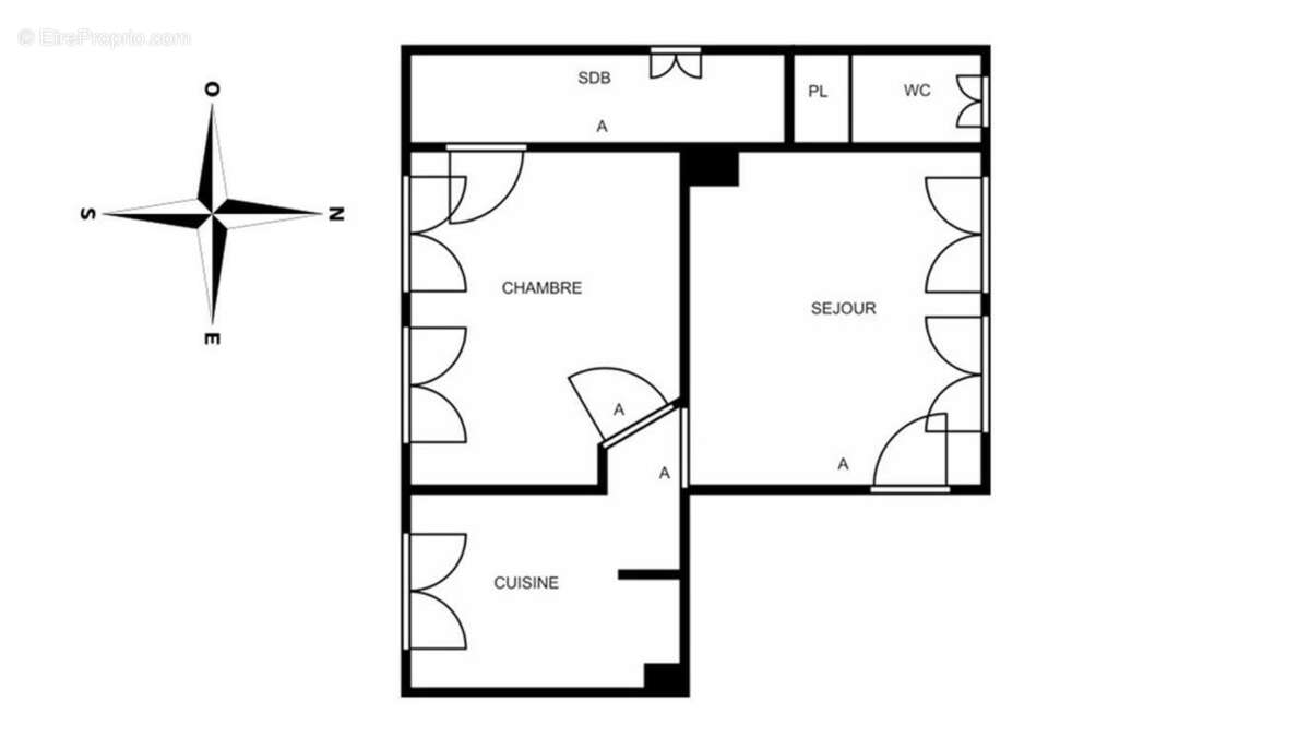
Découvrez ce joli appartement de 36,17 m² au 1er étage d'une petite copropriété, idéalement placé dans le quartier recherché de la Mairie de Bois-Colombes. Vous apprécierez la proximité immédiate des commerces et des transports avec la gare de Bois-Colombes (TRANSILIEN) à 4 minutes à pied, ainsi que des espaces verts qui font le charme de la ville.

L'appartement se compose d'un séjour lumineux de 11,33 m², d'une cuisine de 6,92 m² où l'on peut aisément prendre ses repas, d'une chambre confortable de 10,91 m², ainsi que d'une salle de bains de 4,5 m². Le WC séparé avec lave-mains de 0,76 m2.

Ce 2 pièces représente une belle opportunité, que ce soit pour un premier achat ou un investissement locatif, dans un environnement verdoyant et agréable aux portes de Paris. Un rafraichissement de l'appartement est nécessaire pour profiter pleinement du potentiel de ce bien.

Contactez-nous dès aujourd'hui pour organiser une visite et laissez-vous séduire par le charme de cet appartement unique.

Chauffage: collectif au gaz
Eau chaude : individuelle électrique.
Taxe foncière : 491 €
Charges de copropriété : 192€ /mois
Nombre de lots : 7 lots
Pas de procédure en cours.

Honoraires d'agence à la charge acquéreur : 10 600 € (4% + 3000 euros) inclus dans le prix de vente de 199 900 euros. Montant estimé des dépenses annuelles d'énergie pour un usage standard, établi à partir des prix de l'énergie de l'année 2021,2022,2023: 1 240 € ~ 1 730 € - RCS 78989753500025 - Caisse de garantie SOCAF Gestion 220000 EUR - Caisse de garantie SOCAF Transaction 120000 EUR. - Les informations sur les risques auxquels ce bien est exposé sont disponibles sur le site Géorisques : www.georisques.gouv.fr
Voir plus

Référence: 7144425
Bien en copropriété. Nombre de lots : 7. Charges de copropriété : 192 €.
DPE
A
B
C
D
E
F
G
GES
A
B
C
D
E
F
G

Prêt immobilier

Vous souhaitez connaître votre capacité d’emprunt et trouver le meilleur crédit immobilier ?
Réaliser une simulation gratuite

Appartement à BOIS-COLOMBES
Appartement à BOIS-COLOMBES
Appartement à BOIS-COLOMBES
Appartement à BOIS-COLOMBES
Appartement à BOIS-COLOMBES
Appartement à BOIS-COLOMBES
Appartement à BOIS-COLOMBES
Appartement à BOIS-COLOMBES
Appartement à BOIS-COLOMBES
Appartement à BOIS-COLOMBES
Ce site est protégé par reCAPTCHA la Politique de confidentialité et les Conditions d’utilisation de Google s’appliquent.
Obtenir un prêt immobilier au meilleur taux ?

En poursuivant votre navigation sans modifier vos paramètres, vous acceptez l'utilisation de cookies susceptibles de réaliser des statistiques de visite. Cliquez ici pour plus d'informations