Bénéficiez des services de nos partenaires locaux soigneusement sélectionnés
pour vous accompagner dans votre parcours d'achat immobilier

Maison d' exception entièrement de plain-pied avec patio central sur 2 200m2

— Saint-Jean-De-Thurigneux 01390 —
800 000 €
300 m² / 2 129 m²
8 pièces
parkingjardinpiscine

Nos partenaires locaux
Optimhome à le plaisir de vous présenter cette magnifique maison contemporaine de 300 m² utiles (250m2 habitables) avec patio et piscine – 20 minutes de Villefranche sur Saône

En fond d'une impasse, à l'abri de toute nuisance et sans aucun vis-à-vis, cette maison récente de 2010 offre un cadre de vie exceptionnel. Conçue pour profiter à la fois de l'espace et de la lumière, elle combine confort moderne et convivialité.

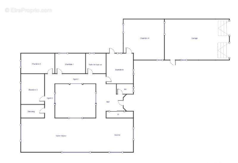
Dès l'entrée, vous êtes accueillis par un hall spacieux, qui donne immédiatement le ton : ici, les volumes et la circulation ont été pensés pour la fluidité et le bien-être au quotidien.

Le cœur de la maison s'articule autour d'un patio central de 30 m², véritable pièce à vivre extérieure. Cet espace intime et lumineux peut rester ouvert pour profiter du soleil ou être transformé en véranda ou jardin d'hiver, devenant ainsi un lieu évolutif et chaleureux tout au long de l'année.

La pièce de vie de 90 m² impressionne par sa générosité. Traversante et baignée de lumière, elle relie d'un côté la grande terrasse abritée et de l'autre le patio. Cet agencement unique permet de vivre dedans-dehors en toute saison et offre un lieu parfait pour accueillir famille et amis.

Côté nuit, la maison propose 4 chambres de 20 m² chacune, offrant à tous les membres de la famille un espace intime et confortable. Un grand dressing de 8,5 m² vient compléter l'ensemble, ainsi qu'une salle de bains et une salle d'eau, modernes et fonctionnelles.

Une buanderie de 20 m² est également disponible. Sa superficie généreuse permet d'en faire bien plus qu'un simple espace technique : bureau, salle de jeux ou encore atelier, les possibilités d'aménagement sont nombreuses.

Les prestations techniques sont au rendez-vous avec un chauffage au sol offrant un confort optimal, complété par l'option plancher rafraîchissant en été. La maison dispose également d'un double garage fermé et de nombreuses places de stationnement extérieures, idéales pour recevoir ou pour une famille avec plusieurs véhicules.

À l'extérieur, tout est pensé pour la détente. Le terrain clos et arboré de 2 200 m² préserve votre intimité. Une piscine de 10 m par 4,50 m, entourée d'une vaste terrasse de 150 m², vous invite à profiter pleinement des beaux jours. Entre coin piscine, terrasse abritée et patio, chaque moment de la journée trouve son lieu idéal.

Enfin, la localisation constitue un atout majeur. Située à Saint-Jean-de-Thurigneux, la maison bénéficie d'un environnement calme et verdoyant, tout en restant proche des grands axes. Vous rejoignez Lyon en 30 minutes, Villefranche-sur-Saône en 20 minutes, Villars-les-Dombes en 10 minutes et Bourg-en-Bresse en 35 minutes. Un emplacement idéal pour concilier sérénité et praticité au quotidien.

Cette maison est bien plus qu'un lieu de vie : c'est un espace pensé pour le confort, la convivialité et la sérénité. Ses volumes généreux, son patio unique et ses extérieurs soignés en font un bien rare sur le secteur. Nombre de lots de la copropriété: 12, Montant moyen de la quote-part annuelle de charges (budget prévisionnel) : 240€ soit 20€ par mois. Les honoraires sont à la charge du vendeur.
Les informations sur les risques auxquels ce bien est exposé sont disponibles sur le site Géorisques : www. georisques. gouv. fr.

Contactez Julie ARGOUD Entrepreneur Individuel, Agent commercial OptimHome (RSAC N°752 765 792 Greffe de LYON) [Coordonnées masquées] (réf. 593994 )
Voir plus

Référence: 830034039566
Bien en copropriété. Nombre de lots : 12. Charges de copropriété : 20 €.
Honoraires à la charge du vendeur.
DPE
A
B
C
D
E
F
G
GES
A
B
C
D
E
F
G

Prêt immobilier

Vous souhaitez connaître votre capacité d’emprunt et trouver le meilleur crédit immobilier ?
Réaliser une simulation gratuite

Maison à SAINT-JEAN-DE-THURIGNEUX
Maison à SAINT-JEAN-DE-THURIGNEUX
Maison à SAINT-JEAN-DE-THURIGNEUX
Maison à SAINT-JEAN-DE-THURIGNEUX
Maison à SAINT-JEAN-DE-THURIGNEUX
Maison à SAINT-JEAN-DE-THURIGNEUX
Maison à SAINT-JEAN-DE-THURIGNEUX
Maison à SAINT-JEAN-DE-THURIGNEUX
Maison à SAINT-JEAN-DE-THURIGNEUX
Maison à SAINT-JEAN-DE-THURIGNEUX
Maison à SAINT-JEAN-DE-THURIGNEUX
Maison à SAINT-JEAN-DE-THURIGNEUX
Maison à SAINT-JEAN-DE-THURIGNEUX
Maison à SAINT-JEAN-DE-THURIGNEUX
Maison à SAINT-JEAN-DE-THURIGNEUX
Maison à SAINT-JEAN-DE-THURIGNEUX
Maison à SAINT-JEAN-DE-THURIGNEUX
Maison à SAINT-JEAN-DE-THURIGNEUX
Maison à SAINT-JEAN-DE-THURIGNEUX
Maison à SAINT-JEAN-DE-THURIGNEUX
Maison à SAINT-JEAN-DE-THURIGNEUX
Maison à SAINT-JEAN-DE-THURIGNEUX
Maison à SAINT-JEAN-DE-THURIGNEUX
Maison à SAINT-JEAN-DE-THURIGNEUX
Maison à SAINT-JEAN-DE-THURIGNEUX
Maison à SAINT-JEAN-DE-THURIGNEUX
Maison à SAINT-JEAN-DE-THURIGNEUX
Maison à SAINT-JEAN-DE-THURIGNEUX
Maison à SAINT-JEAN-DE-THURIGNEUX
Maison à SAINT-JEAN-DE-THURIGNEUX
Maison à SAINT-JEAN-DE-THURIGNEUX
Maison à SAINT-JEAN-DE-THURIGNEUX
Ce site est protégé par reCAPTCHA la Politique de confidentialité et les Conditions d’utilisation de Google s’appliquent.
Obtenir un prêt immobilier au meilleur taux ?

En poursuivant votre navigation sans modifier vos paramètres, vous acceptez l'utilisation de cookies susceptibles de réaliser des statistiques de visite. Cliquez ici pour plus d'informations