Bénéficiez des services de nos partenaires locaux soigneusement sélectionnés
pour vous accompagner dans votre parcours d'achat immobilier

Saxe gambetta - metro b, d et tramway t1

— Lyon-7e 69007 —
275 000 €
73 m²
1 pièce
ascenseur

Nos partenaires locaux
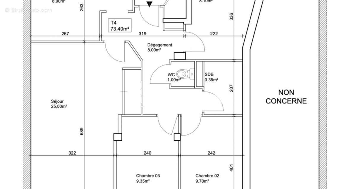
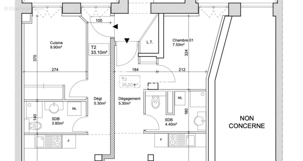
Venez découvrir ce plateau à aménager de 73m2, idéalement situé dans le quartier dynamique de Saxe-Gambetta.

Ce bien offre un fort potentiel pour un investissement locatif, avec la possibilité de le transformer en 2 appartements T2 indépendants (Projet validé en AG de copropriété).

Vous avez également la possibilité d'aménager l'ensemble en un confortable appartement T4.

Son emplacement recherché, à proximité immédiate des transports en commun et des commerces, constitue un atout majeur.

Pour plus d'informations ou pour organiser une visite, contactez-nous dès maintenant !
Voir plus

Référence: 00717090
Honoraires à la charge du vendeur.

Prêt immobilier

Vous souhaitez connaître votre capacité d’emprunt et trouver le meilleur crédit immobilier ?
Réaliser une simulation gratuite

Appartement à LYON-7E
Appartement à LYON-7E
Appartement à LYON-7E
Appartement à LYON-7E
Appartement à LYON-7E
Ce site est protégé par reCAPTCHA la Politique de confidentialité et les Conditions d’utilisation de Google s’appliquent.
Obtenir un prêt immobilier au meilleur taux ?

En poursuivant votre navigation sans modifier vos paramètres, vous acceptez l'utilisation de cookies susceptibles de réaliser des statistiques de visite. Cliquez ici pour plus d'informations