Bénéficiez des services de nos partenaires locaux soigneusement sélectionnés
pour vous accompagner dans votre parcours d'achat immobilier

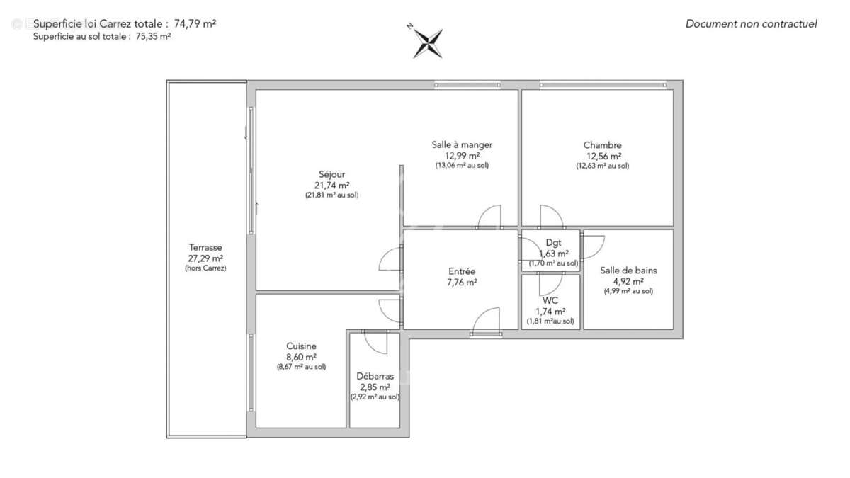
Paris 17e - laugier - appartement à vendre - 4 pièces - 74,79 m² carrez - 2 chambres - terrasse.

— Paris-17e 75017 —
950 000 €
75 m²
4 pièces
parkingbalcon/terrasseascenseur

Nos partenaires locaux
Rue Laugier. À proximité immédiate du marché Lebon, dans une copropriété récente et gardiennée, nous vous proposons au deuxième étage par ascenseur, un appartement de 74,79 m² Loi Carrez avec une grande terrasse de 27,29 m2 exposée ouest.

À rénover, cet appartement à fort potentiel grâce à son plan modulable offre une entrée accueillante, un séjour donnant sur une grande terrasse ensoleillée, une cuisine (que l'on peut ouvrir sur le salon), deux agréables chambres, une salle de bains et des toilettes séparées.

Possibilité de louer un parking dans l'immeuble.
Voir plus

Référence: 2797WAGBOU
Barème des honoraires
DPE
A
B
C
D
E
F
G
GES
A
B
C
D
E
F
G

Prêt immobilier

Vous souhaitez connaître votre capacité d’emprunt et trouver le meilleur crédit immobilier ?
Réaliser une simulation gratuite

Appartement à PARIS-17E
Appartement à PARIS-17E
Appartement à PARIS-17E
Appartement à PARIS-17E
Appartement à PARIS-17E
Appartement à PARIS-17E
Appartement à PARIS-17E
Appartement à PARIS-17E
Appartement à PARIS-17E
Appartement à PARIS-17E
Appartement à PARIS-17E
Appartement à PARIS-17E
Appartement à PARIS-17E
Appartement à PARIS-17E
Appartement à PARIS-17E
Appartement à PARIS-17E
Ce site est protégé par reCAPTCHA la Politique de confidentialité et les Conditions d’utilisation de Google s’appliquent.
Obtenir un prêt immobilier au meilleur taux ?

En poursuivant votre navigation sans modifier vos paramètres, vous acceptez l'utilisation de cookies susceptibles de réaliser des statistiques de visite. Cliquez ici pour plus d'informations