Bénéficiez des services de nos partenaires locaux soigneusement sélectionnés
pour vous accompagner dans votre parcours d'achat immobilier

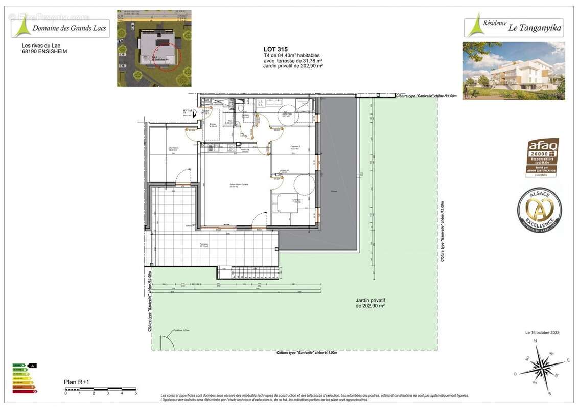
Appartement 84m² à ensisheim

— Ensisheim 68190 —
345 100 €
84 m²
4 pièces
parkingbalcon/terrasseascenseur

Nos partenaires locaux
Découvrez ce magnifique appartement T4 de 84,43 m², situé au 1er étage d'une résidence de grand standing construite en 2025. Cet appartement neuf, baigné de lumière grâce à son exposition Sud, offre une vue dégagée et un cadre de vie d'exception.

?? Un espace de vie moderne et confortable
Profitez d'un spacieux séjour de 30 m² ouvrant sur une terrasse de 32 m², idéale pour vos repas en plein air ou vos moments de détente. Il comprend également 3 chambres confortables, une salle d'eau moderne et des WC indépendants pour plus de confort.

? Un jardin privatif de 203 m², véritable havre de paix, vient compléter cet appartement. Vous pourrez y aménager un espace détente, un coin potager ou un jardin d'agrément selon vos envies.

? Personnalisez votre intérieur !
Vous aurez la possibilité de choisir vos matériaux (carrelage, parquet, faïence…) parmi un large choix de finitions pour créer un espace qui vous ressemble.

? Prestations haut de gamme et confort optimal
DPE Projeté A.
L'appartement est équipé d'une pompe à chaleur sur plancher chauffant/refroidissant, d'une isolation extérieure performante, et de menuiseries PVC double vitrage, garantissant efficacité énergétique et confort toute l'année.

? Un emplacement idéal et recherché
À proximité immédiate du lac et de la piste cyclable, l'environnement invite aux promenades et aux activités de plein air.
À 5 minutes à pied : restaurants et crèches.
À 10 minutes à pied : écoles, supermarchés, médecins, hôpital.
À 15 minutes : parc et jardin pour vos balades.

? Confort, élégance et qualité de vie sont les maîtres mots de cette résidence d'exception.
Ne manquez pas cette opportunité rare de vivre dans un appartement alliant luxe, praticité et sérénité.

? Contactez-nous dès aujourd'hui pour découvrir ce bien unique et personnaliser votre futur chez-vous !

Honoraires à la charge du vendeur. DPE en cours. Les informations sur les risques auxquels ce bien est exposé sont disponibles sur le site Géorisques : georisques.gouv.fr.

Votre conseiller Immobilière de la Plaine d'Alsace : Jennifer LEPAUL
Agent commercial (Entreprise individuelle)
RSAC 927918946
Voir plus

Référence: VA2007-IPA68
Honoraires à la charge du vendeur.
Barème des honoraires

Prêt immobilier

Vous souhaitez connaître votre capacité d’emprunt et trouver le meilleur crédit immobilier ?
Réaliser une simulation gratuite

Appartement à ENSISHEIM
Appartement à ENSISHEIM
Appartement à ENSISHEIM
Ce site est protégé par reCAPTCHA la Politique de confidentialité et les Conditions d’utilisation de Google s’appliquent.
Obtenir un prêt immobilier au meilleur taux ?

En poursuivant votre navigation sans modifier vos paramètres, vous acceptez l'utilisation de cookies susceptibles de réaliser des statistiques de visite. Cliquez ici pour plus d'informations