Bénéficiez des services de nos partenaires locaux soigneusement sélectionnés
pour vous accompagner dans votre parcours d'achat immobilier

Maison 80m² à soufflenheim

— Soufflenheim 67620 —
172 000 €
80 m² / 392 m²
4 pièces
parkingjardin

Nos partenaires locaux
? Maison à rénover – Soufflenheim

Située dans une impasse au calme, découvrez cette maison de 75 m² habitables, édifiée dans les années 1950, sur une parcelle de 3,92 ares.

? Agencement intérieur
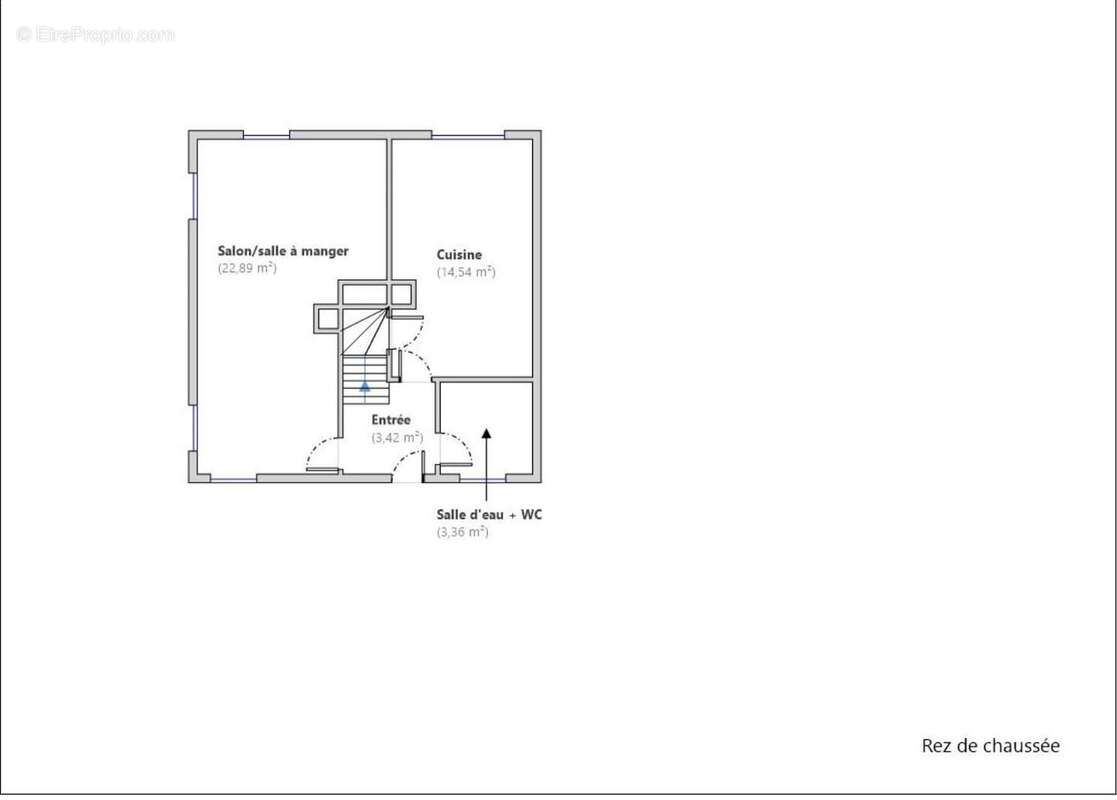
Rez-de-chaussée : une entrée, une salle d'eau, un salon-séjour lumineux, ainsi qu'une cuisine indépendante(possibilité de casser un mur et relier le salon et la cuisine)
Étage : un palier desservant deux chambres. Les volumes et la distribution peuvent être repensés selon vos besoins.
Sous-sol complet : accessible de l'intérieur comme de l'extérieur, offrant de belles possibilités de rangement ou d'aménagement complémentaire.
? Extérieurs et dépendances
Du côté de la maison : un garage
De l'autre côté de l'impasse : un jardin avec une dépendance et un petit garage supplémentaire ainsi qu'un jardin.
? Travaux & équipements
Cette maison nécessite une rénovation globale pour révéler tout son potentiel.
Chauffage au gaz + climatisations réversibles au rez-de-chaussée.
Menuiseries en double vitrage PVC avec volets PVC.
Volets électriques au rez-de-chaussée.
Honoraires à la charge du vendeur.

Honoraires à la charge du vendeur. Classe énergie F, Classe climat E Logement à consommation énergétique excessive. Montant estimé des dépenses annuelles d'énergie pour un usage standard : entre 2250.00 € et 3130.00 € sur les années 2021, 2022 et 2023 (abonnements compris). Les informations sur les risques auxquels ce bien est exposé sont disponibles sur le site Géorisques : georisques.gouv.fr.

Votre conseiller JUND IMMOBILIER : Co-Gérant - Alexis JUND
Carte T CPI67[Coordonnées masquées]00048
RCP 733300480001
Voir plus

Référence: VM326-JUNDIMMO
Honoraires à la charge du vendeur.
Barème des honoraires
DPE
A
B
C
D
E
F
G
GES
A
B
C
D
E
F
G

Prêt immobilier

Vous souhaitez connaître votre capacité d’emprunt et trouver le meilleur crédit immobilier ?
Réaliser une simulation gratuite

Maison à SOUFFLENHEIM
Maison à SOUFFLENHEIM
Maison à SOUFFLENHEIM
Maison à SOUFFLENHEIM
Maison à SOUFFLENHEIM
Maison à SOUFFLENHEIM
Maison à SOUFFLENHEIM
Maison à SOUFFLENHEIM
Maison à SOUFFLENHEIM
Ce site est protégé par reCAPTCHA la Politique de confidentialité et les Conditions d’utilisation de Google s’appliquent.
Obtenir un prêt immobilier au meilleur taux ?

En poursuivant votre navigation sans modifier vos paramètres, vous acceptez l'utilisation de cookies susceptibles de réaliser des statistiques de visite. Cliquez ici pour plus d'informations