Bénéficiez des services de nos partenaires locaux soigneusement sélectionnés
pour vous accompagner dans votre parcours d'achat immobilier

Appartement à vendre 5 pièces menton (06)

— Menton 06500 —
1 850 000 €
140 m²
5 pièces
parkingascenseur

Nos partenaires locaux
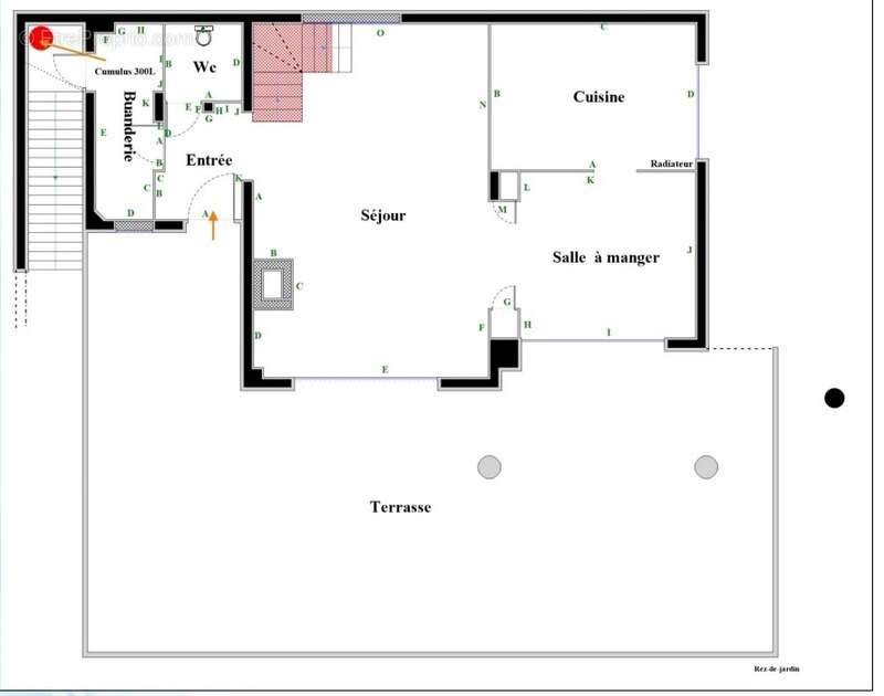
Optimhome vous présente une magnifique villa duplex en toit terrasse au 5ème et dernier étage d'une surface de 137,74 m2 Loi Carrez dans le quartier résidentiel recherché de Menton Garavan proche de la Mer.

Elle se compose de 5 pièces, 3 chambres sur 2 niveaux avec terrasses et jardin offrant une vue exceptionnelle sur la vieille ville de Menton et panoramique de la pointe de l'Italie jusqu'au Cap Martin.

Vous serez séduits par l'espace et la luminosité du grand séjour salle à manger ouvert sur la terrasse de 92m2 vue mer.
Une belle cuisine indépendante équipée qui donne sur l'autre côté de la terrasse avec la piscine.

A l'entrée, un toilette invité, une buanderie.

A l'étage vous trouverez 3 belles chambres spacieuses disposant chacune d'une salle de bains avec toilettes, d'un dressing et de son extérieur.

A l'entresol, un cellier aménagé de 40m2 environ qui se compose d'une cave à vin, une salle de jeux, un wc et un débarras.

Vous profiterez également d'une belle piscine privative de 10x5, jardin avec ses arbres fruitiers, une cuisine d'été, pool house, barbecue et un cabanon pour profiter des belles journées ensoleillées.

Une cave et un grand double garage complètent ce bien.

Cette villa duplex fait partie d'une copropriété et dispose d'un ascenseur avec accès privé par clé.

Prestations : Pompe à chaleur, climatisation, chauffage au sol et une cheminée avec insert, volets électriques et stores électriques par télécommandes.

Charges mensuelles : 445 € (comprenant eau, arrosage, charges communes et ascenseur)

Ce bien idéalement placé, proximité des commerces, commodités en voiture.

Proche de Monaco et de l'Italie.
Nombre de lots de la copropriété: 8, Montant moyen de la quote-part annuelle de charges (budget prévisionnel) : 5340€ soit 445€ par mois. Les honoraires sont à la charge du vendeur.
Les informations sur les risques auxquels ce bien est exposé sont disponibles sur le site Géorisques : www. georisques. gouv. fr.

Contactez Georges ANDRIKO Entrepreneur Individuel, Agent commercial OptimHome (RSAC N°890 140 676 Greffe de NICE) [Coordonnées masquées] (réf. 593874 )
Voir plus

Référence: 830038455002
Bien en copropriété. Nombre de lots : 8. Charges de copropriété : 445 €.
Honoraires à la charge du vendeur.
DPE
A
B
C
D
E
F
G
GES
A
B
C
D
E
F
G

Prêt immobilier

Vous souhaitez connaître votre capacité d’emprunt et trouver le meilleur crédit immobilier ?
Réaliser une simulation gratuite

Appartement à MENTON
Appartement à MENTON
Appartement à MENTON
Appartement à MENTON
Appartement à MENTON
Appartement à MENTON
Appartement à MENTON
Appartement à MENTON
Appartement à MENTON
Appartement à MENTON
Appartement à MENTON
Appartement à MENTON
Appartement à MENTON
Appartement à MENTON
Appartement à MENTON
Ce site est protégé par reCAPTCHA la Politique de confidentialité et les Conditions d’utilisation de Google s’appliquent.
Obtenir un prêt immobilier au meilleur taux ?

En poursuivant votre navigation sans modifier vos paramètres, vous acceptez l'utilisation de cookies susceptibles de réaliser des statistiques de visite. Cliquez ici pour plus d'informations