Maison 150m² à montbazin

— Montbazin 34560 —
540 000 €
150 m² / 1 236 m²
4 pièces
parkingbalcon/terrassejardinpiscine

34560 - MONTBAZIN - QUARTIER DES ARTISANS - 4 PIÈCES - 3 CHAMBRES - 100 m² - MAISON AVEC ENTREPÔT, JARDIN ET PISCINE SEMI-ENTERRÉE

Romain Girona et efficity, l'agence qui estime votre bien en ligne, vous proposent cette charmante maison située à Montbazin.

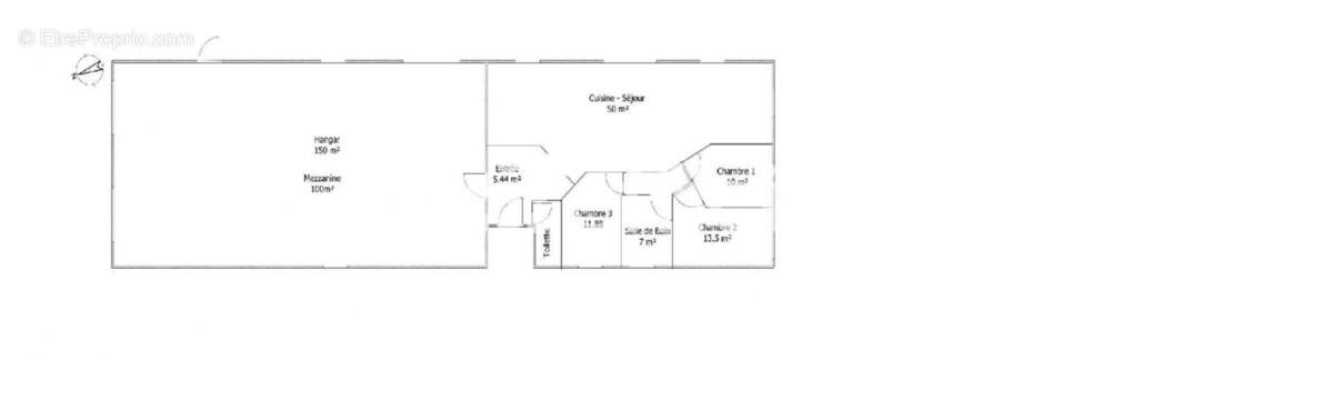
Idéalement située dans le quartier des Artisans, cette maison de 4 pièces offre un espace de vie chaleureux et lumineux. Avec une surface habitable de 100 m², elle présente un agencement confortable et fonctionnel.

L'entrepôt, d'une superficie de 150 m², est équipé d'un monte-charge permettant d'accéder à une mezzanine d'environ 100 m². Ce bien est parfait pour un professionnel ou un passionné de bricolage.

Son jardin d'environ 1 000 m², agrémenté d'une piscine semi-enterrée, constitue un véritable havre de paix, idéal pour profiter des beaux jours en famille ou entre amis. La présence de l'entrepôt offre de nombreuses possibilités d'aménagement.

L'exposition Sud-Est du jardin garantit une belle luminosité tout au long de la journée, rendant cet espace extérieur encore plus agréable. Avec ses 3 chambres spacieuses, cette maison est parfaite pour accueillir une famille.

Située sur un terrain de 1 236 m², cette propriété bénéficie d'un environnement calme et agréable.

À seulement 20 minutes de Montpellier, cette maison offre un cadre de vie paisible, tout en étant proche de toutes les commodités. Ne manquez pas cette opportunité de devenir propriétaire d'une maison avec un beau jardin, une piscine et un entrepôt — un bien idéal pour les artisans, les bricoleurs ou les amateurs de tranquillité et de convivialité.
Les informations sur les risques auxquels ce bien est exposé sont disponibles sur le site Georisque : georisques. gouv. fr
Romain Girona - EI - est Agent Commercial mandataire en immobilier, immatriculé au Registre Spécial des Agents Commerciaux du Tribunal de Commerce de Montpellier sous le n°852088301.
Siège social du mandant : effiCity, 48 avenue de Villiers - 75017 PARIS - Société par Actions Simplifiée, société au capital de 132 373,05 euros, immatriculée au RCS Paris 497 617 746 et titulaire de la Carte professionnelle CPI 75[Coordonnées masquées]02 025 - CCI Paris IDF - Caisse de Garantie : GALIAN Assurances 89 rue de la Boétie 75008 Paris
Voir plus

Référence: 181349
Honoraires d'agence de 3.85% à la charge de l'acquéreur
Barème des honoraires
DPE
A
B
C
D
E
F
G
GES
A
B
C
D
E
F
G

Prêt immobilier

Vous souhaitez connaître votre capacité d’emprunt et trouver le meilleur crédit immobilier ?
Réaliser une simulation gratuite

Maison à MONTBAZIN
Maison à MONTBAZIN
Maison à MONTBAZIN
Maison à MONTBAZIN
Maison à MONTBAZIN
Maison à MONTBAZIN
Maison à MONTBAZIN
Maison à MONTBAZIN
Maison à MONTBAZIN
Maison à MONTBAZIN
Maison à MONTBAZIN
Maison à MONTBAZIN
Maison à MONTBAZIN
Maison à MONTBAZIN
Maison à MONTBAZIN
Maison à MONTBAZIN
Maison à MONTBAZIN
Maison à MONTBAZIN
Maison à MONTBAZIN
Maison à MONTBAZIN
Ce site est protégé par reCAPTCHA la Politique de confidentialité et les Conditions d’utilisation de Google s’appliquent.
Obtenir un prêt immobilier au meilleur taux ?

En poursuivant votre navigation sans modifier vos paramètres, vous acceptez l'utilisation de cookies susceptibles de réaliser des statistiques de visite. Cliquez ici pour plus d'informations