Bénéficiez des services de nos partenaires locaux soigneusement sélectionnés
pour vous accompagner dans votre parcours d'achat immobilier

Maison 175m² à le breuil-en-auge

— Le Breuil-En-Auge 14130 —
449 900 €
175 m² / 3 572 m²
10 pièces
parkingjardin

Nos partenaires locaux
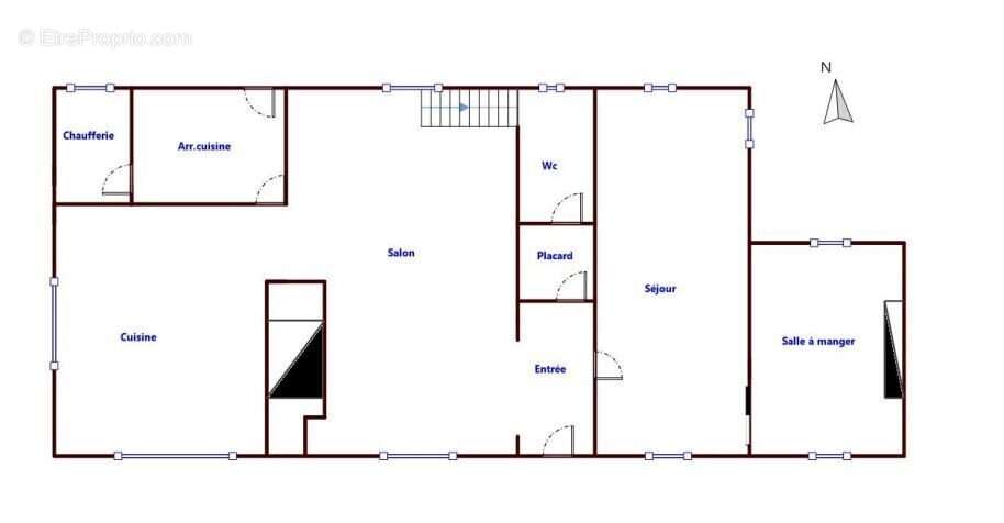
LE BREUIL EN AUGE - Maison de Maitre, composée :
Au rez-de-chaussée : une entrée sur le salon desservant séjour et salle à manger, cuisine aménagée-équipée, chaufferie, buanderie, alcove et WC séparés.
A l'étage : une suite parentale avec sa salle de douche et WC, trois chambres, salle de douche et WC séparé.
Au deuxième : deux chambres et une pièce avec point d'eau pour l'installation d'une salle de bains.
Sur terrain plat et arboré de 3 572 m².
Garage deux places en annexe, abri de jardin.
Dans un environnement privilégié, sans nuisances.
Nous aimons son environnement et ses volumes.

Honoraires à la charge du vendeur. Classe énergie D, Classe climat D Montant estimé des dépenses annuelles d'énergie pour un usage standard : entre 3628.00 € et 4909.00 € sur les années 2021, 2022 et 2023 (abonnements compris). Les informations sur les risques auxquels ce bien est exposé sont disponibles sur le site Géorisques : georisques.gouv.fr.
Voir plus

Référence: VM2933-14097
Honoraires à la charge du vendeur.
DPE
A
B
C
D
E
F
G
GES
A
B
C
D
E
F
G

Prêt immobilier

Vous souhaitez connaître votre capacité d’emprunt et trouver le meilleur crédit immobilier ?
Réaliser une simulation gratuite

Maison à LE BREUIL-EN-AUGE
Maison à LE BREUIL-EN-AUGE
Maison à LE BREUIL-EN-AUGE
Maison à LE BREUIL-EN-AUGE
Maison à LE BREUIL-EN-AUGE
Maison à LE BREUIL-EN-AUGE
Maison à LE BREUIL-EN-AUGE
Maison à LE BREUIL-EN-AUGE
Maison à LE BREUIL-EN-AUGE
Ce site est protégé par reCAPTCHA la Politique de confidentialité et les Conditions d’utilisation de Google s’appliquent.
Obtenir un prêt immobilier au meilleur taux ?

En poursuivant votre navigation sans modifier vos paramètres, vous acceptez l'utilisation de cookies susceptibles de réaliser des statistiques de visite. Cliquez ici pour plus d'informations