Bénéficiez des services de nos partenaires locaux soigneusement sélectionnés
pour vous accompagner dans votre parcours d'achat immobilier

Maison - 4 chambres - proche bois préau

— Rueil-Malmaison 92500 —
799 000 €
121 m²
5 pièces
parking

Nos partenaires locaux
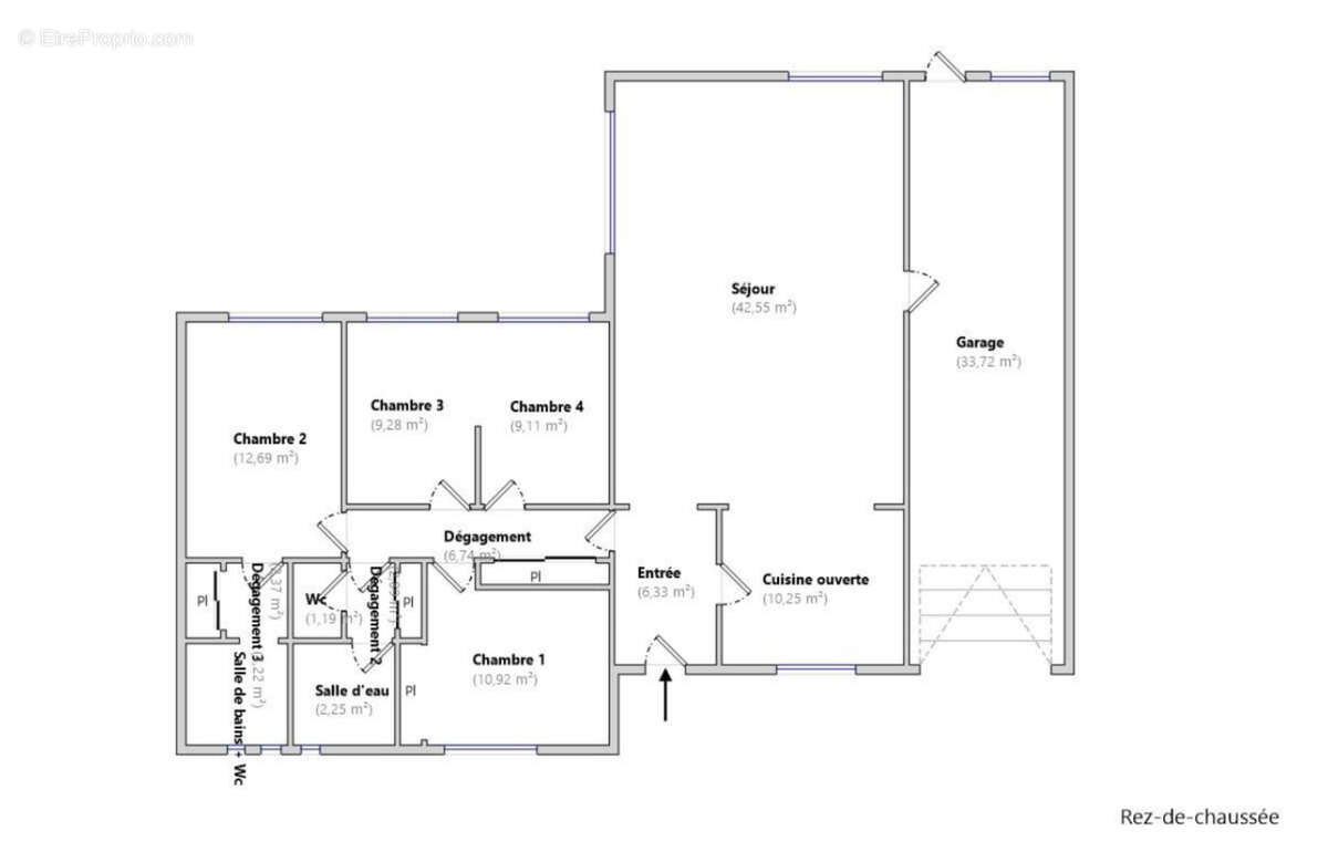
L’Agence de l’Empereur vous présente cette agréable et lumineuse maison avec jardin, entièrement de plain-pied, 4 chambres, 121 m2 Carrez, au sein du hameau de Bois-Préau, un domaine en copropriété d'une quarantaine de maisons. Une entrée, un chaleureux espace de vie/séjour de 42,5 m2 donnant sur la terrasse et le jardin par trois baies vitrées orientées sud et est. Une cuisine d'environ 10 m2, ouverte sur le séjour, créant un espace de vie total d’environ 53 m2. Trois chambres orientées sud, avec accès au jardin, se partagent une salle d’eau avec commodités. Une quatrième chambre, suite parentale de 18 m2, avec salle de bains et commodités. Jardin plat, environnement calme et sans vis-à-vis. Un garage de 33,70 m2, pouvant en partie être aménagé en bureau attenant au séjour. Possibilité de stationner 2 à 3 voitures à l’extérieur, devant la maison. Les établissements scolaires publics et privés réputés (George Sand, Jules Verne, Richelieu) sont à proximité, tout comme les établissements privés Passy Buzenval, Montessori et Daniélou. Les commerces de bouche sont accessibles à 6 minutes à pied. Forêt de Saint-Cucufa, le parc de Bois-Préau et le centre-ville de Rueil-Malmaison (à environ 14 minutes à pied). Chauffage et production d'eau chaude individuels électriques. Nouveau calcul du DPE qui changera la note de E à D au 1er janvier 2026.
Voir plus

Référence: 8475-002
Bien en copropriété.
Honoraires à la charge du vendeur.
Barème des honoraires
DPE
A
B
C
D
E
F
G
GES
A
B
C
D
E
F
G

Prêt immobilier

Vous souhaitez connaître votre capacité d’emprunt et trouver le meilleur crédit immobilier ?
Réaliser une simulation gratuite

Maison à RUEIL-MALMAISON
Maison à RUEIL-MALMAISON
Maison à RUEIL-MALMAISON
Maison à RUEIL-MALMAISON
Maison à RUEIL-MALMAISON
Maison à RUEIL-MALMAISON
Maison à RUEIL-MALMAISON
Maison à RUEIL-MALMAISON
Maison à RUEIL-MALMAISON
Maison à RUEIL-MALMAISON
Maison à RUEIL-MALMAISON
Maison à RUEIL-MALMAISON
Maison à RUEIL-MALMAISON
Maison à RUEIL-MALMAISON
Maison à RUEIL-MALMAISON
Maison à RUEIL-MALMAISON
Maison à RUEIL-MALMAISON
Maison à RUEIL-MALMAISON
Maison à RUEIL-MALMAISON
Maison à RUEIL-MALMAISON
Maison à RUEIL-MALMAISON
Maison à RUEIL-MALMAISON
Maison à RUEIL-MALMAISON
Maison à RUEIL-MALMAISON
Maison à RUEIL-MALMAISON
Ce site est protégé par reCAPTCHA la Politique de confidentialité et les Conditions d’utilisation de Google s’appliquent.
Obtenir un prêt immobilier au meilleur taux ?

En poursuivant votre navigation sans modifier vos paramètres, vous acceptez l'utilisation de cookies susceptibles de réaliser des statistiques de visite. Cliquez ici pour plus d'informations