Bénéficiez des services de nos partenaires locaux soigneusement sélectionnés
pour vous accompagner dans votre parcours d'achat immobilier

Appartement 64m² à castries

— Castries 34160 —
349 000 €
64 m²
3 pièces
parkingbalcon/terrasse

Nos partenaires locaux
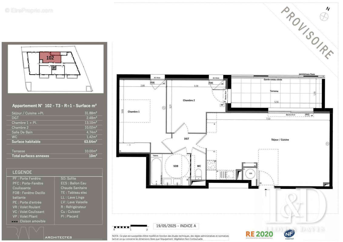
A l'est de Montpellier, dans une commune alliant patrimoine historique et environnement naturel préservé, je vous propose un T3 de 64m² au premier et dernier étage d'une petite copropriété de 10 logements à deux pas de toutes les commodités du centre village. L'espace habitable comprend un grand séjour-cuisine de 32m², deux chambres de 13 et 10m², une salle de bain et des toilettes séparés. Le séjour ouvre sur une terrasse de 10m² orientée nord-ouest. Vous disposez de 2 stationnements sécurisés. Vous êtes à quelques minutes en voiture de la gare de Baillargues (réseau TER journalier vers Montpellier et Nimes). L'accès direct à l'autoroute relie la Metropole de Montpellier, les gares TGV ou l'aéroport. La commune est desservie par de nombreuses lignes de Bus, et l'extension de la ligne A du bustram est prévue pour 2028. Autres disponibilités sur cette résidence : un T4 et un T2. Contactez moi pour de plus amples informations. Carole Ducoin-EI, votre consultante partenaire RSAC de Montpellier N° 832 505 465.

Honoraires à la charge du vendeur. Dans une copropriété de 10 lots. Quote-part moyenne du budget prévisionnel 1 400 €/an. Aucune procédure n'est en cours. DPE vierge. Les informations sur les risques auxquels ce bien est exposé sont disponibles sur le site Géorisques : georisques.gouv.fr.

Votre conseiller LLOYD & DAVIS : Carole DUCOIN
Agent commercial (Entreprise individuelle)
RSAC 832 505 465 Montpellier
RCP 61953760 Allianz
Voir plus

Référence: VA4834-LLOYD&DAVIS
Bien en copropriété. Nombre de lots : 10. Charges de copropriété : 1400 €.
Honoraires à la charge du vendeur.
Barème des honoraires

Prêt immobilier

Vous souhaitez connaître votre capacité d’emprunt et trouver le meilleur crédit immobilier ?
Réaliser une simulation gratuite

Appartement à CASTRIES
Appartement à CASTRIES
Appartement à CASTRIES
Appartement à CASTRIES
Appartement à CASTRIES
Ce site est protégé par reCAPTCHA la Politique de confidentialité et les Conditions d’utilisation de Google s’appliquent.
Obtenir un prêt immobilier au meilleur taux ?

En poursuivant votre navigation sans modifier vos paramètres, vous acceptez l'utilisation de cookies susceptibles de réaliser des statistiques de visite. Cliquez ici pour plus d'informations