Exclusivite - bel appartement de charme à vendre à nîmes – 87,91 m², balcon et caractère de l’ancien !

— Nimes 30900 —
165 000 €
87 m²
4 pièces

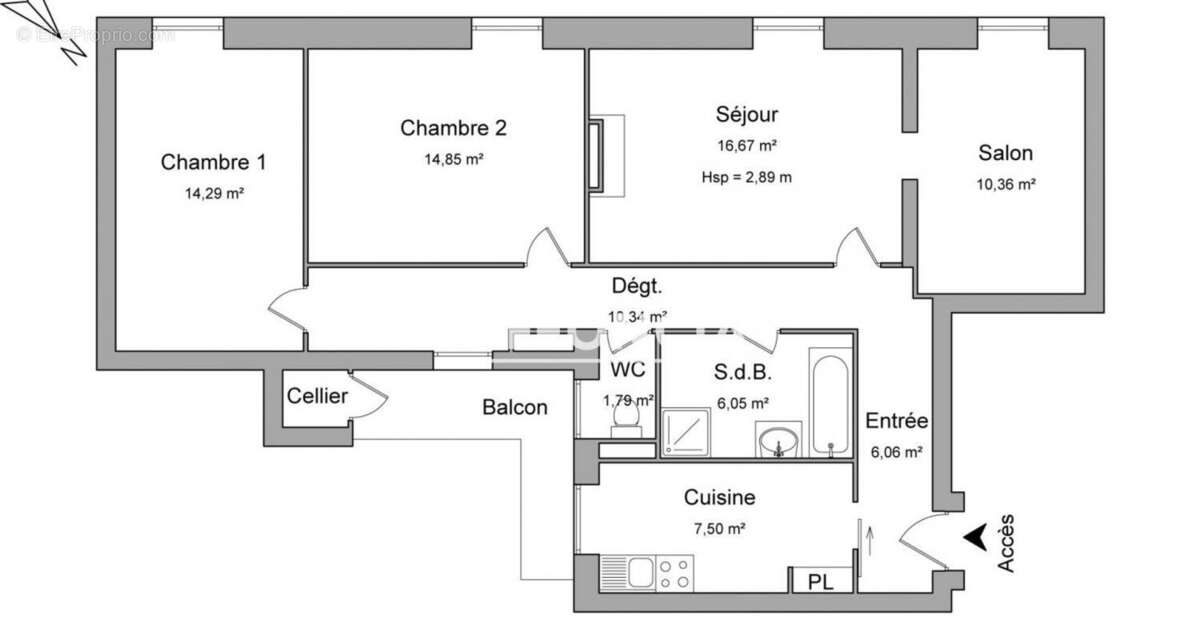
Situé au cœur de Nîmes, à deux pas des Arènes et du Palais des Congrès, cet appartement T4 de 87,91 m², au 3ème étage d'un immeuble historique, allie parfaitement le charme de l'ancien et les rénovations récentes. Vous serez séduit par ses carreaux de ciment d'époque et ses menuiseries remplacées récemment, qui apportent à l'appartement un style unique et authentique.

L'appartement se compose d'un séjour lumineux, d'une cuisine séparée, de trois chambres spacieuses, d'une salle de bain et de WC séparés. Vous apprécierez également son balcon, idéal pour profiter de l'extérieur.

Situé au 1 Rue Cart à Nîmes, cet appartement est un excellent investissement patrimonial. Actuellement occupé par une locataire, il représente une belle opportunité pour de la location saisonnière grâce à sa proximité immédiate avec les Arènes, le Palais des Congrès et le Musée de la Romanité. De plus, le tramway est à quelques mètres, facilitant les déplacements dans la ville.

Ce bien, rare et recherché, est idéal pour un investisseur ou pour une location de courte durée dans un secteur très prisé.
Voir plus

Référence: 00635439
Bien en copropriété. Nombre de lots : 9.
Honoraires à la charge du vendeur.
Barème des honoraires
DPE
A
B
C
D
E
F
G
GES
A
B
C
D
E
F
G

Prêt immobilier

Vous souhaitez connaître votre capacité d’emprunt et trouver le meilleur crédit immobilier ?
Réaliser une simulation gratuite

Appartement à NIMES
Appartement à NIMES
Appartement à NIMES
Appartement à NIMES
Appartement à NIMES
Appartement à NIMES
Appartement à NIMES
Appartement à NIMES
Appartement à NIMES
Ce site est protégé par reCAPTCHA la Politique de confidentialité et les Conditions d’utilisation de Google s’appliquent.
Obtenir un prêt immobilier au meilleur taux ?

En poursuivant votre navigation sans modifier vos paramètres, vous acceptez l'utilisation de cookies susceptibles de réaliser des statistiques de visite. Cliquez ici pour plus d'informations