Bénéficiez des services de nos partenaires locaux soigneusement sélectionnés
pour vous accompagner dans votre parcours d'achat immobilier

Appartement route de rennes 3 pièces - immeuble de 2019

— Nantes 44300 —
235 000 €
62 m²
3 pièces

Nos partenaires locaux
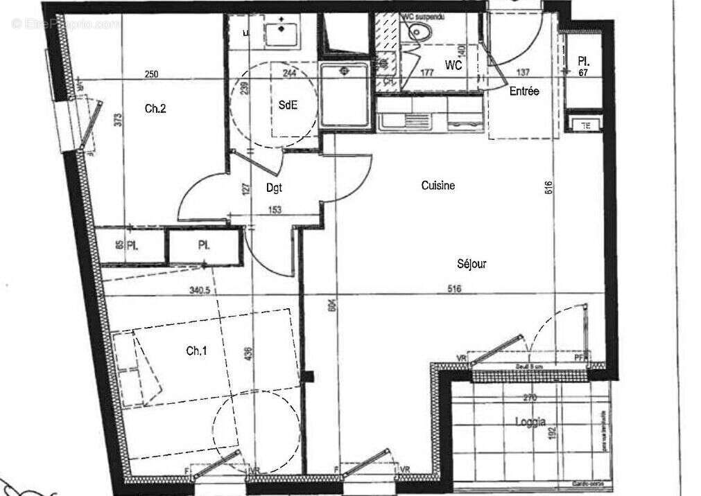
NOUVEAU - Route de Rennes - T3 récent de 2019 situé dans une résidence avec ASCENSEUR, offrant : une entrée avec placard, une pièce de vie de 30,29 m2 sur BALCON exposée S-E avec cuisine ouverte, un dégagement nuit desservant 2 CHAMBRES de 13,17 m2 et et 10,28 m2 avec placards et une salle d'eau douche à l'italienne. PARKING sécurisé en sous-sol.
SES PLUS : logement économe (DPE C, chaudière à condensation, VMC hygro), CALME car situé à l'arrière de la résidence, ensoleillé, TRAM ligne 2 le Cardo à moins de 10 mn à pieds, appartement en très bon état d'entretien. Pour résidence principale ou investissement.

Prix : 235 000 euros FAI (honoraires à charge vendeur).

DPE C GES C
Montant estimé des dépenses annuelles d'énergie pour un usage standard entre 501 et 677 euros indexées aux années 2021, 2022 et 2023 (ou 2021 uniquement) (si logement F ou G 'Logement à consommation énergétique excessive : classe F ou G')
Pour visiter et vous accompagner dans votre projet, contactez Angélique TAILLANDIER, au [Coordonnées masquées] ou, par courriel à [Coordonnées masquées].
Selon l'article L.561.5 du Code Monétaire et Financier, pour l'organisation de la visite, la présentation d'une pièce d'identité vous sera demandée.
Cette présente annonce a été rédigée sous la responsabilité éditoriale de Angélique TAILLANDIER agissant en qualité de conseiller immobilier indépendant sous portage salarial auprès de SAS PROPRIETES PRIVEES, au capital de 44 920 euros, ZAC LE CHÊNE FERRÉ - 44 ALLÉE DES CINQ CONTINENTS 44120 VERTOU; SIRET 487 624 777 00040, RCS Nantes. Carte Professionnelle Transactions sur immeubles et fonds de commerce (T) et Gestion immobilière (G) n°CPI 44[Coordonnées masquées]10 388 délivrée par la CCI Nantes - Saint Nazaire. Compte séquestre n°3[Coordonnées masquées] BPA SAINT-SEBASTIEN-SUR-LOIRE (44230). Garantie GALIAN-SMABTP - 89 rue de la Boétie, 75008 Paris - n°28137 J pour 2 000 000 euros pour T et 120 000 euros pour G. Assurance responsabilité civile professionnelle par GALIAN-SMABTP n° de police 28137.J

Mandat réf : 423962 - Le professionnel garantit et sécurise votre projet immobilier.
Les informations sur les risques auxquels ce bien est exposé sont disponibles sur le site Géorisques : www. georisques. gouv. fr
Voir plus

Référence: 423962TDG
Bien en copropriété. Charges de copropriété : 91 €.
Honoraires à la charge du vendeur.
DPE
A
B
C
D
E
F
G
GES
A
B
C
D
E
F
G

Prêt immobilier

Vous souhaitez connaître votre capacité d’emprunt et trouver le meilleur crédit immobilier ?
Réaliser une simulation gratuite

Appartement à NANTES
Appartement à NANTES
Appartement à NANTES
Appartement à NANTES
Appartement à NANTES
Appartement à NANTES
Appartement à NANTES
Appartement à NANTES
Appartement à NANTES
Appartement à NANTES
Ce site est protégé par reCAPTCHA la Politique de confidentialité et les Conditions d’utilisation de Google s’appliquent.
Obtenir un prêt immobilier au meilleur taux ?

En poursuivant votre navigation sans modifier vos paramètres, vous acceptez l'utilisation de cookies susceptibles de réaliser des statistiques de visite. Cliquez ici pour plus d'informations