Bénéficiez des services de nos partenaires locaux soigneusement sélectionnés
pour vous accompagner dans votre parcours d'achat immobilier

Paris 18ème marx dormoy 5 pièces 129m2

— Paris-18e 75018 —
750 000 €
129 m²
5 pièces

Nos partenaires locaux
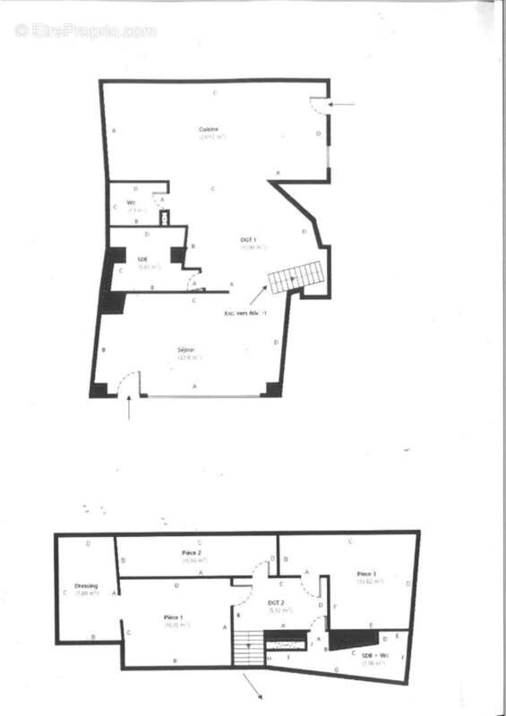
Appartement esprit loft Paris 18ème Marx Dormoy / ZAC Pajol L'Immobilier par Charly vous propose ce superbe appartement rénové, à l'esprit loft, situé dans le quartier de Marx Dormoy tout proche de la ZAC Pajol. Un bien atypique et plein de charme, idéal pour une famille, une profession libérale ou les amateurs de beaux volumes. Dès l'entrée, le ton est donné : matériaux de qualité, volumes généreux et atmosphère contemporaine. L'espace de vie (environ 60 m²): Un salon lumineux avec entrée indépendante sur rue, parfait pour accueillir une activité professionnelle. Une superbe cuisine aménagée et équipée, ouverte sur un espace salle à manger convivial d'environ 30 m², donnant sur la cour fleurie de l'immeuble. Une salle d'eau moderne avec grande douche et un WC indépendant avec espace buanderie complètent ce niveau. L'espace nuit (niveau inférieur): Accessible par un bel escalier métallique, le niveau inférieur se compose de: Une suite parentale avec dressing, Une seconde chambre spacieuse, Une pièce polyvalente (bureau, chambre d'appoint ou rangement), Une salle de bain avec WC. Atouts majeurs: Deux entrées indépendantes offrant une grande souplesse d'usage (mixte habitation / activité professionnelle) Rénovation complète et soignée Volumes rares et ambiance loft Emplacement idéal, à proximité immédiate des commerces, transports (métros Marx Dormoy, La Chapelle et Gare du Nord) et du quartier dynamique de la ZAC Pajol Un bien coup de coeur, mêlant cachet, confort moderne et volumes exceptionnels (2.74 % honoraires TTC à la charge de l'acquéreur.) Copropriété de 90 lots - dont 43 lots habitation. Charges annuelles : 3000 euros.
Voir plus

Référence: IPC382
Bien en copropriété. Nombre de lots : 90. Charges de copropriété : 3000 €. Procédure en cours : Procédure en cours.
Honoraires d'agence de 2.74% à la charge de l'acquéreur
Barème des honoraires
DPE
A
B
C
D
E
F
G
GES
A
B
C
D
E
F
G

Prêt immobilier

Vous souhaitez connaître votre capacité d’emprunt et trouver le meilleur crédit immobilier ?
Réaliser une simulation gratuite

Appartement à PARIS-18E
Appartement à PARIS-18E
Appartement à PARIS-18E
Appartement à PARIS-18E
Appartement à PARIS-18E
Appartement à PARIS-18E
Appartement à PARIS-18E
Appartement à PARIS-18E
Appartement à PARIS-18E
Appartement à PARIS-18E
Appartement à PARIS-18E
Appartement à PARIS-18E
Appartement à PARIS-18E
Appartement à PARIS-18E
Ce site est protégé par reCAPTCHA la Politique de confidentialité et les Conditions d’utilisation de Google s’appliquent.
Obtenir un prêt immobilier au meilleur taux ?

En poursuivant votre navigation sans modifier vos paramètres, vous acceptez l'utilisation de cookies susceptibles de réaliser des statistiques de visite. Cliquez ici pour plus d'informations