Bénéficiez des services de nos partenaires locaux soigneusement sélectionnés
pour vous accompagner dans votre parcours d'achat immobilier

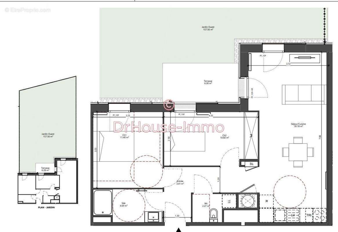
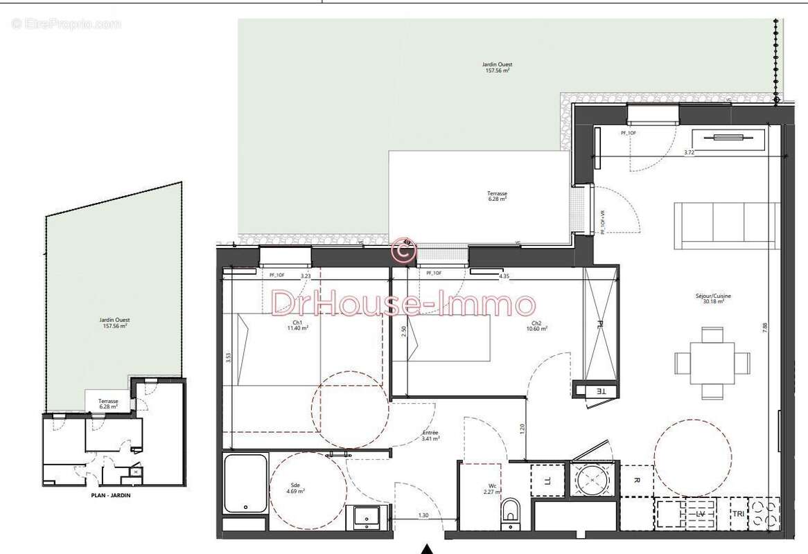
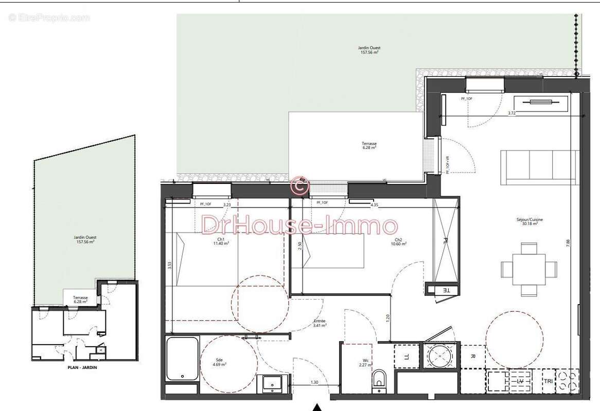
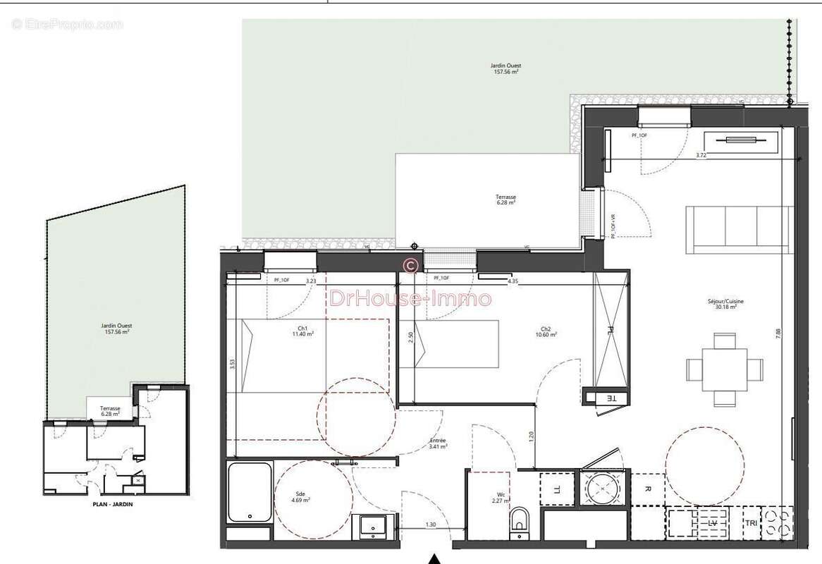
Appartement 63m² à le taillan-medoc

— Le Taillan-Medoc 33320 —
269 000 €
63 m²
3 pièces
parkingbalcon/terrasse

Nos partenaires locaux
RESIDENCE 2024 SOUS GARANTIE - EMPLACEMENT IDEAL ALLIANT NATURE ET COMMODITES

A VENDRE APPARTEMENT 3 PIECES DE 63 M2 AVEC JARDIN, DE 158 M2, TERRASSE ET 2 PARKINGS

LE TAILLAN MEDOC 33320 -BORDEAUX METROPOLE

Profitez de la qualité de vie de cette commune bordée de forêts bénéficiant d'une position stratégique à seulement 10 km de Bordeaux , entre les côtes océanes et les châteaux du Médoc, offrant toutes les commodités pour le bien être des familles, à quelques minutes du centre bourg et du Tram .
Dans une charmante résidence sécurisée , construite aux normes actuelles et harmonieusement intégrée au paysage , cet appartement au RDC avec jardin SANS VIS A VIS ni passage, bénéficie de tout le confort moderne

ENVIRONNEMENT:
Situation privilégiée dans un quartier en plein essor bénéficiant d'un cadre verdoyant, à quelque minutes des commodités autour du centre bourg (commerces, écoles, supermarché, transports..)
Cette résidence s'inscrit dans un projet paysager dans la continuité d'un écrin végétal préservé

COMPOSITION DU BIEN:

Entrée, séjour/cuisine , 2 chambres , Salle d'eau , WC,
Le bien est complété de 2 parkings privatifs et d'un jardin de 158 m2 avec terrasse sans autre vue que la nature arborée en face.

COMMODITES:

La résidence profite d’une proximité immédiate aux infrastructures , commerces et écoles, ainsi que d’un accès rapide au centre-ville et aux axes routiers.
-Supermarché à 5 minutes à pied
-Transports: Bus , Tram D/ Cantinolles à environ 5 km , proche rocade

A SAVOIR:

-Copropriété de 25 logements .Pas de procédure en cours.
- Personnalisable,
-Normes RT 2012
-DPE à réaliser en fin des travaux.
-Panneaux photovoltaïques
-SOUS GARANTIES
-FRAIS D'ACTE REDUITS
Prix honoraires inclus à charge vendeur

BELLE OPPORTUNITE : DEVENEZ LE 1ER PROPRIETAIRE DE CE LOGEMENT BIENTOT DISPONIIBLE Ce bien vous est présenté par Muriel Pauzet, votre conseillère indépendante Dr House Immo.
Voir plus

Référence: B003T3NDHI1849
Bien en copropriété.
Honoraires à la charge du vendeur.
Barème des honoraires
DPE
A
B
C
D
E
F
G
GES
A
B
C
D
E
F
G

Prêt immobilier

Vous souhaitez connaître votre capacité d’emprunt et trouver le meilleur crédit immobilier ?
Réaliser une simulation gratuite

Appartement à LE TAILLAN-MEDOC
Appartement à LE TAILLAN-MEDOC
Appartement à LE TAILLAN-MEDOC
Appartement à LE TAILLAN-MEDOC
Appartement à LE TAILLAN-MEDOC
Appartement à LE TAILLAN-MEDOC
Appartement à LE TAILLAN-MEDOC
Appartement à LE TAILLAN-MEDOC
Appartement à LE TAILLAN-MEDOC
Appartement à LE TAILLAN-MEDOC
Appartement à LE TAILLAN-MEDOC
Appartement à LE TAILLAN-MEDOC
Appartement à LE TAILLAN-MEDOC
Appartement à LE TAILLAN-MEDOC
Appartement à LE TAILLAN-MEDOC
Appartement à LE TAILLAN-MEDOC
Appartement à LE TAILLAN-MEDOC
Appartement à LE TAILLAN-MEDOC
Appartement à LE TAILLAN-MEDOC
Appartement à LE TAILLAN-MEDOC
Ce site est protégé par reCAPTCHA la Politique de confidentialité et les Conditions d’utilisation de Google s’appliquent.
Obtenir un prêt immobilier au meilleur taux ?

En poursuivant votre navigation sans modifier vos paramètres, vous acceptez l'utilisation de cookies susceptibles de réaliser des statistiques de visite. Cliquez ici pour plus d'informations