Bénéficiez des services de nos partenaires locaux soigneusement sélectionnés
pour vous accompagner dans votre parcours d'achat immobilier

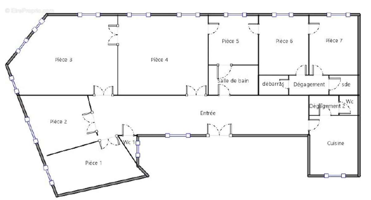
Paris 17e - wagram / ampère - appartement d'angle - 7 pièces - 4/5 chambres - 195 m²

— Paris-17e 75017 —
2 295 000 €
195 m²
7 pièces
ascenseur

Nos partenaires locaux
Paris 17e - Wagram / Ampère - Appartement d'angle - 7 pièces - 4/5 chambres - 195 m²
EXCLUSIVITÉ - Dans un très bel immeuble Haussmannien avec gardienne de l'avenue de Wagram, situé au 3e étage par ascenseur, votre agence immobilière Paris Luxe Properties vous propose un superbe appartement familial de 7 pièces, 195 m², composé de : une galerie d'entrée, un salon-salle à manger en angle orienté Sud-Ouest (rue Ampère et Wagram), 4 chambres (possibilité 5 chambres), une cuisine indépendante aménagée, 1 salle de bains, 1 salle de douche, 2 wc indépendants avec point d'eau. Possibilité d'aménager très facilement 4 chambres avec 4 salles de bains, dont une suite parentale (sdb + dressing). Appartement très lumineux, doté de nombreux rangements, d'une hauteur sous plafond de 3.10 m, de parquet point de Hongrie, de moulures et de cheminées, en bon état général. Une double cave en sous-sol vient compléter ce bien. Professions libérales acceptées dans l'immeuble.
PROXIMITÉ ÉCOLES, COMMERCES ET TRANSPORTS (4.03 % d'honoraires TTC à la charge de l'acquéreur.)
Copropriété de 38 lots - dont 30 lots habitation. (Pas de procédure en cours).
Charges annuelles : 5428.00 euros.
Voir plus

Référence: 16V483n
Barème des honoraires
DPE
A
B
C
D
E
F
G
GES
A
B
C
D
E
F
G

Prêt immobilier

Vous souhaitez connaître votre capacité d’emprunt et trouver le meilleur crédit immobilier ?
Réaliser une simulation gratuite

Appartement à PARIS-17E
Appartement à PARIS-17E
Appartement à PARIS-17E
Appartement à PARIS-17E
Appartement à PARIS-17E
Appartement à PARIS-17E
Appartement à PARIS-17E
Appartement à PARIS-17E
Appartement à PARIS-17E
Appartement à PARIS-17E
Appartement à PARIS-17E
Appartement à PARIS-17E
Appartement à PARIS-17E
Ce site est protégé par reCAPTCHA la Politique de confidentialité et les Conditions d’utilisation de Google s’appliquent.
Obtenir un prêt immobilier au meilleur taux ?

En poursuivant votre navigation sans modifier vos paramètres, vous acceptez l'utilisation de cookies susceptibles de réaliser des statistiques de visite. Cliquez ici pour plus d'informations