Bénéficiez des services de nos partenaires locaux soigneusement sélectionnés
pour vous accompagner dans votre parcours d'achat immobilier

Coup de coeur ! duplex t4 de 104,55 m2 - refait entièrement en 2021 - avec terrasse et garage boxé - viarme à nantes

— Nantes 44000 —
595 000 €
114 m²
5 pièces
parkingbalcon/terrasseascenseur

Nos partenaires locaux
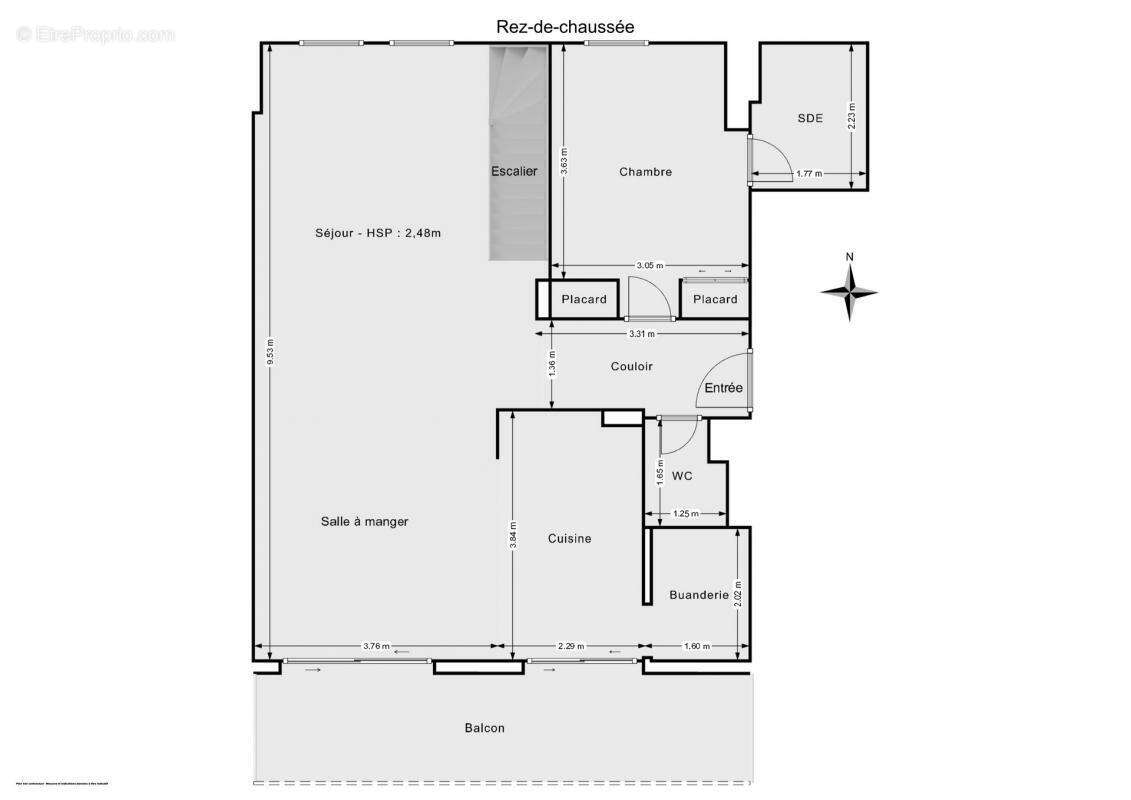
Hosman vous propose à la vente ce très beau duplex avec 3 chambres de 104,55 m2, en dernier étage avec ascenseur situé quartier Viarme à Nantes.

Le bien se trouve au 4ème étage sur 4 (avec ascenseur) au calme dans une allée privée et sécurisée.
Vous pourrez profiter d'une belle terrasse de 14 m2 exposée Sud-Est.
L'appartement a été entièrement rénové en 2021 avec des matériaux de qualité (parquet, cuisine...) et a été très peu utilisé.
Le ravalement de l'immeuble a été fait en Septembre 2025. Vous n'aurez plus qu'à poser vos valises.

Planifiez facilement votre visite en choisissant le créneau qui vous convient depuis le site d'Hosman.

Le bien se compose comme suit :
- D'une entrée avec rangements.
- D'une très belle pièce de vie lumineuse et traversante de 46 m2. La pièce de vie donne sur une terrasse de 14 m2 exposée Sud-Est.
- D'une cuisine ouverte sur la pièce de vie avec un espace cellier / buanderie attenant.
- D'une suite parentale de plain pied de 15,49 m2 avec une salle d'eau attenante.
- De toilettes séparées.

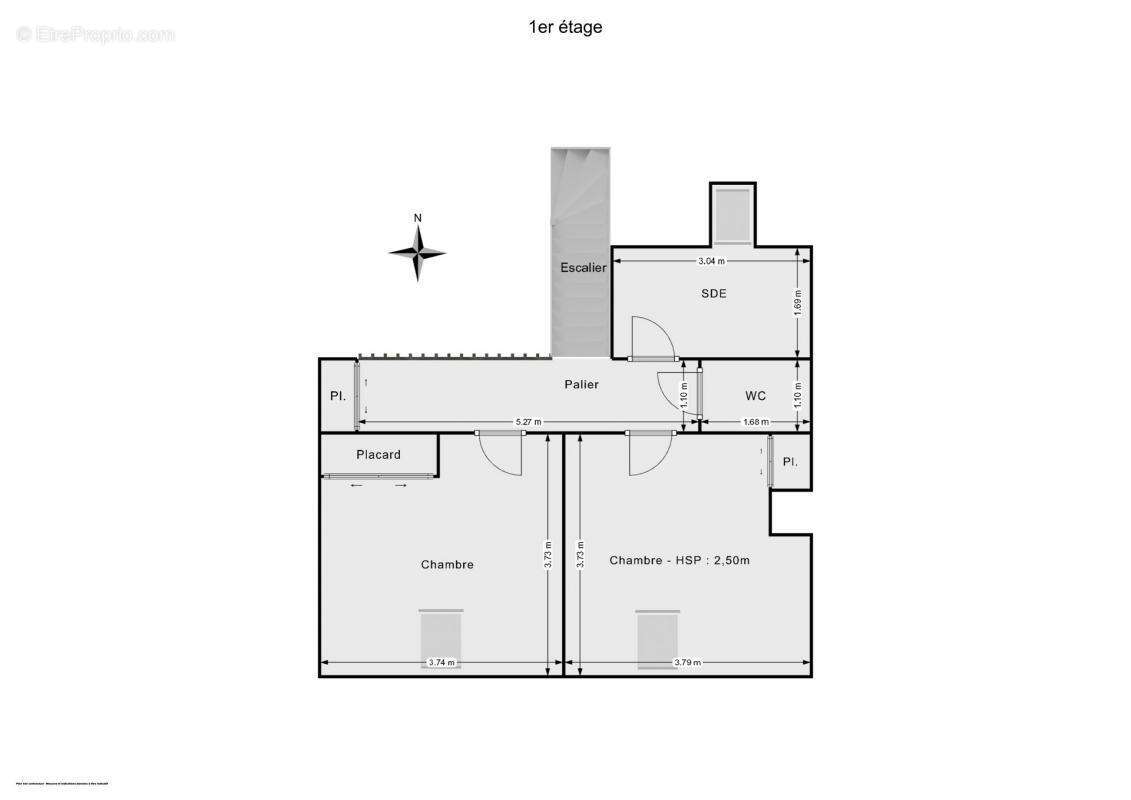
ETAGE :
- D'un palier pouvant servir de bureau
- De 2 chambres avec placards.
- D'une salle d'eau.
- De toilettes séparées.

Un garage boxé complète ce bien.
Le système de chauffage est assuré par des radiateurs électriques récents et l'eau chaude par un ballon électrique récent.

La taxe foncière annuelle est de 2 335 €.
Le bien est soumis au statut de copropriété avec des parties communes en bon état. Les charges de copropriété s'élèvent à 588 € par trimestre, couvrant l'ascenseur, le nettoyage et l'entretien du garage.

L'appartement est situé à proximité immédiate de la Place Viarme et de ses commodités (transports, commerces, restaurants, écoles, marché de Talensac...)
La ligne 3 du tram (arrêt Jean Jaurès) se trouve à 2 minutes à pied.
Une école, une crèche et une garderie se trouvent au pied de l'immeuble.

Hosman s'efforce de réinventer l'agence immobilière en offrant un service innovant et transparent aux acheteurs et aux vendeurs. Nos frais d'agence sont de 14 875 euros au pourcentage à la charge du vendeur.

Si vous êtes un professionnel de l'immobilier (agent, mandataire ou chasseur immobilier), sachez que toutes les annonces Hosman sont ouvertes à la collaboration. N'hésitez pas à nous contacter pour en discuter.
Voir plus

Référence: db1372
Bien en copropriété. Charges de copropriété : 196 €.
Honoraires à la charge du vendeur.
DPE
A
B
C
D
E
F
G
GES
A
B
C
D
E
F
G

Prêt immobilier

Vous souhaitez connaître votre capacité d’emprunt et trouver le meilleur crédit immobilier ?
Réaliser une simulation gratuite

Appartement à NANTES
Appartement à NANTES
Appartement à NANTES
Appartement à NANTES
Appartement à NANTES
Appartement à NANTES
Appartement à NANTES
Appartement à NANTES
Appartement à NANTES
Appartement à NANTES
Appartement à NANTES
Appartement à NANTES
Appartement à NANTES
Appartement à NANTES
Appartement à NANTES
Appartement à NANTES
Appartement à NANTES
Appartement à NANTES
Appartement à NANTES
Appartement à NANTES
Appartement à NANTES
Ce site est protégé par reCAPTCHA la Politique de confidentialité et les Conditions d’utilisation de Google s’appliquent.
Obtenir un prêt immobilier au meilleur taux ?

En poursuivant votre navigation sans modifier vos paramètres, vous acceptez l'utilisation de cookies susceptibles de réaliser des statistiques de visite. Cliquez ici pour plus d'informations