Maison familiale 121 m² secteur terres fleuries

— Saint-Germain-En-Laye 78112 —
810 000 €
121 m² / 390 m²
6 pièces
parkingbalcon/terrassejardin

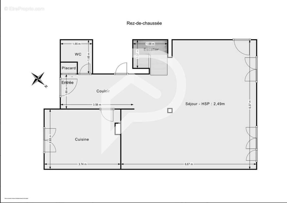
A Fourqueux, dans le secteur très recherché des Terres Fleuries, découvrez cette maison familiale édifiée en 1986 sur un terrain de 390 m². L'emplacement est idéal : l'arrêt de bus est littéralement au pied de la maison (50 m) et le Lycée International de Saint-Germain-en-Laye se rejoint en une dizaine de minutes à pied seulement. Le golf et les accès rapides A13/A14 sont également proches. La maison développe 121 m² habitables sur deux niveaux, avec la possibilité d'aménager les combles. Au rez-de-chaussée, une entrée avec placards mène à une belle pièce de vie lumineuse d'environ 37 m², exposée sud-ouest et donnant directement sur une terrasse et un jardin parfaitement au calme, sans aucun vis-à-vis. La cuisine, séparée et équipée, est à la fois pratique et fonctionnelle. Un wc indépendant avec lave-mains complète ce niveau. A l'étage, le palier dessert quatre chambres confortables, dont une suite parentale avec salle de bains privative et balcon. Une salle d'eau supplémentaire ainsi que des toilettes séparées viennent compléter l'étage. Le jardin, plat et facile d'entretien, offre un vrai prolongement de la maison et un espace extérieur agréable pour profiter des beaux jours. Un garage, le double vitrage et de nombreux rangements viennent compléter ce bien en excellent état général. Prix : 810 000 euros FAI (785 000 euros net vendeur + 25 000 euros honoraires TTC à la charge de l'acquéreur, soit 3,18 %).
Voir plus

Référence: 640
Honoraires à la charge du vendeur.
Barème des honoraires
DPE
A
B
C
D
E
F
G
GES
A
B
C
D
E
F
G

Prêt immobilier

Vous souhaitez connaître votre capacité d’emprunt et trouver le meilleur crédit immobilier ?
Réaliser une simulation gratuite

Maison à SAINT-GERMAIN-EN-LAYE
Maison à SAINT-GERMAIN-EN-LAYE
Maison à SAINT-GERMAIN-EN-LAYE
Maison à SAINT-GERMAIN-EN-LAYE
Maison à SAINT-GERMAIN-EN-LAYE
Maison à SAINT-GERMAIN-EN-LAYE
Maison à SAINT-GERMAIN-EN-LAYE
Maison à SAINT-GERMAIN-EN-LAYE
Maison à SAINT-GERMAIN-EN-LAYE
Maison à SAINT-GERMAIN-EN-LAYE
Maison à SAINT-GERMAIN-EN-LAYE
Maison à SAINT-GERMAIN-EN-LAYE
Maison à SAINT-GERMAIN-EN-LAYE
Maison à SAINT-GERMAIN-EN-LAYE
Maison à SAINT-GERMAIN-EN-LAYE
Maison à SAINT-GERMAIN-EN-LAYE
Maison à SAINT-GERMAIN-EN-LAYE
Maison à SAINT-GERMAIN-EN-LAYE
Ce site est protégé par reCAPTCHA la Politique de confidentialité et les Conditions d’utilisation de Google s’appliquent.
Obtenir un prêt immobilier au meilleur taux ?

En poursuivant votre navigation sans modifier vos paramètres, vous acceptez l'utilisation de cookies susceptibles de réaliser des statistiques de visite. Cliquez ici pour plus d'informations