Maison de ville à crozon, proche voie verte, à visiter sans tarder !

— Crozon 29160 —
268 000 €
110 m² / 514 m²
8 pièces
parkingjardin

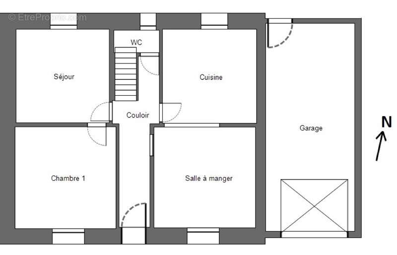
Située au cœur de Crozon, cette agréable maison de ville entièrement rénovée en 2021, bordant la voie verte saura vous séduire par ses beaux volumes et son cadre pratique et verdoyant.

Possibilité de concilier vie privée et professionnelle, au rez-de-chaussée deux pièces attenantes peuvent servir à une activité professionnelle (par le passé ces locaux ont servi à deux prestataires de services).

Une cuisine ouverte sur un séjour lumineux, idéal pour la vie familiale et conviviale.

Quatre grandes chambres confortables dont une située au rez-de-chaussée, parfaites pour accueillir famille et invités.

La chaudière performante offrant une consommation énergétique très faible, garantissant confort et économies.

Le jardin agréable est idéal pour profiter des beaux jours.

La maison bénéficie d'une classe énergétique avantageuse, gage de faibles dépenses et de sérénité au quotidien, entièrement isolée par l'extérieur, elle est équipée d'une ventilation mécanique par insufflation.

Emplacement recherché : proximité immédiate de la voie verte, commerces et commodités accessibles à pied ou à vélo. Proche de la gare routière.
Les honoraires d'agence sont à la charge de l'acquéreur, soit 3,47% TTC du prix hors honoraires.
Les informations sur les risques auxquels ce bien est exposé sont disponibles sur le site Géorisques : www. georisques. gouv. fr.

Réseau Immobilier CAPIFRANCE - Votre agent commercial (RSAC N°888 880 028 - Greffe de QUIMPER) Laurence LEMUNIER Entrepreneur Individuel [Coordonnées masquées] - Réf.926477
Voir plus

Référence: 340935172474
DPE
A
B
C
D
E
F
G
GES
A
B
C
D
E
F
G

Prêt immobilier

Vous souhaitez connaître votre capacité d’emprunt et trouver le meilleur crédit immobilier ?
Réaliser une simulation gratuite

Maison à CROZON
Maison à CROZON
Maison à CROZON
Maison à CROZON
Maison à CROZON
Maison à CROZON
Maison à CROZON
Maison à CROZON
Maison à CROZON
Maison à CROZON
Maison à CROZON
Maison à CROZON
Maison à CROZON
Maison à CROZON
Maison à CROZON
Maison à CROZON
Maison à CROZON
Maison à CROZON
Maison à CROZON
Maison à CROZON
Maison à CROZON
Maison à CROZON
Ce site est protégé par reCAPTCHA la Politique de confidentialité et les Conditions d’utilisation de Google s’appliquent.
Obtenir un prêt immobilier au meilleur taux ?

En poursuivant votre navigation sans modifier vos paramètres, vous acceptez l'utilisation de cookies susceptibles de réaliser des statistiques de visite. Cliquez ici pour plus d'informations