Nogent-sur-marne - 94130 - village - appartement familial - etage 3/3 - ascenseur - balcon - parking - cave privative

— Nogent-Sur-Marne 94130 —
675 000 €
100 m²
4 pièces
parkingbalcon/terrasseascenseur

Optimhome vous présente ce bien idéalement situé au troisième et dernier étage (3/3) avec ASCENSEUR d'une résidence bien entretenue.
Ce bel appartement TRAVERSANT décoré avec soin, 91m2 carrez (100m2 au sol) vous séduira par sa luminosité et son atmosphère chaleureuse.

Niché dans le quartier de NOGENT VILLAGE, proche des commerces et écoles, ce bien allie calme, confort et vie de quartier.

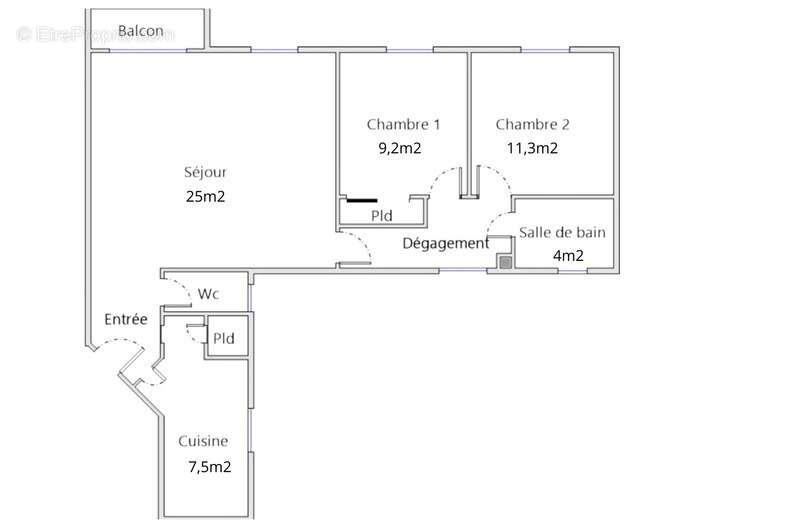
Composé de 4 PIECES principales sur 2 niveaux vous découvrirez :
- une ENTRÉE avec WC séparés
- une CUISINE indépendante (8m2) entièrement équipée
- un joli SALON CATHÉDRALE de 25m2, LUMINEUX grâce à une lumière traversante naturelle et omniprésente avec une double exposition Est/Ouest. Il donne accès au BALCON.

Côté NUIT, vous trouverez :
- 2 CHAMBRES (9,5m2 et 11m2) orientées à l'OUEST équipées de VOLETS ELECTRIQUES pour un confort optimal,
- une SALLE DE BAINS indépendante avec fenêtre

A l'ÉTAGE, vous accéderez depuis le pallier à :
- un bel ESPACE BUREAU aménagé, parfait pour le TÉLÉTRAVAIL
- une 3e CHAMBRE mansardée avec de nombreux rangements intégrés
- une SALLE d'EAU avec WC et fenêtre

Ce bien a bénéficié d'une rénovation partielle :
- D'une salle de bains et toilettes indépendantes refaites à neuf avec goût

Ce bien est complété par :
- Une CAVE privative pour un rangement optimal
- Une place de PARKING en sous-sol

Nogent-sur-Marne, entre ville et nature, offre une qualité de vie exceptionnelle :
À proximité immédiate du bois de Vincennes, des bords de Marne, des parcs et jardins
Nombreuses infrastructures : piscine, centre équestre, aviron, gymnase, dojo, théâtres...
Le nouveau marché “Cœur de Ville” apportera encore plus de dynamisme : halles modernes, esplanade conviviale, restaurants, espaces verts et parking souterrain étendu.

Idéal pour une famille, cet appartement est fait pour vous !
Contactez-nous pour plus d'informations ou sélectionnez votre créneau de visite directement sur notre site.
Nombre de lots de la copropriété: 21, Montant moyen de la quote-part annuelle de charges (budget prévisionnel) : 1260€ soit 105€ par mois. Les honoraires d'agence sont à la charge de l'acquéreur, soit 2,56% TTC du prix hors honoraires.
Les informations sur les risques auxquels ce bien est exposé sont disponibles sur le site Géorisques : www. georisques. gouv. fr.

Contactez Angélique THÉPAUT-CALVEZ Entrepreneur Individuel, Agent commercial OptimHome (RSAC N°922 289 038 Greffe de DAX) [Coordonnées masquées] (réf. 594871 )
Voir plus

Référence: 830036036939
Bien en copropriété. Nombre de lots : 21. Charges de copropriété : 105 €.
DPE
A
B
C
D
E
F
G
GES
A
B
C
D
E
F
G

Prêt immobilier

Vous souhaitez connaître votre capacité d’emprunt et trouver le meilleur crédit immobilier ?
Réaliser une simulation gratuite

Appartement à NOGENT-SUR-MARNE
Appartement à NOGENT-SUR-MARNE
Appartement à NOGENT-SUR-MARNE
Appartement à NOGENT-SUR-MARNE
Appartement à NOGENT-SUR-MARNE
Appartement à NOGENT-SUR-MARNE
Appartement à NOGENT-SUR-MARNE
Appartement à NOGENT-SUR-MARNE
Appartement à NOGENT-SUR-MARNE
Appartement à NOGENT-SUR-MARNE
Appartement à NOGENT-SUR-MARNE
Appartement à NOGENT-SUR-MARNE
Appartement à NOGENT-SUR-MARNE
Appartement à NOGENT-SUR-MARNE
Appartement à NOGENT-SUR-MARNE
Appartement à NOGENT-SUR-MARNE
Appartement à NOGENT-SUR-MARNE
Appartement à NOGENT-SUR-MARNE
Ce site est protégé par reCAPTCHA la Politique de confidentialité et les Conditions d’utilisation de Google s’appliquent.
Obtenir un prêt immobilier au meilleur taux ?

En poursuivant votre navigation sans modifier vos paramètres, vous acceptez l'utilisation de cookies susceptibles de réaliser des statistiques de visite. Cliquez ici pour plus d'informations