Bénéficiez des services de nos partenaires locaux soigneusement sélectionnés
pour vous accompagner dans votre parcours d'achat immobilier

Studio traversant

— Neuilly-Sur-Seine 92200 —
244 000 €
25 m²
1 pièce

Nos partenaires locaux
49 Rue Madeleine Michelis, 92200 Neuilly-sur-Seine

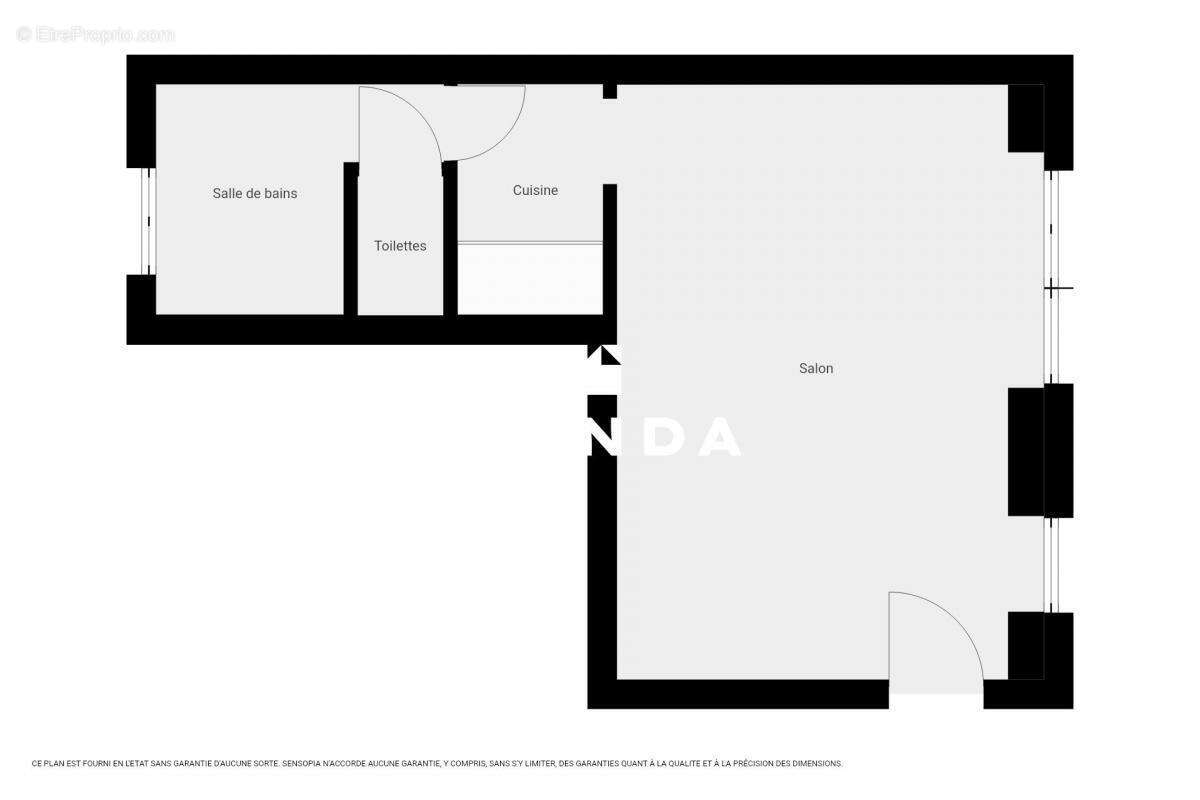
Votre agence Manda vous propose en exclusivité ce studio (24,00m² loi carrez - 25,08m² surface au sol ) situé au rez-de-chaussée au sein d'une copropriété ancienne bien entretenue.

Le bien se compose de la manière suivante : entrée, séjour, kitchenette séparée, WC et salle de bains

Appartement traversant
Belle hauteur sous plafond de 2,95 m
Professions libérales autorisées

Référence: DOM24805
Bien en copropriété. Nombre de lots : 8. Charges de copropriété : 85 €.
Honoraires d'agence de 5.74% à la charge de l'acquéreur
DPE
A
B
C
D
E
F
G
GES
A
B
C
D
E
F
G

Prêt immobilier

Vous souhaitez connaître votre capacité d’emprunt et trouver le meilleur crédit immobilier ?
Réaliser une simulation gratuite

Appartement à NEUILLY-SUR-SEINE
Appartement à NEUILLY-SUR-SEINE
Appartement à NEUILLY-SUR-SEINE
Appartement à NEUILLY-SUR-SEINE
Appartement à NEUILLY-SUR-SEINE
Appartement à NEUILLY-SUR-SEINE
Appartement à NEUILLY-SUR-SEINE
Appartement à NEUILLY-SUR-SEINE
Appartement à NEUILLY-SUR-SEINE
Ce site est protégé par reCAPTCHA la Politique de confidentialité et les Conditions d’utilisation de Google s’appliquent.
Obtenir un prêt immobilier au meilleur taux ?

En poursuivant votre navigation sans modifier vos paramètres, vous acceptez l'utilisation de cookies susceptibles de réaliser des statistiques de visite. Cliquez ici pour plus d'informations