Maison 132m² à pignan

— Pignan 34570 —
203 000 €
132 m² / 132 m²
7 pièces

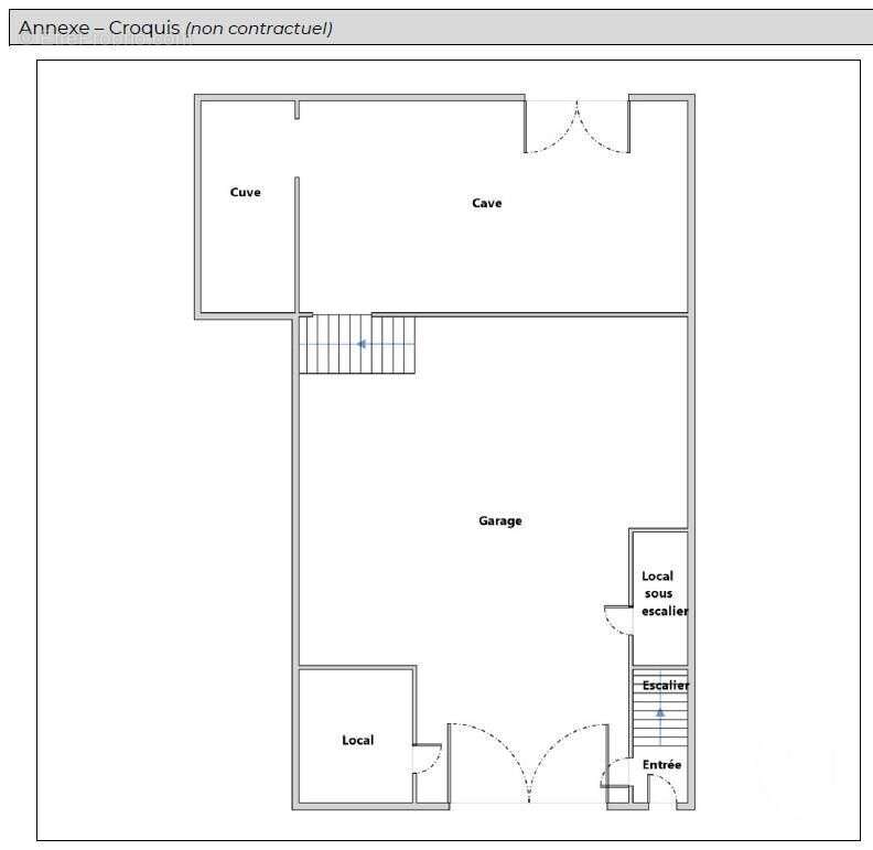
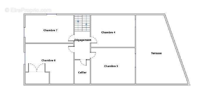
CENTURY21 Védas Immo vous propose cette maison idéale pour les investisseurs ou les bricoleurs de haut niveau, située au cœur de Pignan. Avec ses 7 pièces, dont 6 chambres, une terrasse de 45m² environ, elle offre un potentiel de rénovation considérable. Le bien est à reprendre entièrement, ce qui permettra aux futurs propriétaires de le personnaliser selon leurs goûts et leurs besoins. Un grand garage est également à disposition, offrant un espace pour 2 véhicules moyens et du stockage. La maison dispose d'une surface habitable de 132 m², ce qui permet une organisation spatiale optimale.La maison est située dans un quartier calme, à proximité de plusieurs établissements d'enseignement, dont un collège et des écoles primaires, ce qui la rend idéale pour les familles. Les loisirs ne sont pas en reste, avec un parc et des terrains de sport à quelques minutes à pied. Vous trouverez également des restaurants et des cafés à proximité, offrant une vie locale animée. La présence de transports en commun à proximité facilite les déplacements. Cette maison est un véritable atout pour ceux qui cherchent un projet de rénovation ou un investissement à long terme, dans un cadre de vie agréable et pratique.
Voir plus

Référence: 40545
Honoraires à la charge du vendeur.
Barème des honoraires
DPE
A
B
C
D
E
F
G
GES
A
B
C
D
E
F
G

Prêt immobilier

Vous souhaitez connaître votre capacité d’emprunt et trouver le meilleur crédit immobilier ?
Réaliser une simulation gratuite

Maison à PIGNAN
Maison à PIGNAN
Maison à PIGNAN
Maison à PIGNAN
Maison à PIGNAN
Maison à PIGNAN
Maison à PIGNAN
Maison à PIGNAN
Maison à PIGNAN
Maison à PIGNAN
Maison à PIGNAN
Maison à PIGNAN
Maison à PIGNAN
Maison à PIGNAN
Maison à PIGNAN
Maison à PIGNAN
Maison à PIGNAN
Maison à PIGNAN
Maison à PIGNAN
Ce site est protégé par reCAPTCHA la Politique de confidentialité et les Conditions d’utilisation de Google s’appliquent.
Obtenir un prêt immobilier au meilleur taux ?

En poursuivant votre navigation sans modifier vos paramètres, vous acceptez l'utilisation de cookies susceptibles de réaliser des statistiques de visite. Cliquez ici pour plus d'informations