Bénéficiez des services de nos partenaires locaux soigneusement sélectionnés
pour vous accompagner dans votre parcours d'achat immobilier

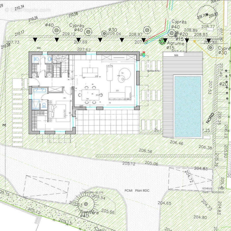
Terrain, avec permis de construire accepté !

— Grasse 06130 —
459 000 €
1 832 m²
jardin

Nos partenaires locaux
Dans le quartier recherché de Grasse, Saint-Jacques, à proximité des commerces et des accès autoroutier, belle parcelle de terrain bénéficiant d'un permis de construire accepté pour une villa, 166 m², de type 5 pièces et piscine. A votre écoute !

Honoraires à la charge du vendeur.
Barème des honoraires

Prêt immobilier

Vous souhaitez connaître votre capacité d’emprunt et trouver le meilleur crédit immobilier ?
Réaliser une simulation gratuite

Terrain à GRASSE
Terrain à GRASSE
Terrain à GRASSE
Ce site est protégé par reCAPTCHA la Politique de confidentialité et les Conditions d’utilisation de Google s’appliquent.
Obtenir un prêt immobilier au meilleur taux ?

En poursuivant votre navigation sans modifier vos paramètres, vous acceptez l'utilisation de cookies susceptibles de réaliser des statistiques de visite. Cliquez ici pour plus d'informations