Bénéficiez des services de nos partenaires locaux soigneusement sélectionnés
pour vous accompagner dans votre parcours d'achat immobilier

Maison 165m² à lescure-d'albigeois

— Lescure-D'albigeois 81380 —
200 000 €
165 m² / 900 m²
7 pièces
parkingbalcon/terrassejardin

Nos partenaires locaux
Iad France - Cyril Diet vous propose : Maison de Caractère à Lescure-d'Albigeois - 5 Chambres - Rénovée - Garage et Jardin

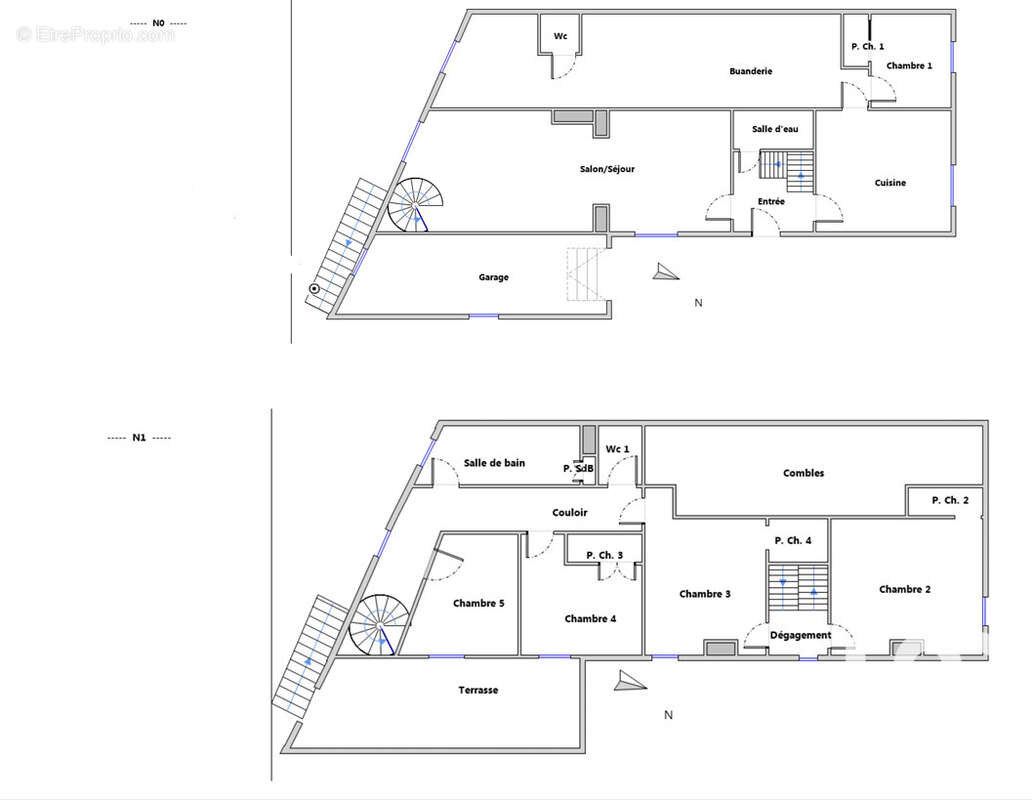
Découvrez cette magnifique maison de 165 m² datant de 1900, située au bord de la route nationale 88, à l'entrée du charmant village de Lescure-d'Albigeois. Rénovée avec goût, elle offre un mélange parfait entre le cachet de l'ancien et le confort moderne, assuré par une bonne isolation phonique et thermique.

Au rez-de-chaussée, vous serez accueilli par une entrée spacieuse menant à un lumineux séjour de 45.77 m² avec sa belle cheminée. La cuisine équipée, séparée de 18.2 m², est idéale pour préparer de délicieux repas en famille. Une salle d'eau, une première chambre et un WC se trouve également à ce niveau, ainsi qu'une buanderie de plus 40 m².

À l'étage, vous trouverez 4 belles chambres, dont 2 donnant sur la grande terrasse de 36 m², offrant de multiples possibilités d'aménagement. Vous disposerez également d'une salle de bain avec baignoire et double vasque, un deuxième WC, vous assurant un confort optimal. Enfin, les combles restent aménageables selon vos envies.

Le grand garage attenant et les places de parking vous offrent des solutions de stationnement pratiques. Profitez du jardin (piscinable), pour vous détendre en plein air ou organiser des moments conviviaux en famille ou entre amis. Le jardin, de 900 m², dispose d'un abri de jardin et d'une dépendance aménagée.

Les expositions est et nord confèrent une belle luminosité à cette maison, tout au long de la journée.

Idéalement située, cette demeure se trouve à proximité de toutes les commodités, des écoles, des commerces et des transports en commun.

Ne manquez pas l'opportunité d'acquérir cette maison pleine de charme à Lescure-d'Albigeois. Contactez-moi dès aujourd'hui pour organiser une visite.

Honoraires d'agence à la charge du vendeur.
Information d'affichage énergétique sur ce bien : classe ENERGIE C indice 162 et classe CLIMAT A indice 5. Les informations sur les risques auxquels ce bien est exposé, y compris l'obligation légale de débroussaillement, sont disponibles sur le site Géorisques : http://www.georisques.gouv.fr.
La présente annonce immobilière a été rédigée sous la responsabilité éditoriale de M Cyril Diet mandataire indépendant en immobilier (sans détention de fonds), agent commercial de la SAS I@D France immatriculé au RSAC de PERPIGNAN sous le numéro 930650056, titulaire de la carte de démarchage immobilier pour le compte de la société I@D France SAS.
Informations LOI ALUR :
Honoraires charge vendeur. (gedeon_6727_32037553)
Voir plus

Référence: 1633418
Honoraires à la charge du vendeur.
DPE
A
B
C
D
E
F
G
GES
A
B
C
D
E
F
G

Prêt immobilier

Vous souhaitez connaître votre capacité d’emprunt et trouver le meilleur crédit immobilier ?
Réaliser une simulation gratuite

Photo 1 - Maison à LESCURE-D'ALBIGEOIS
Photo 1
Photo 2 - Maison à LESCURE-D'ALBIGEOIS
Photo 2
Photo 3 - Maison à LESCURE-D'ALBIGEOIS
Photo 3
Photo 4 - Maison à LESCURE-D'ALBIGEOIS
Photo 4
Photo 5 - Maison à LESCURE-D'ALBIGEOIS
Photo 5
Photo 6 - Maison à LESCURE-D'ALBIGEOIS
Photo 6
Photo 7 - Maison à LESCURE-D'ALBIGEOIS
Photo 7
Photo 8 - Maison à LESCURE-D'ALBIGEOIS
Photo 8
Photo 9 - Maison à LESCURE-D'ALBIGEOIS
Photo 9
Ce site est protégé par reCAPTCHA la Politique de confidentialité et les Conditions d’utilisation de Google s’appliquent.
Obtenir un prêt immobilier au meilleur taux ?

En poursuivant votre navigation sans modifier vos paramètres, vous acceptez l'utilisation de cookies susceptibles de réaliser des statistiques de visite. Cliquez ici pour plus d'informations