Appartement 150m² à saint-jory

— Saint-Jory 31790 —
230 000 €
150 m² / 55 m²
5 pièces

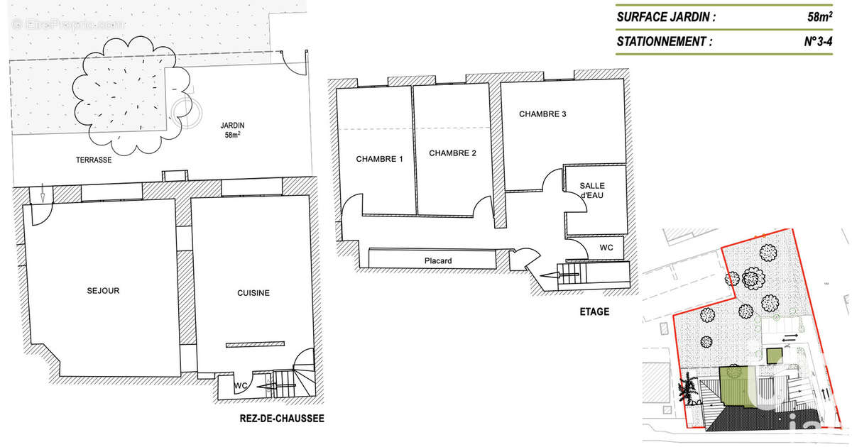
Iad France - Cécilia ROUSSEAU vous propose : Joli compromis entre Appartement / maison avec CHARME de l'ancien, venez découvrir ce bien à FORT potentiel AU CALME de type 5 de 150 m² avec sa grande pièce de vie, sa spacieuse cuisine ouverte sur son agréable extérieur ainsi que 2 stationnements au sein d'une toute petite copropriété de 6 lots.

Venez découvrir cet appartement LUMINEUX à fort potentiel avec son salon / séjour cheminée, sa cuisine ouverte sur la belle terrasse du rangement et des WC.

À l'étage, le coin nuit se compose d'un hall desservant 3 chambres avec placard, un espace salle de bain meuble double vasque, un grand wc.

Deux stationnements complètent ce bien.

À visiter sans tarder !

La presente annonce immobiliere vise 3 lots situés dans une copropriété de 18 lots au total et ne faisant l'objet d'aucune procédure en cours citée à l'article L. 721-1 du code de la construction et de l'habitation. Montant moyen mensuel de charges déclaré par le vendeur : 194¤ par mois (soit 2328 ¤ annuel). Honoraires d'agence à la charge du vendeur.
Information d'affichage énergétique sur ce bien : classe ENERGIE E indice 252 et classe CLIMAT B indice 8. Les informations sur les risques auxquels ce bien est exposé, y compris l'obligation légale de débroussaillement, sont disponibles sur le site Géorisques : http://www.georisques.gouv.fr.
La présente annonce immobilière a été rédigée sous la responsabilité éditoriale de Mme Cécilia ROUSSEAU mandataire indépendant en immobilier (sans détention de fonds), agent commercial de la SAS I@D France immatriculé au RSAC de TOULOUSE sous le numéro 521610246, titulaire de la carte de démarchage immobilier pour le compte de la société I@D France SAS.
Informations LOI ALUR :
Soumis au régime de copropriété.
Nombre de lots : 18.
Quote part annuelle(moyenne) : 2328 euros.
Honoraires charge vendeur. (gedeon_6727_32043807)
Voir plus

Référence: 1857110
Bien en copropriété. Nombre de lots : 18. Charges de copropriété : 2328 €.
Honoraires à la charge du vendeur.
DPE
A
B
C
D
E
F
G
GES
A
B
C
D
E
F
G

Prêt immobilier

Vous souhaitez connaître votre capacité d’emprunt et trouver le meilleur crédit immobilier ?
Réaliser une simulation gratuite

Photo 1 - Appartement à SAINT-JORY
Photo 1
Photo 2 - Appartement à SAINT-JORY
Photo 2
Photo 3 - Appartement à SAINT-JORY
Photo 3
Photo 4 - Appartement à SAINT-JORY
Photo 4
Photo 5 - Appartement à SAINT-JORY
Photo 5
Photo 6 - Appartement à SAINT-JORY
Photo 6
Photo 7 - Appartement à SAINT-JORY
Photo 7
Ce site est protégé par reCAPTCHA la Politique de confidentialité et les Conditions d’utilisation de Google s’appliquent.
Obtenir un prêt immobilier au meilleur taux ?

En poursuivant votre navigation sans modifier vos paramètres, vous acceptez l'utilisation de cookies susceptibles de réaliser des statistiques de visite. Cliquez ici pour plus d'informations