Bénéficiez des services de nos partenaires locaux soigneusement sélectionnés
pour vous accompagner dans votre parcours d'achat immobilier

Valbonne — villa contemporaine - fort potentiel

— Valbonne 06560 —
660 000 €
179 m²
4 pièces

Nos partenaires locaux
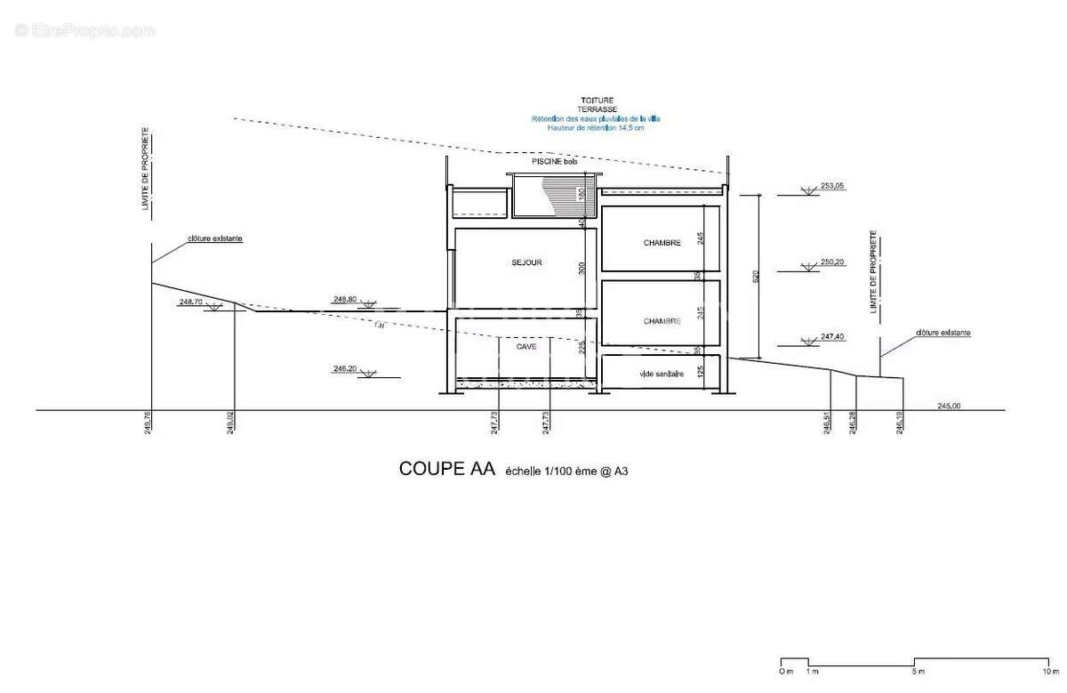
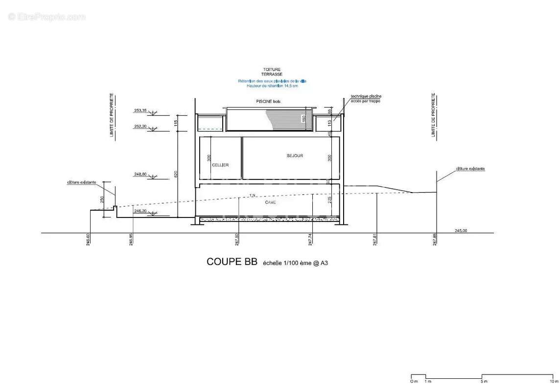
Implanté sur un terrain d’environ 745 m² dans un secteur résidentiel prisé, à proximité immédiate des axes principaux et du pôle de Sophia-Antipolis, cette villa contemporaine de 178,90 m² dont 50 m2 en entresol séduit par la qualité de construction, gage de modernité et de pérennité.

Le rez-de-chaussée se compose d'une entrée desservant deux chambres, une salle de bains et un WC indépendant.

Au rez-de-jardin, un vaste espace de vie lumineux réunit séjour, salle à manger et cuisine ouverte avec cellier, le tout s’ouvrant sur un jardin paysager.

L’étage offre une troisième chambre, un bureau ainsi qu’une salle de douche et un WC indépendant.

Enfin, le niveau inférieur semi-enterré de 50 m² disposant d’un accès intérieur et extérieur offre de nombreuses possibilités d’aménagement : salle de jeux, salle de cinéma ou espace professionnel selon.

Un permis de construire validé pour une piscine en toiture, en structure légère (6 x 3 m) est réalisable, les fondations ont été spécifiquement dimensionnées pour supporter cette réalisation, offrant la possibilité d’un espace détente exclusif avec vue dégagée.

La propriété bénéficie également de trois places de stationnement, avec la possibilité d’en créer d’autres selon les besoins.

Un accompagnement sur mesure par un architecte d’intérieur peut être proposé. Les travaux de second œuvre et de viabilisation déjà réalisés sont entièrement documentés (plans, devis et descriptif détaillé disponibles), tout comme les devis relatifs à la poursuite et à la mise en valeur finale de la villa.
Voir plus

Référence: 86361775
Barème des honoraires

Prêt immobilier

Vous souhaitez connaître votre capacité d’emprunt et trouver le meilleur crédit immobilier ?
Réaliser une simulation gratuite

Maison à VALBONNE
Maison à VALBONNE
Maison à VALBONNE
Maison à VALBONNE
Maison à VALBONNE
Maison à VALBONNE
Maison à VALBONNE
Maison à VALBONNE
Maison à VALBONNE
Maison à VALBONNE
Maison à VALBONNE
Maison à VALBONNE
Maison à VALBONNE
Maison à VALBONNE
Maison à VALBONNE
Maison à VALBONNE
Maison à VALBONNE
Maison à VALBONNE
Maison à VALBONNE
Maison à VALBONNE
Ce site est protégé par reCAPTCHA la Politique de confidentialité et les Conditions d’utilisation de Google s’appliquent.
Obtenir un prêt immobilier au meilleur taux ?

En poursuivant votre navigation sans modifier vos paramètres, vous acceptez l'utilisation de cookies susceptibles de réaliser des statistiques de visite. Cliquez ici pour plus d'informations