Superbe duplex au coeur du vieux village de taninges

— Taninges 74440 —
219 000 €
74 m²
3 pièces

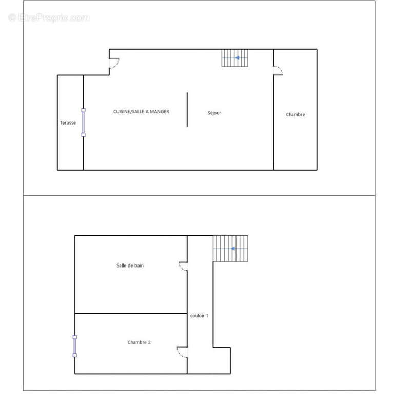
Idéalement situé dans une rue paisible du vieux village, ce superbe duplex de 74 m² séduit par son charme authentique, sa belle luminosité et sa rénovation soignée. Dès l'entrée, vous découvrirez une cuisine équipée, un espace salle à manger convivial et un coin repos chaleureux. La cuisine est séparée du séjour par une cheminée d'époque. Le coin salon avec sa belle hauteur sous plafond, invite à la détente. Ce premier niveau comprend également une chambre et une agréable terrasse de 7 m², idéale pour profiter des beaux jours. A l'étage, le duplex offre une deuxième chambre, ainsi qu'une salle de bain avec WC. L'ensemble, bénéficie de Velux récents, d'un agencement fonctionnel et d'un fort potentiel locatif, grâce à sa proximité avec les stations de ski. Les charges sont faibles et la copropriété est à gestion bénévole. Un petit bout de terrain, appartenant aux trois copropriétaires, permet d'installer un coin barbecue, tandis qu'une cave vient compléter le bien et offrir davantage d'espace de rangement. Ce duplex, alliant authenticité et confort, est un véritable coup de coeur. Lien vidéo de présentation : https://youtu.be/FBAxnLKFLWc?si=2C3DmBUZUYP3uXGl A visiter sans tarder ! Contact : S. Marsura [Coordonnées masquées] Copropriété de 3 lots (Pas de procédure en cours). Charges annuelles : 600 euros.
Voir plus

Référence: 211
Bien en copropriété. Nombre de lots : 3. Charges de copropriété : 600 €.
Honoraires à la charge du vendeur.
DPE
A
B
C
D
E
F
G
GES
A
B
C
D
E
F
G

Prêt immobilier

Vous souhaitez connaître votre capacité d’emprunt et trouver le meilleur crédit immobilier ?
Réaliser une simulation gratuite

Appartement à TANINGES
Appartement à TANINGES
Appartement à TANINGES
Appartement à TANINGES
Appartement à TANINGES
Appartement à TANINGES
Appartement à TANINGES
Appartement à TANINGES
Appartement à TANINGES
Appartement à TANINGES
Appartement à TANINGES
Appartement à TANINGES
Appartement à TANINGES
Appartement à TANINGES
Appartement à TANINGES
Appartement à TANINGES
Ce site est protégé par reCAPTCHA la Politique de confidentialité et les Conditions d’utilisation de Google s’appliquent.
Obtenir un prêt immobilier au meilleur taux ?

En poursuivant votre navigation sans modifier vos paramètres, vous acceptez l'utilisation de cookies susceptibles de réaliser des statistiques de visite. Cliquez ici pour plus d'informations