Bénéficiez des services de nos partenaires locaux soigneusement sélectionnés
pour vous accompagner dans votre parcours d'achat immobilier

A vendre / cluses / appartement t3 en rez-de-jardin / cave / garage / parking

— Cluses 74300 —
220 000 €
65 m² / 82 m²
3 pièces
jardin

Nos partenaires locaux
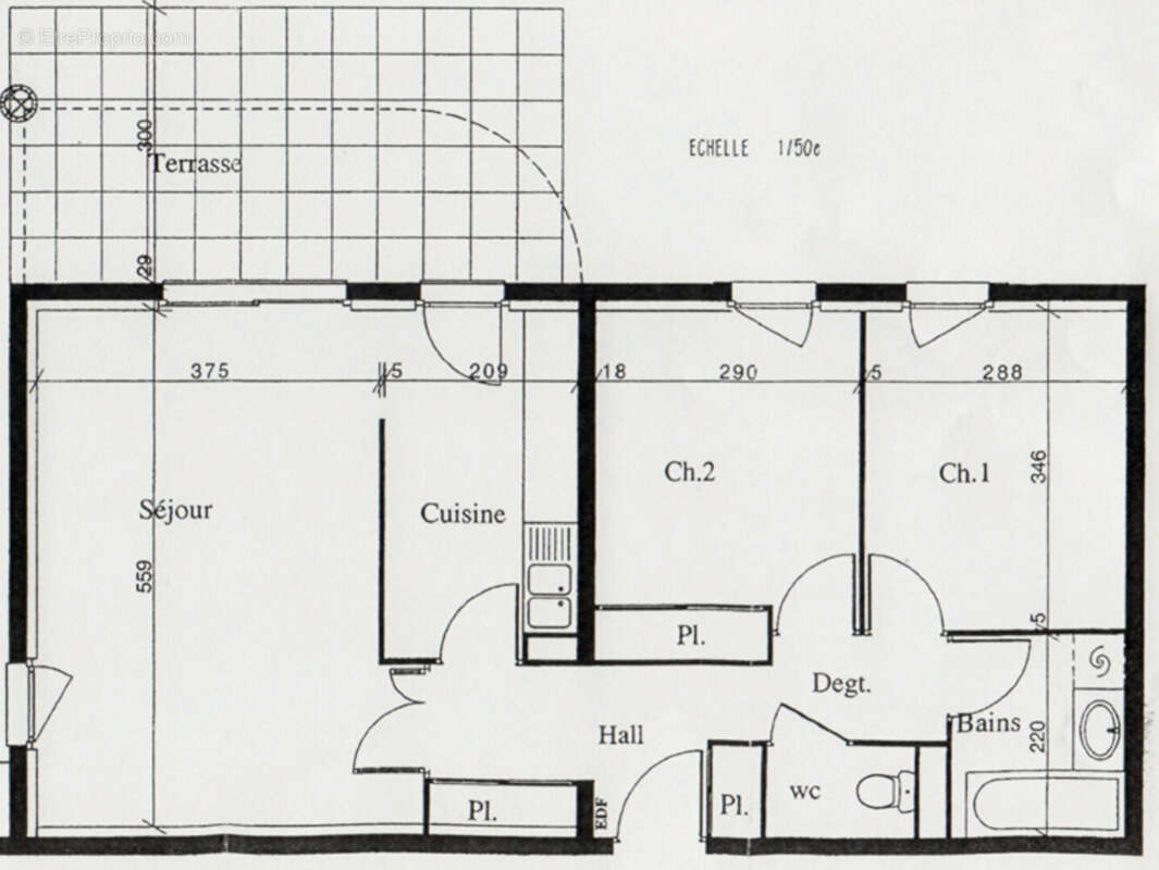
A VENDRE / CLUSES / APPARTEMENT T3 EN REZ-DE-JARDIN / CAVE / GARAGE / PARKING L'agence Actif immobilier a le plaisir de vous proposer à la vente, au sein de l'une de nos copropriétés gérées par notre service syndic, cet appartement T3 idéalement situé dans le secteur prisé du Noiret. L'avis de votre agence locale : Très lumineux pour un rez-de-jardin et bénéficiant de charges modérées (90 euros/mois), cet appartement séduit par un agencement optimal avec une séparation claire entre l'espace jour et l'espace nuit, une vaste terrasse couverte, sans parler de son jardin d'environ 80m², et de nombreuses annexes. Autant d'atouts qui en font un investissement de qualité. Il nécessitera quelques travaux pour exploiter pleinement tout son potentiel. Vous trouverez le plan de l'appartement parmi les photos pour mieux apprécier les perspectives d'aménagement ! Vendu avec une cave, une place de parking privée et un garage avec de la hauteur ! Contactez-nous pour en savoir plus et prendre rendez-vous. Copropriété de 11 lots (Pas de procédure en cours). Charges annuelles : 1091 euros.
Voir plus

Bien en copropriété. Nombre de lots : 11. Charges de copropriété : 1091 €.
Honoraires à la charge du vendeur.
DPE
A
B
C
D
E
F
G
GES
A
B
C
D
E
F
G

Prêt immobilier

Vous souhaitez connaître votre capacité d’emprunt et trouver le meilleur crédit immobilier ?
Réaliser une simulation gratuite

Appartement à CLUSES
Appartement à CLUSES
Appartement à CLUSES
Appartement à CLUSES
Appartement à CLUSES
Appartement à CLUSES
Appartement à CLUSES
Appartement à CLUSES
Appartement à CLUSES
Appartement à CLUSES
Appartement à CLUSES
Appartement à CLUSES
Appartement à CLUSES
Appartement à CLUSES
Ce site est protégé par reCAPTCHA la Politique de confidentialité et les Conditions d’utilisation de Google s’appliquent.
Obtenir un prêt immobilier au meilleur taux ?

En poursuivant votre navigation sans modifier vos paramètres, vous acceptez l'utilisation de cookies susceptibles de réaliser des statistiques de visite. Cliquez ici pour plus d'informations