Bénéficiez des services de nos partenaires locaux soigneusement sélectionnés
pour vous accompagner dans votre parcours d'achat immobilier

Jolie maison de 2023 + garage + jardin.

— Pontault-Combault 77340 —
329 000 €
101 m² / 178 m²
4 pièces
parkingjardin

Nos partenaires locaux
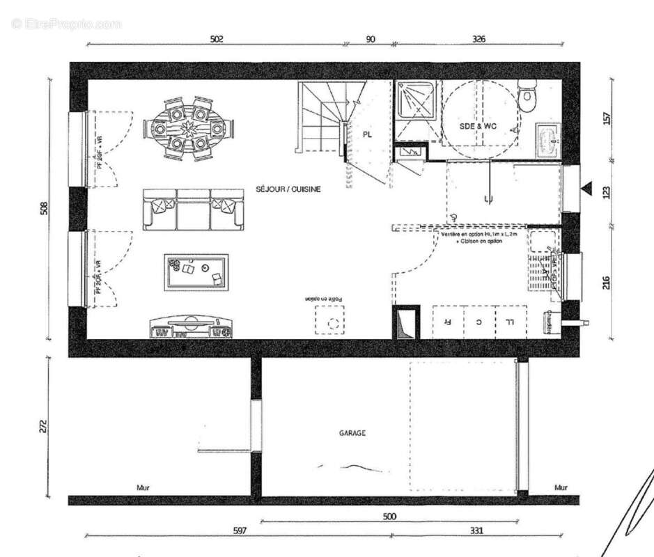
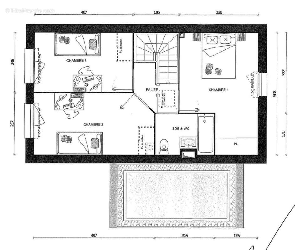
UNE JOLIE MAISON DE 2023 SANS TRAVAUX, CALME, ENSOLEILLE EST-OUEST, PARFAITEMENT DISTRIBUEE SANS AUCUNE PERTE DE PLACE, BENEFICIANT DE LA GARANTIE DECENNALE EN COURS AINSI QUE D'UNE TRES FAIBLE CONSOMMATION D'ENERGIE GRACE AUX DERNIERES NORMES DE CONSTRUCTION ET DE PANNEAUX PHOTOVOLTAÏQUES (101 m² dont 87,1 m² de surface habitable et 13,60 m² de garage fermé). AU REZ-DE-CHAUSSEE, UN BEL ESPACE DE VIE ET DE RECEPTION: - 1 très belle pièce de 38,6 m² contituée d'un grand salon donnant sur le jardin et d'une magnifique cuisine semi-ouverte entièrement équipée avec table bar. - 1 salle de douche ou de bains avec espace buanderie. - 1 WC. - 1 débarras sous escalier. - 2 emplacements voitures (1 garage fermé + 1 place extérieure). - 1 jardin clos idéalement exposé Ouest, permettant une terrasse, un store banne, un potager, un BBQ, ... - Normes P.M.R. A L'ETAGE, L'ESPACE PERSONNEL ET DE NUIT: - 3 chambres lumineuses avec rangements intégrés ou dressing haut de gamme. - Une 2ème salle de bains. - Un 2ème WC. AUTRES COMMODITES: - Proche à pied des écoles, commerces, hypermarché, restaurants, lieux de sortie et bus lignes D et 502. - Accès rapide à la N104 et N4, à la forêt, aux golfs, ... - Panneaux photovoltaïques et excellent DPE permettant une faible consommation électrique. UNE MAISON PARTICULIEREMENT AGREABLE PRESENTANT UN EXCELLENT RAPPORT SURFACE / NOMBRE DE PIECES / CONFORT AVEC LA TRANQUILITE DU NEUF EN PRIME. Copropriété de 27 lots - dont 27 lots habitation. (Pas de procédure en cours). Charges annuelles : 744 euros.
Voir plus

Référence: 1091
Bien en copropriété. Nombre de lots : 27. Charges de copropriété : 744 €.
Honoraires à la charge du vendeur.

Prêt immobilier

Vous souhaitez connaître votre capacité d’emprunt et trouver le meilleur crédit immobilier ?
Réaliser une simulation gratuite

Maison à PONTAULT-COMBAULT
Maison à PONTAULT-COMBAULT
Maison à PONTAULT-COMBAULT
Maison à PONTAULT-COMBAULT
Maison à PONTAULT-COMBAULT
Maison à PONTAULT-COMBAULT
Maison à PONTAULT-COMBAULT
Maison à PONTAULT-COMBAULT
Maison à PONTAULT-COMBAULT
Maison à PONTAULT-COMBAULT
Maison à PONTAULT-COMBAULT
Maison à PONTAULT-COMBAULT
Maison à PONTAULT-COMBAULT
Maison à PONTAULT-COMBAULT
Ce site est protégé par reCAPTCHA la Politique de confidentialité et les Conditions d’utilisation de Google s’appliquent.
Obtenir un prêt immobilier au meilleur taux ?

En poursuivant votre navigation sans modifier vos paramètres, vous acceptez l'utilisation de cookies susceptibles de réaliser des statistiques de visite. Cliquez ici pour plus d'informations