Appartement 35m² à montignac

— Montignac 24290 —
64 000 €
35 m²
2 pièces
parking

Spécial Investisseur – Forom® Immobilier

Appartement T2 DUPLEX d'environ 35 m² avec une rentabilité de % brute et % nette, dans une belle résidence avec piscine au sein d'un environnement naturel.

Loyer entièrement garanti et sécurisé, aucune contrainte de gestion, faibles charges et une bonne rentabilité nette. C'est le produit idéal pour se constituer facilement un patrimoine immobilier.

• Loyer annuel HT : 4 482€ / an soit 373,50€ / mois
• Rentabilité : 7% brute et plus de 5,83% nette !
• Charges : 39€ / mois
• Taxe foncière : 282€ / an
• Gestionnaire : Odalys (4/5) avec date de fin de bail le 30/09/2026
• Indexation selon l'indice ILC
• Emplacement dans un cadre naturel avec piscine
• DPE : D
• Nombre de lots : 122

Possibilité d'occupation : 4 semaines consécutives ou non de la date d'ouverture de la résidence jusqu'au dernier samedi de juin ET du 1er samedi d'octobre jusqu'à la fermeture de la résidence

Les avantages
Les loyers sont réglés que le logement soit occupé ou non (sans risque de vacances locatives ou d'impayés). Vous bénéficiez également d'avantages fiscaux lié au « LMNP amortissable », donnant une exonération d'impôt sur les revenus locatifs. Vous aurez de faibles charges et aucun soucis de gestion courante (le gestionnaire vous règle directement le loyer sans intermédiaire ni frais de gestion locative).

Le bien
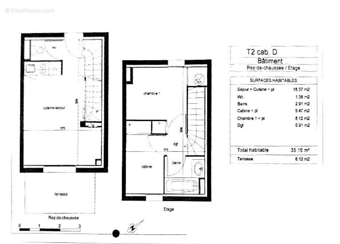
T2 DUPLEX d'environ 35 m² avec terrasse et 1 place de parking. Le logement dispose au rez-de-chaussée d'un séjour, un coin cuisine, un WC, une terrasse et à l'étage une chambre, une cabine, une salle de bains.

La résidence
La Résidence Le Hameau du Moulin est en plein coeur du Périgord Noir. Idéalement située pour visiter Sarlat la Canéda, les grottes de Lascaux, le village du Bournat, l'Abri du Cap Blanc et La Roque Saint Christophe (2 sites classés patrimoine de l'humanité par l'UNESCO).

Honoraires à la charge du vendeur. Dans une copropriété de 122 lots. Aucune procédure n'est en cours. DPE en cours. Les informations sur les risques auxquels ce bien est exposé sont disponibles sur le site Géorisques : georisques.gouv.fr.
Voir plus

Référence: 3822-FOROM
Bien en copropriété. Nombre de lots : 122.
Honoraires à la charge du vendeur.
Barème des honoraires
DPE
A
B
C
D
E
F
G
GES
A
B
C
D
E
F
G

Prêt immobilier

Vous souhaitez connaître votre capacité d’emprunt et trouver le meilleur crédit immobilier ?
Réaliser une simulation gratuite

Appartement à MONTIGNAC
Appartement à MONTIGNAC
Appartement à MONTIGNAC
Appartement à MONTIGNAC
Appartement à MONTIGNAC
Appartement à MONTIGNAC
Appartement à MONTIGNAC
Appartement à MONTIGNAC
Ce site est protégé par reCAPTCHA la Politique de confidentialité et les Conditions d’utilisation de Google s’appliquent.
Obtenir un prêt immobilier au meilleur taux ?

En poursuivant votre navigation sans modifier vos paramètres, vous acceptez l'utilisation de cookies susceptibles de réaliser des statistiques de visite. Cliquez ici pour plus d'informations