Maison à vendre 6 pièces redon (35)

— Redon 35600 —
229 900 €
95 m² / 2 048 m²
6 pièces
parking

Maison traditionnelle de 95 m² – charme, confort et fonctionnalité

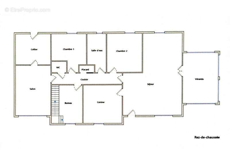
Située dans un environnement paisible, cette maison traditionnelle construite en 1977 offre une surface habitable d'environ 95 m², implantée sur un terrain arboré et spacieux, idéal pour profiter des beaux jours.

Au rez-de-chaussée, vous apprécierez un séjour lumineux de 30 m², une cuisine aménagée et équipée de 10 m², une salle d'eau spacieuse de 6 m², deux chambres, une buanderie, un bureau ainsi qu'un WC indépendant.

À l'étage, une mezzanine et un WC supplémentaire viennent compléter l'ensemble.

Ce bien se distingue par sa construction de qualité, son agencement fonctionnel et son potentiel d'évolution selon vos envies.

Une maison idéale pour une famille ou un premier achat, offrant un cadre de vie agréable, à proximité des commodités et de la nature. Les honoraires d'agence sont à la charge de l'acquéreur, soit 4,50% TTC du prix hors honoraires.
Les informations sur les risques auxquels ce bien est exposé sont disponibles sur le site Géorisques : www. georisques. gouv. fr.

Réseau Immobilier CAPIFRANCE - Votre agent commercial (RSAC N°924 832 124 - Greffe de RENNES) Yvan PERSON Entrepreneur Individuel [Coordonnées masquées] - Réf.925099
Voir plus

Référence: 340938042813
DPE
A
B
C
D
E
F
G
GES
A
B
C
D
E
F
G

Prêt immobilier

Vous souhaitez connaître votre capacité d’emprunt et trouver le meilleur crédit immobilier ?
Réaliser une simulation gratuite

Maison à REDON
Maison à REDON
Maison à REDON
Maison à REDON
Maison à REDON
Maison à REDON
Maison à REDON
Maison à REDON
Maison à REDON
Maison à REDON
Ce site est protégé par reCAPTCHA la Politique de confidentialité et les Conditions d’utilisation de Google s’appliquent.
Obtenir un prêt immobilier au meilleur taux ?

En poursuivant votre navigation sans modifier vos paramètres, vous acceptez l'utilisation de cookies susceptibles de réaliser des statistiques de visite. Cliquez ici pour plus d'informations