Bénéficiez des services de nos partenaires locaux soigneusement sélectionnés
pour vous accompagner dans votre parcours d'achat immobilier

Maison 193m² à ballan-mire

— Ballan-Mire 37510 —
349 000 €
193 m² / 2 109 m²
8 pièces

Nos partenaires locaux
37510 Ballan-Miré - Grande maison 151 m2 habitables - 193 m2 au sol - Terrain clôturé de 2109 m2 - Sous-sol & garage 120 m2

Louis del Marmol vous propose cette maison composée de la manière suivante :

Au rez-de-chaussée :

- Salon / salle à manger avec cheminée de 48 m²
- Cuisine équipée 15 m2
- Terrasse de 30 m2
- Grand balcon filant faisant l'angle de la maison & exposé Sud- Salle d'eau
- Chambre 1 - 12 m2
- Chambre 2 - 10 m2
- Chambre 3 - 9,50 m2
- Chambre 4 / Bureau - 9,36 m2

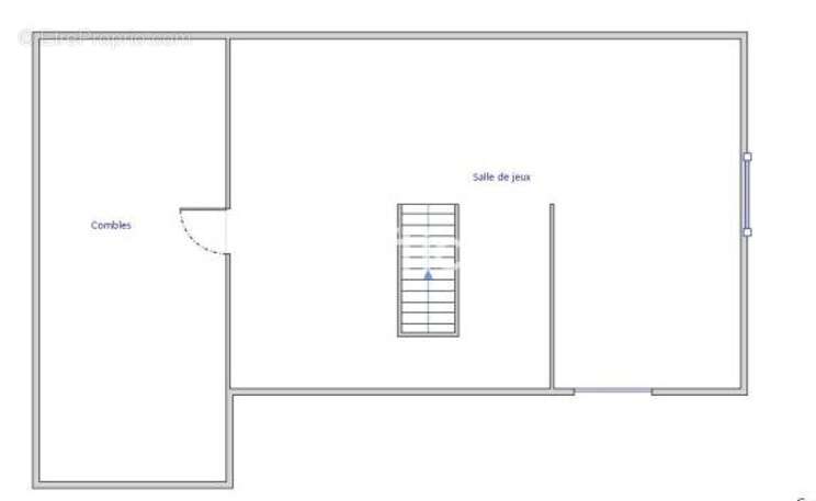
Au 1er étage :

- Une grande chambre / salle de jeux de 62 m2 rénovée avec poutres apparentes & velux

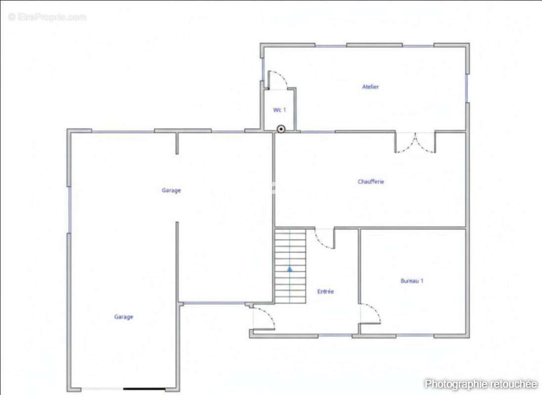
Au sous-sol : Gros potentiel avec surface totale 120 m2

- Une pièce de 12 m² chauffée
- Une 2ème pièce de 8 m2 chauffée
- Une 3ème pièce de 25 m2
- Une 4ème pièce de 21 m2
- Un garage de 60 m²
- WC

Informations complémentaires :

- Menuiseries récentes, porte d'entrée et baies vitrées remplacées, portail motorisé changé il y a 1 an
- Volets roulants solaires
- Pompe à chaleur Air - Eau (Chauffage de tout le bas) - En haut radiateur à inertie
- Isolation thermique par l'extérieure
- Assainissement individuel aux normes - Fosse sceptique toutes eaux - 3000 L - 44 m2 (8x5,5 m)
- Présence d'un puit (Raccordement à faire avec la pompe déjà existante)
- Ancienne cuve à fuel : dégazage & neutralisation effectués
- Cave de 21 m2
- Fibre dans la rue - Raccordement à tirer dans la maison
- Taxe foncière : 1713 euros

Idéalement situé à Ballan-Miré. A visiter rapidement.
Contactez Louis del Marmol
Les informations sur les risques auxquels ce bien est exposé sont disponibles sur le site Georisque : georisques. gouv. fr
Louis del Marmol - EI - est Agent Commercial mandataire en immobilier, immatriculé au Registre Spécial des Agents Commerciaux du Tribunal de Commerce de Tours sous le n°978474716.
Siège social du mandant : effiCity, 48 avenue de Villiers - 75017 PARIS - Société par Actions Simplifiée, société au capital de 132 373,05 euros, immatriculée au RCS Paris 497 617 746 et titulaire de la Carte professionnelle CPI 75[Coordonnées masquées]02 025 - CCI Paris IDF - Caisse de Garantie : GALIAN Assurances 89 rue de la Boétie 75008 Paris
Voir plus

Référence: 195994
Honoraires d'agence de 5.76% à la charge de l'acquéreur
Barème des honoraires
DPE
A
B
C
D
E
F
G
GES
A
B
C
D
E
F
G

Prêt immobilier

Vous souhaitez connaître votre capacité d’emprunt et trouver le meilleur crédit immobilier ?
Réaliser une simulation gratuite

Maison à BALLAN-MIRE
Maison à BALLAN-MIRE
Maison à BALLAN-MIRE
Maison à BALLAN-MIRE
Maison à BALLAN-MIRE
Maison à BALLAN-MIRE
Maison à BALLAN-MIRE
Maison à BALLAN-MIRE
Maison à BALLAN-MIRE
Maison à BALLAN-MIRE
Maison à BALLAN-MIRE
Maison à BALLAN-MIRE
Maison à BALLAN-MIRE
Maison à BALLAN-MIRE
Maison à BALLAN-MIRE
Maison à BALLAN-MIRE
Maison à BALLAN-MIRE
Maison à BALLAN-MIRE
Maison à BALLAN-MIRE
Maison à BALLAN-MIRE
Ce site est protégé par reCAPTCHA la Politique de confidentialité et les Conditions d’utilisation de Google s’appliquent.
Obtenir un prêt immobilier au meilleur taux ?

En poursuivant votre navigation sans modifier vos paramètres, vous acceptez l'utilisation de cookies susceptibles de réaliser des statistiques de visite. Cliquez ici pour plus d'informations